Maison neuve, 90 m² - Crespin (59154)
160 100 €
Crespin (59154)
Proposée par TRADINORD AGENCE DE VALENCIENNES – 4 pièces - 3 chambres - terrain 560 m²
|
|
| Tradinord Agence de Valenciennes |
- Demande d'information
- Prendre rendez-vous
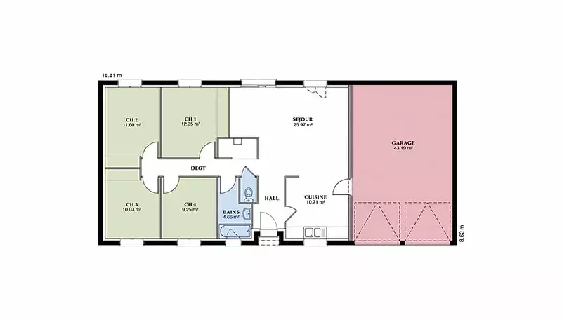
MAISON À CONSTRUIRE : ceci est une annonce d'une maison neuve à construire.
Vous voulez construire une maison traditionnelle ? Optez pour l’Avesnoise.
Construire une demeure Avesnoise de chez Tradinord est un bon choix. Cette maison traditionnelle et moderne à la fois, est appréciée de nos clients pour son excellent rapport qualité/prix. De plain-pied, elle est idéale si vous disposez d’un terrain spacieux. Déclinable en 11 versions de 48,5 à 148m², avec 1 à 4 chambres voire plus, un toit à deux ou quatre pans, quelle que soit la dimension de votre projet, cette bâtisse de caractère s’adaptera à vos besoins.
Une maison économe où il fait bon vivre
Fleuron de notre gamme traditionnelle, l’Avesnoise est moderne et fonctionnelle. Bénéficiant des dernières innovations, c’est une maison BBS, économique et écologique. Ce modèle peut être monté sur sous-sol. Que vous soyez à deux ou une grande famille, l'Avesnoise s’adaptera, puisque c’est vraiment du sur-mesure que nous vous proposons, avec une surface habitable allant jusqu’à 148m².
Votre demeure en 11 déclinaisons possibles
En effet, il est possible de bâtir une charmante petite maison de 48m² pour un couple, ou au contraire, une maison avec cinq chambres, voire plus… certaines options comprennent également une suite parentale. Plus il y a d’espace, plus il y a de rangements bien sûr. Avec ou sans garage intégré, votre maison sera à votre image, vraiment !
Construire votre Avesnoise en toute tranquillité
Du début à la fin du chantier, vous serez serein avec Tradinord. Votre magnifique habitation va grandir toute seule ! Vous mettez votre projet de construction entre les mains d’experts qui sauront vous co
Référence : 2056
Les informations sur les risques auxquels ce bien est exposé sont disponibles sur le site Géorisques : www.georisques.gouv.fr
Construire une demeure Avesnoise de chez Tradinord est un bon choix. Cette maison traditionnelle et moderne à la fois, est appréciée de nos clients pour son excellent rapport qualité/prix. De plain-pied, elle est idéale si vous disposez d’un terrain spacieux. Déclinable en 11 versions de 48,5 à 148m², avec 1 à 4 chambres voire plus, un toit à deux ou quatre pans, quelle que soit la dimension de votre projet, cette bâtisse de caractère s’adaptera à vos besoins.
Une maison économe où il fait bon vivre
Fleuron de notre gamme traditionnelle, l’Avesnoise est moderne et fonctionnelle. Bénéficiant des dernières innovations, c’est une maison BBS, économique et écologique. Ce modèle peut être monté sur sous-sol. Que vous soyez à deux ou une grande famille, l'Avesnoise s’adaptera, puisque c’est vraiment du sur-mesure que nous vous proposons, avec une surface habitable allant jusqu’à 148m².
Votre demeure en 11 déclinaisons possibles
En effet, il est possible de bâtir une charmante petite maison de 48m² pour un couple, ou au contraire, une maison avec cinq chambres, voire plus… certaines options comprennent également une suite parentale. Plus il y a d’espace, plus il y a de rangements bien sûr. Avec ou sans garage intégré, votre maison sera à votre image, vraiment !
Construire votre Avesnoise en toute tranquillité
Du début à la fin du chantier, vous serez serein avec Tradinord. Votre magnifique habitation va grandir toute seule ! Vous mettez votre projet de construction entre les mains d’experts qui sauront vous co
Référence : 2056
Les informations sur les risques auxquels ce bien est exposé sont disponibles sur le site Géorisques : www.georisques.gouv.fr
- Prix
-
- Prix total : 160 100 €
- Prix du modèle de maison : 137 600 €
- Prix du terrain : 22 500 €
- Terrain
-
- Surface : 560 m²
- Maison
-
- Surface : 90 m²
- Pièces : 4
- Chambres : 3
- Être rappelé par un conseiller
- Demander plus d’infos
- Demande d'information
Crespin (59154)
Maisons à proximité
Maison neuve, 92 m²
Crespin (59154)
Crespin (59154)
Maison de 4 pièces
Maison neuve, 110 m²
Crespin (59154)
Crespin (59154)
Maison de 5 pièces
Maison neuve, 85 m²
Crespin (59154)
Crespin (59154)
Maison de 4 pièces
Maison neuve, 98 m²
Crespin (59154)
Crespin (59154)
Maison de 5 pièces
Maison neuve, 101 m²
Crespin (59154)
Crespin (59154)
Maison de 5 pièces
Maison neuve, 90 m²
Crespin (59154)
Crespin (59154)
Maison de 5 pièces
Programmes à proximité
Villa Marilia
Marly (59770)
Marly (59770)
Appartements de 2 à 4 pièces
LE CLOS MACAREZ
Valenciennes (59300)
Valenciennes (59300)
Appartement de 2 pièces
Livraison 2ème trimestre 2024
Novéa
Valenciennes (59300)
Valenciennes (59300)
Appartements de 1 pièce
Livraison 2ème trimestre 2027
Les Lumières de l’Escaut
Valenciennes (59300)
Valenciennes (59300)
Appartement de 4 pièces
Livraison 4ème trimestre 2025
Contacter TRADINORD AGENCE DE VALENCIENNES pour recevoir plus d'informations
Remplissez le formulaire ci-dessous, vos informations sont transmises directement au constructeur qui vous contactera par email ou par téléphone afin de traiter votre demande. En savoir plus.