Maison neuve, 90 m² - Coulommes-la-Montagne (51390)

285 000 €
Coulommes-la-Montagne (51390)

Proposée par MAISONS FRANCE CONFORT – 5 pièces - 3 chambres - terrain 500 m²

MAISONS FRANCE CONFORT
MAISONS FRANCE CONFORT
  • Demande d'information
MAISON À CONSTRUIRE : ceci est une annonce d'une maison neuve à construire.
À Coulommes la montagne, maison neuve (normes RE 2020) de 90m2 avec patio.
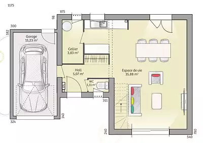
Maison de construction traditionnelle (matériaux de qualité, ossature en brique) de 3 chambres (possibilité d'une quatrième). Le modèle présenté est le modèle Open Nord ETG L GA accès Sud 90 so chic d'une surface habitable de 90m2 et compte une pièce de vie ouverte sur la cuisine, une salle de bain, 3 chambres, avec espace pour les placards, deux wc, un cellier et un garage. Il est possible de personnaliser ces plans afin qu'ils répondent parfaitement à vos attentes.
Terrain de 500m² à Coulommes la montagne village très recherché aux portes de Reims. Environnement de qualité.
Cette parcelle se situe dans la commune de Coulommes la Montagne, proche de Tinqueux, Les Mesneux, Bezannes, Ormes, Vrigny, Pargny Lès Reims, Gueux, Thillois, Champigny, Ecueil, Ville Dommange, Chamery, Champleury, Villers aux Noeuds, Sacy et Reims. Référence : NG2298106_7
Terrain proposé par un partenaire foncier selon disponibilités et autorisation de publicité au prix de 119 000 €. Hors droit d'enregistrement et frais de notaire. Maison proposée, avec un contrat de construction de maison individuelle, dans le cadre de la loi du 19/12/1990, au prix de 166 000 € (Hors branchements et raccordements, papiers peints, peintures, revêtement de sol dans les chambres, qui sont chiffrés dans les travaux qui restent à charge du client. Tarif modifiable sans préavis). Étiquette énergie : A. Différents modèles disponibles pour ce terrain. Assurances et garanties du constructeur comprises (RC professionnelle, décennale, dommage ouvrage).

Les informations sur les risques auxquels ce bien est exposé sont disponibles sur le site Géorisques : www.georisques.gouv.fr


Prix
  • Prix total : 285 000 €
  • Prix du modèle de maison : 166 000 €
  • Prix du terrain : 119 000 €

Terrain
  • Surface : 500 m²

Maison
  • Surface : 90 m²
  • Pièces : 5
  • Chambres : 3
  • Garage : 1

  • Être rappelé par un conseiller
  • Demander plus d’infos
  • Demande d'information
Coulommes-la-Montagne (51390)

Programmes à proximité

Entre Vignes et Golf
Entre Vignes et Golf
Bezannes (51430)

Appartements de 3 à 5 pièces
Livraison 1er trimestre 2026

Les Toits du Golf
Les Toits du Golf
Bezannes (51430)

Appartements de 2 à 5 pièces
Livraison 3ème trimestre 2028

Résidence Sakura
Résidence Sakura
Tinqueux (51430)

Appartements de 2 à 4 pièces
Livraison 4ème trimestre 2026

Magasins Généraux - Côté Bosquet
Magasins Généraux - Côté Bosquet
Reims (51100)

Appartements de 3 à 4 pièces
Livraison 4ème trimestre 2026

LE STANFORD
LE STANFORD
Reims (51100)

Appartements de 1 pièce
Livraison 1er trimestre 2026

Renaissance
Renaissance
Reims (51100)

Appartements de 1 à 5 pièces
Livraison 4ème trimestre 2027

Contacter MAISONS FRANCE CONFORT pour recevoir plus d'informations

Remplissez le formulaire ci-dessous, vos informations sont transmises directement au constructeur qui vous contactera par email ou par téléphone afin de traiter votre demande. En savoir plus.

Voir tous nos programmes immobiliers neufs à Coulommes-la-Montagne