Maison neuve, 89 m² - Coulanges-lès-Nevers (58660)
185 889 €
Coulanges-lès-Nevers (58660)
Proposée par STYL HABITAT AGENCE DE VARENNES-VAUZELLES / NEVERS – 3 pièces - 2 chambres - terrain 687 m²
|
|
| Styl habitat Agence de Varennes-Vauzelles / Nevers |
- Demande d'information
- Prendre rendez-vous
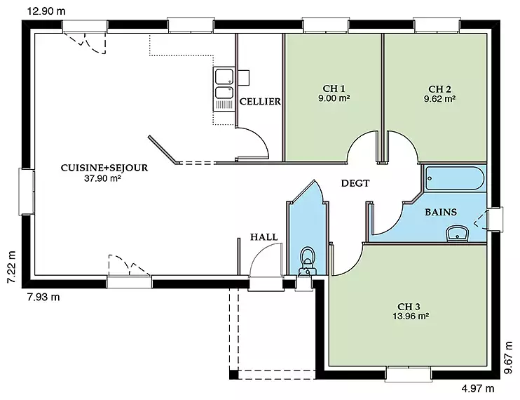
MAISON À CONSTRUIRE : ceci est une annonce d'une maison neuve à construire.
Nous vous proposons cette maison neuve, baptisée ""Mezière"", un modèle de construction qui allie élégance et fonctionnalité sur une surface habitable de 89 m². Conçue pour répondre aux attentes des plus exigeants, cette maison se distingue par son architecture moderne, disponible en versions à 2 ou 4 pans, complétée par un charmant porche qui accueille vos visiteurs avec style et distinction.
La ""Mezière"" se compose de 3 pièces judicieusement agencées pour maximiser l'espace et le confort. Elle offre 2 chambres spacieuses, promettant un havre de paix pour chaque membre de la famille. L'espace de vie, lumineux et accueillant, est conçu pour partager des moments précieux, que ce soit dans le cadre familial ou lors de réceptions amicales.
Ce modèle se distingue également par son engagement envers l'environnement et votre portefeuille. En effet, la ""Mezière"" est une maison basse consommation, rigoureusement conçue pour respecter les normes de la RE2020. Cette réglementation environnementale de 2020 garantit une efficacité énergétique supérieure, réduisant considérablement vos factures d'énergie tout en contribuant à la protection de notre planète.
Chaque détail de la ""Mezière"" a été pensé pour offrir un confort de vie inégalé, dans le respect des normes écologiques les plus strictes. Que vous optiez pour une toiture à 2 ou 4 pans, vous bénéficierez d'une maison qui allie esthétique contemporaine et performances énergétiques de pointe.
En choisissant la ""Mezière"", vous faites le choix d'une maison neuve, personnalisable selon vos goûts et vos besoins, et d'un habitat durable qui vous accompagnera pendant de nombreuses années. Ne manquez pas l'opportunité de construire la maison de vos rêves, une maison qui respecte à la fois votre confort et l'environnement.
Référence : 12277
Les informations sur les risques auxquels ce bien est exposé sont disponibles sur le site Géorisques : www.georisques.gouv.fr
La ""Mezière"" se compose de 3 pièces judicieusement agencées pour maximiser l'espace et le confort. Elle offre 2 chambres spacieuses, promettant un havre de paix pour chaque membre de la famille. L'espace de vie, lumineux et accueillant, est conçu pour partager des moments précieux, que ce soit dans le cadre familial ou lors de réceptions amicales.
Ce modèle se distingue également par son engagement envers l'environnement et votre portefeuille. En effet, la ""Mezière"" est une maison basse consommation, rigoureusement conçue pour respecter les normes de la RE2020. Cette réglementation environnementale de 2020 garantit une efficacité énergétique supérieure, réduisant considérablement vos factures d'énergie tout en contribuant à la protection de notre planète.
Chaque détail de la ""Mezière"" a été pensé pour offrir un confort de vie inégalé, dans le respect des normes écologiques les plus strictes. Que vous optiez pour une toiture à 2 ou 4 pans, vous bénéficierez d'une maison qui allie esthétique contemporaine et performances énergétiques de pointe.
En choisissant la ""Mezière"", vous faites le choix d'une maison neuve, personnalisable selon vos goûts et vos besoins, et d'un habitat durable qui vous accompagnera pendant de nombreuses années. Ne manquez pas l'opportunité de construire la maison de vos rêves, une maison qui respecte à la fois votre confort et l'environnement.
Référence : 12277
Les informations sur les risques auxquels ce bien est exposé sont disponibles sur le site Géorisques : www.georisques.gouv.fr
- Prix
-
- Prix total : 185 889 €
- Prix du modèle de maison : 148 889 €
- Prix du terrain : 37 000 €
- Terrain
-
- Surface : 687 m²
- Maison
-
- Surface : 89 m²
- Pièces : 3
- Chambres : 2
- Être rappelé par un conseiller
- Demander plus d’infos
- Demande d'information
Coulanges-lès-Nevers (58660)
Maisons à proximité
Maison neuve, 87 m²
Coulanges-lès-Nevers (58660)
Coulanges-lès-Nevers (58660)
Maison de 4 pièces
Maison neuve, 131 m²
Coulanges-lès-Nevers (58660)
Coulanges-lès-Nevers (58660)
Maison de 5 pièces
Maison neuve, 109 m²
Coulanges-lès-Nevers (58660)
Coulanges-lès-Nevers (58660)
Maison de 5 pièces
Maison neuve, 74 m²
Coulanges-lès-Nevers (58660)
Coulanges-lès-Nevers (58660)
Maison de 4 pièces
Maison neuve, 90 m²
Coulanges-lès-Nevers (58660)
Coulanges-lès-Nevers (58660)
Maison de 5 pièces
Maison neuve, 109 m²
Nevers (58000)
Nevers (58000)
Maison de 5 pièces
Programmes à proximité
Contacter STYL HABITAT AGENCE DE VARENNES-VAUZELLES / NEVERS pour recevoir plus d'informations
Remplissez le formulaire ci-dessous, vos informations sont transmises directement au constructeur qui vous contactera par email ou par téléphone afin de traiter votre demande. En savoir plus.
Voir tous nos programmes immobiliers neufs à Coulanges-lès-Nevers