Maison neuve, 90 m² - Coulanges-lès-Nevers (58660)
192 016 €
Coulanges-lès-Nevers (58660)
Proposée par STYL HABITAT AGENCE DE VARENNES-VAUZELLES / NEVERS – 5 pièces - 4 chambres - terrain 1 000 m²
|
|
| Styl habitat Agence de Varennes-Vauzelles / Nevers |
- Demande d'information
- Prendre rendez-vous
MAISON À CONSTRUIRE : ceci est une annonce d'une maison neuve à construire.
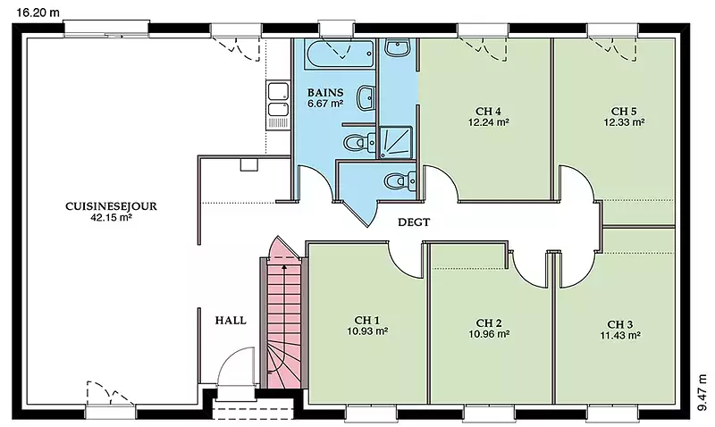
Nous vous proposons cette maison neuve, baptisée ""Aubetière"", un modèle de construction qui allie élégance et performance énergétique, conforme aux exigences de la norme RE2020. Avec une surface habitable de 90 m², cette maison est conçue pour offrir un confort optimal tout en minimisant son impact sur l'environnement.
L'Aubetière se décline en deux versions architecturales : vous avez le choix entre un toit traditionnel à 2 pans ou une version plus moderne à 4 pans, chacune pensée pour s'intégrer harmonieusement à son environnement. Cette maison basse consommation est un véritable engagement vers un avenir plus durable, garantissant une réduction significative de vos factures énergétiques grâce à une isolation optimale, une ventilation performante et l'utilisation de matériaux à faible impact environnemental.
Ce modèle se compose de 4 pièces lumineuses et spacieuses, dont 4 chambres confortables, offrant ainsi un cadre de vie idéal pour une famille. Chaque espace a été pensé pour maximiser le confort et la fonctionnalité, tout en respectant les critères de la norme RE2020. Vous bénéficierez d'un intérieur à la fois moderne et chaleureux, avec la possibilité de personnaliser les finitions selon vos goûts et vos besoins.
L'Aubetière représente l'opportunité de vivre dans une maison neuve, économique et respectueuse de l'environnement, sans compromis sur le style ou le confort. C'est l'assurance d'un investissement pérenne, conçu pour répondre aux défis de demain. N'attendez plus pour faire de ce lieu votre nouveau foyer, un espace où bien-être rime avec éco-responsabilité.
Référence : 12267
Les informations sur les risques auxquels ce bien est exposé sont disponibles sur le site Géorisques : www.georisques.gouv.fr
L'Aubetière se décline en deux versions architecturales : vous avez le choix entre un toit traditionnel à 2 pans ou une version plus moderne à 4 pans, chacune pensée pour s'intégrer harmonieusement à son environnement. Cette maison basse consommation est un véritable engagement vers un avenir plus durable, garantissant une réduction significative de vos factures énergétiques grâce à une isolation optimale, une ventilation performante et l'utilisation de matériaux à faible impact environnemental.
Ce modèle se compose de 4 pièces lumineuses et spacieuses, dont 4 chambres confortables, offrant ainsi un cadre de vie idéal pour une famille. Chaque espace a été pensé pour maximiser le confort et la fonctionnalité, tout en respectant les critères de la norme RE2020. Vous bénéficierez d'un intérieur à la fois moderne et chaleureux, avec la possibilité de personnaliser les finitions selon vos goûts et vos besoins.
L'Aubetière représente l'opportunité de vivre dans une maison neuve, économique et respectueuse de l'environnement, sans compromis sur le style ou le confort. C'est l'assurance d'un investissement pérenne, conçu pour répondre aux défis de demain. N'attendez plus pour faire de ce lieu votre nouveau foyer, un espace où bien-être rime avec éco-responsabilité.
Référence : 12267
Les informations sur les risques auxquels ce bien est exposé sont disponibles sur le site Géorisques : www.georisques.gouv.fr
- Prix
-
- Prix total : 192 016 €
- Prix du modèle de maison : 137 016 €
- Prix du terrain : 55 000 €
- Terrain
-
- Surface : 1 000 m²
- Maison
-
- Surface : 90 m²
- Pièces : 5
- Chambres : 4
- Être rappelé par un conseiller
- Demander plus d’infos
- Demande d'information
Coulanges-lès-Nevers (58660)
Maisons à proximité
Maison neuve, 87 m²
Coulanges-lès-Nevers (58660)
Coulanges-lès-Nevers (58660)
Maison de 4 pièces
Maison neuve, 131 m²
Coulanges-lès-Nevers (58660)
Coulanges-lès-Nevers (58660)
Maison de 5 pièces
Maison neuve, 109 m²
Coulanges-lès-Nevers (58660)
Coulanges-lès-Nevers (58660)
Maison de 5 pièces
Maison neuve, 74 m²
Coulanges-lès-Nevers (58660)
Coulanges-lès-Nevers (58660)
Maison de 4 pièces
Maison neuve, 89 m²
Coulanges-lès-Nevers (58660)
Coulanges-lès-Nevers (58660)
Maison de 3 pièces
Maison neuve, 109 m²
Nevers (58000)
Nevers (58000)
Maison de 5 pièces
Programmes à proximité
Contacter STYL HABITAT AGENCE DE VARENNES-VAUZELLES / NEVERS pour recevoir plus d'informations
Remplissez le formulaire ci-dessous, vos informations sont transmises directement au constructeur qui vous contactera par email ou par téléphone afin de traiter votre demande. En savoir plus.
Voir tous nos programmes immobiliers neufs à Coulanges-lès-Nevers