Maison neuve, 96 m² - Connaux (30330)
300 500 €
Connaux (30330)
Proposée par MAISONS BALENCY – 5 pièces - 3 chambres - terrain 502 m²
|
|
| MAISONS BALENCY |
| (36 avis) |
- Demande d'information
- Prendre rendez-vous
MAISON À CONSTRUIRE : ceci est une annonce d'une maison neuve à construire.
Connaux : maison de 5 pièces (96 m²) à vendre
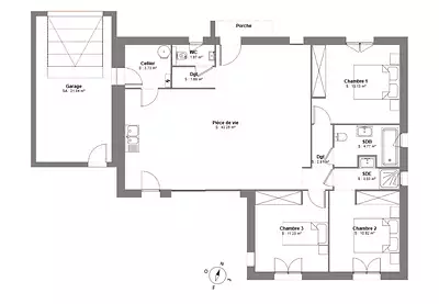
Idéalement située - Maison neuve 5 pièces à vendre à Connaux (30330) avec une surface de 96 m² et de 502 m² de terrain. Elle se divise en trois chambres, une cuisine et deux salles de bains.
Proche École Primaire Robert Terral, tennis, commerces, boulangeries, bureau de poste, épicerie et boucherie-charcuterie. Nationale N86 à 9 km. Avignon à 24 km.
Cette maison de 5 pièces est à vendre pour la somme de 300 500 €.
. Concrétisez vos projets immobiliers avec Maisons Balency Uzès.
Référence : PP2250232_2
Terrain proposé par un partenaire foncier selon disponibilités et autorisation de publicité au prix de 94 900 €. Hors droit d'enregistrement et frais de notaire. Maison proposée, avec un contrat de construction de maison individuelle, dans le cadre de la loi du 19/12/1990, au prix de 205 600 € (Hors branchements et raccordements, papiers peints, peintures, revêtement de sol dans les chambres, qui sont chiffrés dans les travaux qui restent à charge du client. Tarif modifiable sans préavis). Étiquette énergie : A. Différents modèles disponibles pour ce terrain. Assurances et garanties du constructeur comprises (RC professionnelle, décennale, dommage ouvrage).
Les informations sur les risques auxquels ce bien est exposé sont disponibles sur le site Géorisques : www.georisques.gouv.fr
Idéalement située - Maison neuve 5 pièces à vendre à Connaux (30330) avec une surface de 96 m² et de 502 m² de terrain. Elle se divise en trois chambres, une cuisine et deux salles de bains.
Proche École Primaire Robert Terral, tennis, commerces, boulangeries, bureau de poste, épicerie et boucherie-charcuterie. Nationale N86 à 9 km. Avignon à 24 km.
Cette maison de 5 pièces est à vendre pour la somme de 300 500 €.
. Concrétisez vos projets immobiliers avec Maisons Balency Uzès.
Référence : PP2250232_2
Terrain proposé par un partenaire foncier selon disponibilités et autorisation de publicité au prix de 94 900 €. Hors droit d'enregistrement et frais de notaire. Maison proposée, avec un contrat de construction de maison individuelle, dans le cadre de la loi du 19/12/1990, au prix de 205 600 € (Hors branchements et raccordements, papiers peints, peintures, revêtement de sol dans les chambres, qui sont chiffrés dans les travaux qui restent à charge du client. Tarif modifiable sans préavis). Étiquette énergie : A. Différents modèles disponibles pour ce terrain. Assurances et garanties du constructeur comprises (RC professionnelle, décennale, dommage ouvrage).
Les informations sur les risques auxquels ce bien est exposé sont disponibles sur le site Géorisques : www.georisques.gouv.fr
- Prix
-
- Prix total : 300 500 €
- Prix du modèle de maison : 205 600 €
- Prix du terrain : 94 900 €
- Terrain
-
- Surface : 502 m²
- Maison
-
- Surface : 96 m²
- Pièces : 5
- Chambres : 3
- Garage : 1
- Être rappelé par un conseiller
- Demander plus d’infos
- Demande d'information
Connaux (30330)
Maisons à proximité
Maison neuve, 100 m²
Connaux (30330)
Connaux (30330)
Maison de 5 pièces
Maison neuve
Connaux (30330)
Connaux (30330)
Maison
Maison neuve, 71 m²
Connaux (30330)
Connaux (30330)
Maison de 3 pièces
Maison neuve, 100 m²
Connaux (30330)
Connaux (30330)
Maison de 6 pièces
Maison neuve
Connaux (30330)
Connaux (30330)
Maison
Maison neuve, 78 m²
Connaux (30330)
Connaux (30330)
Maison de 4 pièces
Programmes à proximité
INIMA
Uzès (30700)
Uzès (30700)
Appartements de 2 à 3 pièces
Livraison 4ème trimestre 2027
Ora
Orange (84100)
Orange (84100)
Appartements de 2 à 4 pièces
Livraison 3ème trimestre 2027
LE JARDIN DU PALAIS
Avignon (84000)
Avignon (84000)
Appartements de 2 à 5 pièces
Livraison 4ème trimestre 2027
Contacter MAISONS BALENCY pour recevoir plus d'informations
Remplissez le formulaire ci-dessous, vos informations sont transmises directement au constructeur qui vous contactera par email ou par téléphone afin de traiter votre demande. En savoir plus.