Maison neuve, 110 m² - Condrieu (69420)

315 000 €
Condrieu (69420)

Proposée par MAISONS PUNCH SAINT PRIEST – 5 pièces - 4 chambres - terrain 500 m²

Maisons PUNCH Saint Priest
Maisons PUNCH Saint Priest
(57 avis)
  • Demande d'information
MAISON À CONSTRUIRE : ceci est une annonce d'une maison neuve à construire.
10 m² OFFERT + CUISINE OFFERTE + PACK DECO OFFERT (peintures + parquet des chambres + faïence sdb + placards pour nos 50 ans.
Produit rare à saisir au plus vite.
Situé sur la jolie commune de Vérin dans un cadre calme et arboré.
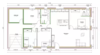
Sur une parcelle de 500 entièrement viabilisée, Maisons punch vous propose une construction neuve de plein pied de 110m² avec une magnifique vue.
Cette maison est composée d’une partie jour avec une très belle pièce de vie de 45m² avec cuisine ouverte sur le séjour. De grandes baie viennent inonder de lumière la partie jour.
La partie nuit est répartie en 4 chambres dont 1 avec suite parental de 17 m² avec une salle d'eau , et 3 autres chambres de10 et 11 m².
Une salle de bain indépendante avec baignoire ou douche au choix, un lavabo et un WC séparé.
Plancher chauffant dans toutes les pièces, volets roulants motorisé et centraliser de partout, crépis gratté contemporain etc...
Pour finir, la maison possède un garage ainsi qu'un grand cellier isolé de 7m². Grand jardin restant.
Plan entièrement personnalisables au bon vouloir des futurs acquéreurs.
Nombreuses prestations possibles
CONSTRUCTION, TERRAIN ET VRD INCLUS DANS LE PRIX.
Prestations de qualités : volets roulants intégrés électrique et connectés, Pompe à chaleur
Maison conforme à la RE 2020
Référence : 4640 DUFOR Arnaud
Terrain proposé et vendu par notre partenaire foncier selon disponibilités, le constructeur n’étant pas mandaté pour réaliser la vente du terrain. Prix terrain inclus : 105 000 € Frais de notaire non inclus : € Prix maison inclus : 210 000 € VRD non inclus : € Hors aménagements extérieurs (extensions, terrasse, piscine etc), papiers peints, peintures, moquettes dans les chambres (tarif en vigueur au 20 mai 2025, modifiable sans préavis, prix variables suivant les prestations souhaitées). Hors frais d’hypothèque. Différents modèles disponibles pour chaque terrain. Assurance RC professionnelle/décennale/dommage ouvrage groupe Aviva. Garantie de remboursement de l'acompte/livraison à prix et délai convenu CGI.

Les informations sur les risques auxquels ce bien est exposé sont disponibles sur le site Géorisques : www.georisques.gouv.fr


Prix
  • Prix total : 315 000 €
  • Prix du modèle de maison : 210 000 €
  • Prix du terrain : 105 000 €

Terrain
  • Surface : 500 m²

Maison
  • Surface : 110 m²
  • Pièces : 5
  • Chambres : 4
  • Salles de bains : 2
  • Garage : 1
  • Surface garage : 18 m²

  • Être rappelé par un conseiller
  • Demander plus d’infos
  • Demande d'information
Condrieu (69420)

Programmes à proximité

RIVE DROITE
RIVE DROITE
Saint-Romain-en-Gal (69560)

Appartements de 2 à 4 pièces
Livraison 4ème trimestre 2025

Côté Bon Accueil
Côté Bon Accueil
Vienne (38200)

Appartements de 2 à 4 pièces
Livraison 3ème trimestre 2026

RIVE ET COLLINE
RIVE ET COLLINE
Vienne (38200)

Appartements de 2 à 4 pièces
Livraison 2ème trimestre 2028

Les Terrasses du Pilat II
Les Terrasses du Pilat II
Chasse-sur-Rhône (38670)

Appartement de 3 pièces
Livraison 1er trimestre 2025

Square Salengro
Square Salengro
Givors (69700)

Appartements de 2 à 4 pièces
Livraison 4ème trimestre 2027

JARDINS DES SENS
JARDINS DES SENS
Serpaize (38200)

Appartements de 2 à 4 pièces
Livraison 3ème trimestre 2026

Contacter MAISONS PUNCH SAINT PRIEST pour recevoir plus d'informations

Remplissez le formulaire ci-dessous, vos informations sont transmises directement au constructeur qui vous contactera par email ou par téléphone afin de traiter votre demande. En savoir plus.

Voir tous nos programmes immobiliers neufs à Condrieu