Maison neuve, 100 m² - Clénay (21490)

307 599 €
Clénay (21490)

Proposée par BABEAU SEGUIN AGENCE DE FONTAINE-LES-DIJON – COTE – 5 pièces - 4 chambres - terrain 770 m²

Babeau Seguin Agence de Fontaine-Les-Dijon – Cote
Babeau Seguin Agence de Fontaine-Les-Dijon – Cote
  • Demande d'information
MAISON À CONSTRUIRE : ceci est une annonce d'une maison neuve à construire.
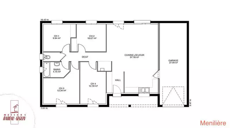
Sur ce terrain, nous vous proposons cette maison neuve, le modèle Ménilière, une maison plain-pied moderne qui intègre de base un garage et une longue galerie sur la face avant. Avec une surface de 100 m², cette maison dispose de 4 chambres et de 4 pièces, offrant ainsi un espace de vie confortable et fonctionnel pour toute la famille.
Véritable ""tout-en-un"" de la maison individuelle, ce modèle est idéal pour votre projet de construction sur-mesure. La Ménilière est disponible avec un toit à 2 pans ou 4 pans, selon vos préférences esthétiques. Le garage intégré et la galerie avant ajoutent une touche pratique et élégante à cette maison.
Les options les plus demandées par nos clients, telles que les menuiseries en aluminium et le sous-sol, sont également disponibles pour personnaliser davantage votre future maison. De plus, cette maison neuve est basse consommation et conforme à la réglementation environnementale RE2020, garantissant ainsi des performances énergétiques optimales et un impact environnemental réduit.
Le constructeur Babeau-Seguin, reconnu pour offrir le meilleur rapport qualité/prix du marché, vous accompagne dans la réalisation de votre projet immobilier. Avec un prix serré et une personnalisation facile, il n'est pas étonnant que la Ménilière soit dans le top 5 des ventes de Babeau-Seguin.
Ne manquez pas cette opportunité unique de devenir propriétaire d'une maison moderne, économe en énergie et parfaitement adaptée à vos besoins. Contactez-nous dès maintenant pour plus d'informations et pour planifier une visite de ce modèle exceptionnel.
Référence : 65405

Les informations sur les risques auxquels ce bien est exposé sont disponibles sur le site Géorisques : www.georisques.gouv.fr


Prix
  • Prix total : 307 599 €
  • Prix du modèle de maison : 162 199 €
  • Prix du terrain : 145 400 €

Terrain
  • Surface : 770 m²

Maison
  • Surface : 100 m²
  • Pièces : 5
  • Chambres : 4

  • Être rappelé par un conseiller
  • Demander plus d’infos
  • Demande d'information
Clénay (21490)

Maisons à proximité

LES VERGERS DE COUTERNON
LES VERGERS DE COUTERNON
Couternon (21560)

Appartements de 3 pièces et maisons de 4 à 5 pièces
Livraison 4ème trimestre 2027

Profitez des offres à Plombières-lès-Dijon
Profitez des offres à Plombières-lès-Dijon
Plombières-lès-Dijon (21370)

Appartements de 1 à 3 pièces et maisons de 4 pièces
Livraison 3ème trimestre 2027

CELESTE
CELESTE
Chenôve (21300)

Appartements de 2 à 5 pièces et maisons de 3 à 4 pièces
Livraison 3ème trimestre 2028

Programmes à proximité

LES VERGERS DE COUTERNON
LES VERGERS DE COUTERNON
Couternon (21560)

Appartements de 3 pièces et maisons de 4 à 5 pièces
Livraison 4ème trimestre 2027

RIVE CROMOIS
RIVE CROMOIS
Quetigny (21800)

Appartements de 4 pièces
Livraison 1er trimestre 2027

LES SAFFRES D'OR
LES SAFFRES D'OR
Fontaine-lès-Dijon (21121)

Appartements de 1 à 5 pièces
Livraison 1er trimestre 2027

EVORA PARK
EVORA PARK
Dijon (21000)

Appartements de 2 à 4 pièces
Livraison 4ème trimestre 2026

L'OREE DES MARAICHERS
L'OREE DES MARAICHERS
Dijon (21000)

Appartements de 1 à 3 pièces
Livraison 4ème trimestre 2027

SQUARE VOLTAIRE
SQUARE VOLTAIRE
Dijon (21000)

Appartements de 1 à 4 pièces
Livraison 4ème trimestre 2027

Contacter BABEAU SEGUIN AGENCE DE FONTAINE-LES-DIJON – COTE pour recevoir plus d'informations

Remplissez le formulaire ci-dessous, vos informations sont transmises directement au constructeur qui vous contactera par email ou par téléphone afin de traiter votre demande. En savoir plus.

Voir tous nos programmes immobiliers neufs à Clénay