Maison neuve, 96 m² - Chatuzange-le-Goubet (26300)
294 000 €
Chatuzange-le-Goubet (26300)
Proposée par MAISONS FRANCE CONFORT – 6 pièces - 4 chambres - terrain 404 m²
|
|
| MAISONS FRANCE CONFORT |
| (119 avis) |
- Demande d'information
- Prendre rendez-vous
MAISON À CONSTRUIRE : ceci est une annonce d'une maison neuve à construire.
Projet de construction à CHATUZANGE LE GOUBET (26300)
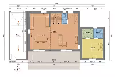
Maison à étage de 96 m2 avec chambres sur terrain de 404 m2. projet de construction d'une maison à étage de 96 m habitables sur terrain plat de 404 m2
Cette maison moderne et fonctionnelle comprend au rez de chaussée une pièce de vie spacieuse et lumineuse avec cuisine ouverte, un WC indépendant et une espace de rangement. A l'étage, vous disposerez de 3 belles chambres, d'une salle de bains et d'un second WC.
Ce projet est idéal pour une famille à la recherche d'un cadre de vie serein, tout en restant proche des commodités et axe principaux.
Projet personnalisable selon vos envies et votre mode de vie. Référence : AM2271588_2
Terrain proposé par un partenaire foncier selon disponibilités et autorisation de publicité au prix de 99 000 €. Hors droit d'enregistrement et frais de notaire. Maison proposée, avec un contrat de construction de maison individuelle, dans le cadre de la loi du 19/12/1990, au prix de 195 000 € (Hors branchements et raccordements, papiers peints, peintures, revêtement de sol dans les chambres, qui sont chiffrés dans les travaux qui restent à charge du client. Tarif modifiable sans préavis). Étiquette énergie : A. Différents modèles disponibles pour ce terrain. Assurances et garanties du constructeur comprises (RC professionnelle, décennale, dommage ouvrage).
Les informations sur les risques auxquels ce bien est exposé sont disponibles sur le site Géorisques : www.georisques.gouv.fr
Maison à étage de 96 m2 avec chambres sur terrain de 404 m2. projet de construction d'une maison à étage de 96 m habitables sur terrain plat de 404 m2
Cette maison moderne et fonctionnelle comprend au rez de chaussée une pièce de vie spacieuse et lumineuse avec cuisine ouverte, un WC indépendant et une espace de rangement. A l'étage, vous disposerez de 3 belles chambres, d'une salle de bains et d'un second WC.
Ce projet est idéal pour une famille à la recherche d'un cadre de vie serein, tout en restant proche des commodités et axe principaux.
Projet personnalisable selon vos envies et votre mode de vie. Référence : AM2271588_2
Terrain proposé par un partenaire foncier selon disponibilités et autorisation de publicité au prix de 99 000 €. Hors droit d'enregistrement et frais de notaire. Maison proposée, avec un contrat de construction de maison individuelle, dans le cadre de la loi du 19/12/1990, au prix de 195 000 € (Hors branchements et raccordements, papiers peints, peintures, revêtement de sol dans les chambres, qui sont chiffrés dans les travaux qui restent à charge du client. Tarif modifiable sans préavis). Étiquette énergie : A. Différents modèles disponibles pour ce terrain. Assurances et garanties du constructeur comprises (RC professionnelle, décennale, dommage ouvrage).
Les informations sur les risques auxquels ce bien est exposé sont disponibles sur le site Géorisques : www.georisques.gouv.fr
- Prix
-
- Prix total : 294 000 €
- Prix du modèle de maison : 195 000 €
- Prix du terrain : 99 000 €
- Terrain
-
- Surface : 404 m²
- Maison
-
- Surface : 96 m²
- Pièces : 6
- Chambres : 4
- Garage : 1
- Être rappelé par un conseiller
- Demander plus d’infos
- Demande d'information
Chatuzange-le-Goubet (26300)
Maisons à proximité
Maison neuve, 93 m²
Chatuzange-le-Goubet (26300)
Chatuzange-le-Goubet (26300)
Maison de 4 pièces
Maison neuve, 65 m²
Chatuzange-le-Goubet (26300)
Chatuzange-le-Goubet (26300)
Maison de 1 pièce
Maison neuve, 90 m²
Chatuzange-le-Goubet (26300)
Chatuzange-le-Goubet (26300)
Maison de 4 pièces
Maison neuve, 83 m²
Chatuzange-le-Goubet (26300)
Chatuzange-le-Goubet (26300)
Maison de 4 pièces
Maison neuve, 85 m²
Chatuzange-le-Goubet (26300)
Chatuzange-le-Goubet (26300)
Maison de 4 pièces
Maison neuve, 115 m²
Romans-sur-Isère (26100)
Romans-sur-Isère (26100)
Maison de 5 pièces
Programmes à proximité
Les Jardins du Cèdre
Valence (26000)
Valence (26000)
Appartements de 2 à 5 pièces
Livraison 3ème trimestre 2027
LE CLOS ARTHUR
Saint-Marcellin (38160)
Saint-Marcellin (38160)
Appartements de 4 pièces
Contacter MAISONS FRANCE CONFORT pour recevoir plus d'informations
Remplissez le formulaire ci-dessous, vos informations sont transmises directement au constructeur qui vous contactera par email ou par téléphone afin de traiter votre demande. En savoir plus.
Voir tous nos programmes immobiliers neufs à Chatuzange-le-Goubet