Maison neuve, 95 m² - Château-Landon (77570)
239 896 €
Château-Landon (77570)
Proposée par BABEAU SEGUIN AGENCE DE NEMOURS (77140) – SEINE ET – 5 pièces - 4 chambres - terrain 744 m²
|
|
| Babeau Seguin Agence de Nemours (77140) – Seine et |
- Demande d'information
- Prendre rendez-vous
MAISON À CONSTRUIRE : ceci est une annonce d'une maison neuve à construire.
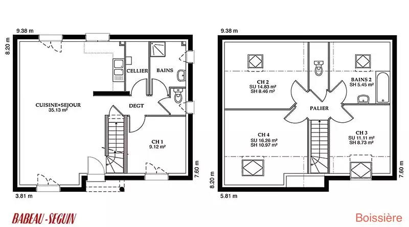
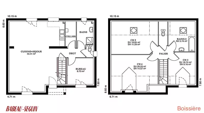
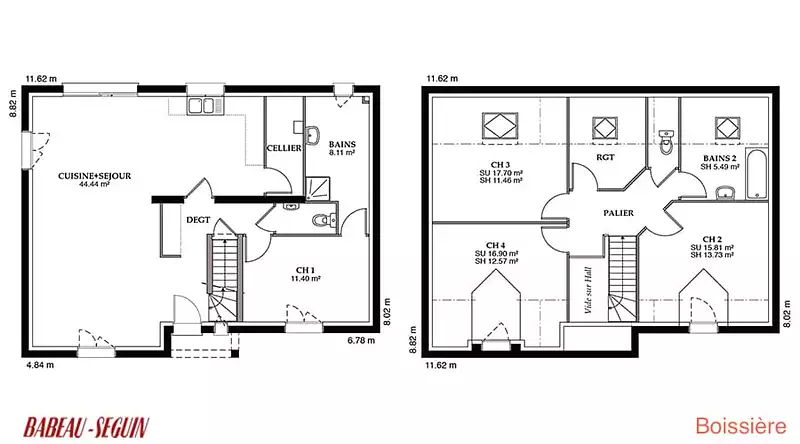
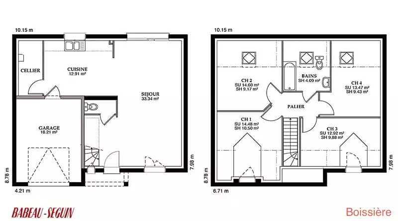
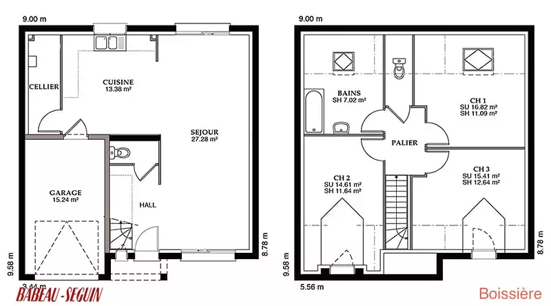
Sur ce terrain, nous vous proposons cette maison neuve, la Boissière, construite par Babeau-Seguin, le constructeur offrant le meilleur rapport qualité/prix du marché. Cette élégante maison à étage d’une surface de 95 m² est idéale pour toutes les familles en quête de confort.
La Boissière comprend 3 chambres spacieuses et 4 pièces bien agencées, offrant un espace de vie fonctionnel et agréable. Le plancher de l’étage est constitué d’une dalle étage en béton, assurant robustesse et durabilité, tandis que la charpente traditionnelle ajoute une touche de charme et d'authenticité à l'ensemble.
Cette maison neuve est basse consommation et conforme à la RE2020, garantissant des performances énergétiques optimales et des économies sur vos factures d'énergie. Vous pourrez ainsi profiter d'un confort thermique tout au long de l'année, tout en respectant l'environnement.
Disponible en 8 versions, avec ou sans garage intégré, la Boissière est le type même de construction qui sait s’adapter à tous les terrains et à toutes les familles. Comme l’ensemble de nos maisons, le plan peut être personnalisé en fonction de vos besoins et de vos envies, pour créer un espace de vie qui vous ressemble.
Ne manquez pas cette opportunité de faire construire une maison qui allie confort, qualité et économies d'énergie. Contactez-nous dès maintenant pour plus d'informations et pour découvrir toutes les options disponibles pour la Boissière.
Référence : 91989
Les informations sur les risques auxquels ce bien est exposé sont disponibles sur le site Géorisques : www.georisques.gouv.fr
La Boissière comprend 3 chambres spacieuses et 4 pièces bien agencées, offrant un espace de vie fonctionnel et agréable. Le plancher de l’étage est constitué d’une dalle étage en béton, assurant robustesse et durabilité, tandis que la charpente traditionnelle ajoute une touche de charme et d'authenticité à l'ensemble.
Cette maison neuve est basse consommation et conforme à la RE2020, garantissant des performances énergétiques optimales et des économies sur vos factures d'énergie. Vous pourrez ainsi profiter d'un confort thermique tout au long de l'année, tout en respectant l'environnement.
Disponible en 8 versions, avec ou sans garage intégré, la Boissière est le type même de construction qui sait s’adapter à tous les terrains et à toutes les familles. Comme l’ensemble de nos maisons, le plan peut être personnalisé en fonction de vos besoins et de vos envies, pour créer un espace de vie qui vous ressemble.
Ne manquez pas cette opportunité de faire construire une maison qui allie confort, qualité et économies d'énergie. Contactez-nous dès maintenant pour plus d'informations et pour découvrir toutes les options disponibles pour la Boissière.
Référence : 91989
Les informations sur les risques auxquels ce bien est exposé sont disponibles sur le site Géorisques : www.georisques.gouv.fr
- Prix
-
- Prix total : 239 896 €
- Prix du modèle de maison : 204 896 €
- Prix du terrain : 35 000 €
- Terrain
-
- Surface : 744 m²
- Maison
-
- Surface : 95 m²
- Pièces : 5
- Chambres : 4
- Être rappelé par un conseiller
- Demander plus d’infos
- Demande d'information
Château-Landon (77570)
Maisons à proximité
Maison neuve, 114 m²
Château-Landon (77570)
Château-Landon (77570)
Maison de 5 pièces
Maison neuve, 83 m²
Château-Landon (77570)
Château-Landon (77570)
Maison de 4 pièces
Maison neuve, 90 m²
Château-Landon (77570)
Château-Landon (77570)
Maison de 5 pièces
Maison neuve, 76 m²
Château-Landon (77570)
Château-Landon (77570)
Maison de 4 pièces
Maison neuve, 90 m²
Château-Landon (77570)
Château-Landon (77570)
Maison de 5 pièces
Maison neuve, 120 m²
Château-Landon (77570)
Château-Landon (77570)
Maison de 5 pièces
Programmes à proximité
Les Jardins du Grand Pont
Nemours (77140)
Nemours (77140)
Appartements de 2 à 4 pièces
Livraison 3ème trimestre 2028
Résidence Le Fleury
Nemours (77140)
Nemours (77140)
Appartements de 3 pièces et maisons de 4 pièces
Livraison 4ème trimestre 2026
LE DOMAINE DE CASTILLE
La Chapelle-la-Reine (77760)
La Chapelle-la-Reine (77760)
Appartements de 2 à 3 pièces et maisons de 4 à 5 pièces
Livraison 1er trimestre 2027
Contacter BABEAU SEGUIN AGENCE DE NEMOURS (77140) – SEINE ET pour recevoir plus d'informations
Remplissez le formulaire ci-dessous, vos informations sont transmises directement au constructeur qui vous contactera par email ou par téléphone afin de traiter votre demande. En savoir plus.