Maison neuve, 117 m² - Brissac Loire Aubance (49320)

312 500 €
Brissac Loire Aubance (49320)

Proposée par MAISONS BERNARD JAMBERT – 6 pièces - 4 chambres - terrain 477 m²

MAISONS BERNARD JAMBERT
MAISONS BERNARD JAMBERT
  • Demande d'information
MAISON À CONSTRUIRE : ceci est une annonce d'une maison neuve à construire.
Les Alleuds : maison T6 (117 m²) à vendre
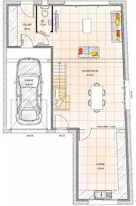
Proche d'Angers - En vente aux Alleuds (49320) : maison neuve 6 pièces de 117 m² et de 477 m² de terrain. Son intérieur propose quatre chambres, une cuisine et deux salles de bains.
À dix minutes : École Primaire Publique des Alleuds, épicerie et boucherie-charcuterie. Autoroutes A87N et A87 accessibles à 13 km.
Cette maison de 6 pièces est à vendre pour la somme de 312 500 €.
Prenez contact avec Roman SALAS (tél : 02-41-77-17-17) pour tout renseignement sur la maison, sur les démarches à suivre ou sur les modalités de vente. Maisons Bernard Jambert Angers est là pour vous accompagner dans tous vos projets immobiliers.
Référence : RS2329322_2
Terrain proposé par un partenaire foncier selon disponibilités et autorisation de publicité au prix de 60 000 €. Hors droit d'enregistrement et frais de notaire. Terrain + Maison proposés au prix de 252 500 € (Hors branchements et raccordements, papiers peints, peintures, revêtement de sol dans les chambres. Tarif modifiable sans préavis). Etiquette énergie : A. Différents modèles disponibles pour ce terrain. Assurances et garanties du constructeur (RC professionnelle, décennale, dommage ouvrage, garantie de remboursement de l'acompte, livraison à prix et délai convenu) : https://www.maisons-bernard-jambert.com/informations-legales/.

Les informations sur les risques auxquels ce bien est exposé sont disponibles sur le site Géorisques : www.georisques.gouv.fr


Prix
  • Prix total : 312 500 €
  • Prix du modèle de maison : 252 500 €
  • Prix du terrain : 60 000 €

Terrain
  • Surface : 477 m²

Maison
  • Surface : 117 m²
  • Pièces : 6
  • Chambres : 4
  • Garage : 1

  • Être rappelé par un conseiller
  • Demander plus d’infos
  • Demande d'information
Brissac Loire Aubance (49320)

Programmes à proximité

Clos de Saé
Clos de Saé
Les Ponts-de-Cé (49130)

Appartements de 1 à 3 pièces

TERRE DE CE II
TERRE DE CE II
Les Ponts-de-Cé (49130)

Appartements de 2 à 3 pièces
Livraison 4ème trimestre 2027

My Campus Anjou
My Campus Anjou
Trélazé (49800)

Appartements de 1 à 2 pièces
Livraison 2ème trimestre 2028

Initiale
Initiale
Saint-Barthélemy-d'Anjou (49124)

Appartements de 2 à 4 pièces
Livraison 4ème trimestre 2027

L'Ecrin
L'Ecrin
Bouchemaine (49080)

Appartements de 4 pièces
Livraison 1er trimestre 2026

L'Olympe
L'Olympe
Angers (49000)

Appartements de 1 à 4 pièces
Livraison 2ème trimestre 2028

Contacter MAISONS BERNARD JAMBERT pour recevoir plus d'informations

Remplissez le formulaire ci-dessous, vos informations sont transmises directement au constructeur qui vous contactera par email ou par téléphone afin de traiter votre demande. En savoir plus.

Voir tous nos programmes immobiliers neufs à Brissac Loire Aubance