Maison neuve, 130 m² - Breux-Jouy (91650)
359 000 €
Breux-Jouy (91650)
Proposée par MAISONS BALENCY – 5 pièces - 3 chambres - terrain 310 m²
|
|
| MAISONS BALENCY |
- Demande d'information
- Prendre rendez-vous
MAISON À CONSTRUIRE : ceci est une annonce d'une maison neuve à construire.
Spacieuse Demeure d'Inspiration Scandinave à Breux-Jouy (91650) :
130 m² à bâtir sur un terrain en lot avant de 310 m² !
À partir de 359 000 €, réalisez votre projet de vie avec Maisons Balency, du Groupe Hexaôm, 1er constructeur de maisons individuelles en France.
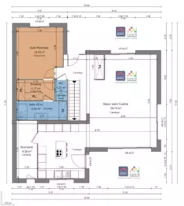
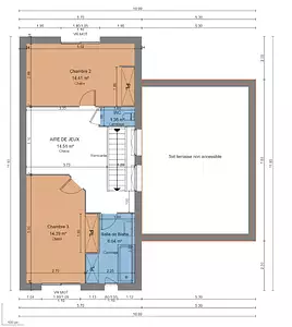
Cette maison de 5 pièces, à bâtir sur un terrain plat, allie élégance épurée et confort moderne.
Située dans un environnement résidentiel paisible de Breux-Jouy, cette localisation vous permettra de bénéficier d'un cadre verdoyant et de toutes les commodités : écoles et commerces accessibles en quelques minutes, supermarché et services à Breuillet, ainsi que la gare RER C de Breuillet-Bruyères-le-Châtel, permettant de rejoindre Paris en moins d'une heure.
Chaque projet est personnalisable : nos modèles peuvent être adaptés selon vos envies ou entièrement conçus sur mesure, toujours dans le respect des dernières normes environnementales RE2020.
Maisons Balency - Agence d'Ormoy
23 chemin de Tournenfils, 91540 ORMOYAnnonce proposée par un Agent Commercial Partenaire.
Référence : PM2306030_3
Terrain proposé par un partenaire foncier selon disponibilités et autorisation de publicité au prix de 99 000 €. Hors droit d'enregistrement et frais de notaire. Terrain + Maison proposés au prix de 260 000 € (Hors branchements et raccordements, papiers peints, peintures, revêtement de sol dans les chambres. Tarif modifiable sans préavis). Etiquette énergie : A. Différents modèles disponibles pour ce terrain. . HEXAOM Services est enregistré auprès de l'ORIAS en tant que Courtier en financement, Niveau 1, sous le numéro 14001345.
Les informations sur les risques auxquels ce bien est exposé sont disponibles sur le site Géorisques : www.georisques.gouv.fr
130 m² à bâtir sur un terrain en lot avant de 310 m² !
À partir de 359 000 €, réalisez votre projet de vie avec Maisons Balency, du Groupe Hexaôm, 1er constructeur de maisons individuelles en France.
Cette maison de 5 pièces, à bâtir sur un terrain plat, allie élégance épurée et confort moderne.
Située dans un environnement résidentiel paisible de Breux-Jouy, cette localisation vous permettra de bénéficier d'un cadre verdoyant et de toutes les commodités : écoles et commerces accessibles en quelques minutes, supermarché et services à Breuillet, ainsi que la gare RER C de Breuillet-Bruyères-le-Châtel, permettant de rejoindre Paris en moins d'une heure.
Chaque projet est personnalisable : nos modèles peuvent être adaptés selon vos envies ou entièrement conçus sur mesure, toujours dans le respect des dernières normes environnementales RE2020.
Maisons Balency - Agence d'Ormoy
23 chemin de Tournenfils, 91540 ORMOYAnnonce proposée par un Agent Commercial Partenaire.
Référence : PM2306030_3
Terrain proposé par un partenaire foncier selon disponibilités et autorisation de publicité au prix de 99 000 €. Hors droit d'enregistrement et frais de notaire. Terrain + Maison proposés au prix de 260 000 € (Hors branchements et raccordements, papiers peints, peintures, revêtement de sol dans les chambres. Tarif modifiable sans préavis). Etiquette énergie : A. Différents modèles disponibles pour ce terrain. . HEXAOM Services est enregistré auprès de l'ORIAS en tant que Courtier en financement, Niveau 1, sous le numéro 14001345.
Les informations sur les risques auxquels ce bien est exposé sont disponibles sur le site Géorisques : www.georisques.gouv.fr
- Prix
-
- Prix total : 359 000 €
- Prix du modèle de maison : 260 000 €
- Prix du terrain : 99 000 €
- Terrain
-
- Surface : 310 m²
- Maison
-
- Surface : 130 m²
- Pièces : 5
- Chambres : 3
- Être rappelé par un conseiller
- Demander plus d’infos
- Demande d'information
Breux-Jouy (91650)
Maisons à proximité
Maison neuve, 62 m²
Breux-Jouy (91650)
Breux-Jouy (91650)
Maison de 3 pièces
Maison neuve, 91 m²
Breux-Jouy (91650)
Breux-Jouy (91650)
Maison de 5 pièces
Maison neuve, 70 m²
Breux-Jouy (91650)
Breux-Jouy (91650)
Maison de 3 pièces
Maison neuve, 93 m²
Breux-Jouy (91650)
Breux-Jouy (91650)
Maison de 5 pièces
Maison neuve, 88 m²
Breux-Jouy (91650)
Breux-Jouy (91650)
Maison de 6 pièces
Maison neuve, 100 m²
Breux-Jouy (91650)
Breux-Jouy (91650)
Maison de 6 pièces
Programmes à proximité
SAINT-CHERON - LES JARDINS DE LA JUINIERE 1
Saint-Chéron (91530)
Saint-Chéron (91530)
Appartements de 2 à 4 pièces
Livraison 1er trimestre 2026
CLOS SEVERAC
Arpajon (91290)
Arpajon (91290)
Appartements de 2 à 4 pièces
Livraison 4ème trimestre 2024
Essentiel
Arpajon (91290)
Arpajon (91290)
Appartements de 2 à 4 pièces
BIOSPHERE
Arpajon (91290)
Arpajon (91290)
Appartements de 2 à 3 pièces
Livraison 1er trimestre 2027
Le Domaine du Roi
Dourdan (91410)
Dourdan (91410)
Appartements de 1 à 3 pièces
Livraison 3ème trimestre 2026
Résidence de l'Orée
Linas (91310)
Linas (91310)
Appartements de 1 à 3 pièces
Livraison 4ème trimestre 2026
Contacter MAISONS BALENCY pour recevoir plus d'informations
Remplissez le formulaire ci-dessous, vos informations sont transmises directement au constructeur qui vous contactera par email ou par téléphone afin de traiter votre demande. En savoir plus.