Maison neuve, 100 m² - Bourges (18000)
259 000 €
Bourges (18000)
Proposée par MAISONS BRUNO PETIT MJB – 3 pièces - 2 chambres - terrain 600 m²
|
|
| MAISONS BRUNO PETIT MJB |
| (104 avis) |
- Demande d'information
- Prendre rendez-vous
MAISON À CONSTRUIRE : ceci est une annonce d'une maison neuve à construire.
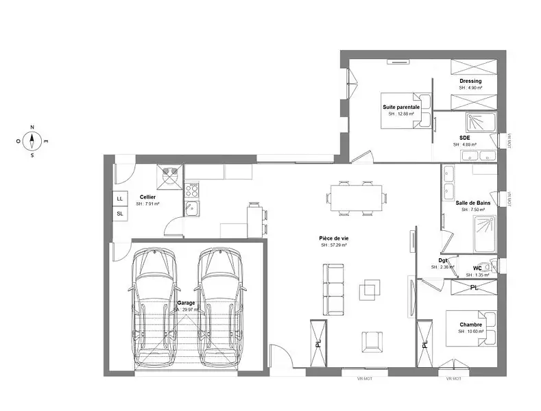
Bourges : maison de 3 pièces (100 m²) à vendre
Idéalement située - Maison neuve 3 pièces en vente à Bourges (18000) avec une surface de 100 m² sur un terrain de 600 m². Son intérieur est composé de deux chambres, d'une cuisine et de deux salles de bains.
À dix minutes : gares (Bourges, Saint-Germain-du-Puy et Marmagne), établissements scolaires, crèche, INSA Centre Val de Loire, commerces, boulangeries, supermarchés, bureau de poste et épiceries. Marché Place des Marronniers le jeudi matin. Autoroute A71 et nationales N142 et N151 accessibles à 7 km.
Cette maison de 3 pièces est proposée à l'achat pour 259 000 €.
. Concrétisez vos projets immobiliers avec Maisons Bruno Petit MJB Bourges.
Référence : JL2312119_5
Terrain proposé par un partenaire foncier selon disponibilités et autorisation de publicité au prix de 50 000 €. Hors droit d'enregistrement et frais de notaire. Maison proposée, avec un contrat de construction de maison individuelle, dans le cadre de la loi du 19/12/1990, au prix de 209 000 € (Hors branchements et raccordements, papiers peints, peintures, revêtement de sol dans les chambres, qui sont chiffrés dans les travaux qui restent à charge du client. Tarif modifiable sans préavis). Étiquette énergie : A. Différents modèles disponibles pour ce terrain. Assurances et garanties du constructeur comprises (RC professionnelle, décennale, dommage ouvrage).
Les informations sur les risques auxquels ce bien est exposé sont disponibles sur le site Géorisques : www.georisques.gouv.fr
Idéalement située - Maison neuve 3 pièces en vente à Bourges (18000) avec une surface de 100 m² sur un terrain de 600 m². Son intérieur est composé de deux chambres, d'une cuisine et de deux salles de bains.
À dix minutes : gares (Bourges, Saint-Germain-du-Puy et Marmagne), établissements scolaires, crèche, INSA Centre Val de Loire, commerces, boulangeries, supermarchés, bureau de poste et épiceries. Marché Place des Marronniers le jeudi matin. Autoroute A71 et nationales N142 et N151 accessibles à 7 km.
Cette maison de 3 pièces est proposée à l'achat pour 259 000 €.
. Concrétisez vos projets immobiliers avec Maisons Bruno Petit MJB Bourges.
Référence : JL2312119_5
Terrain proposé par un partenaire foncier selon disponibilités et autorisation de publicité au prix de 50 000 €. Hors droit d'enregistrement et frais de notaire. Maison proposée, avec un contrat de construction de maison individuelle, dans le cadre de la loi du 19/12/1990, au prix de 209 000 € (Hors branchements et raccordements, papiers peints, peintures, revêtement de sol dans les chambres, qui sont chiffrés dans les travaux qui restent à charge du client. Tarif modifiable sans préavis). Étiquette énergie : A. Différents modèles disponibles pour ce terrain. Assurances et garanties du constructeur comprises (RC professionnelle, décennale, dommage ouvrage).
Les informations sur les risques auxquels ce bien est exposé sont disponibles sur le site Géorisques : www.georisques.gouv.fr
- Prix
-
- Prix total : 259 000 €
- Prix du modèle de maison : 209 000 €
- Prix du terrain : 50 000 €
- Terrain
-
- Surface : 600 m²
- Maison
-
- Surface : 100 m²
- Pièces : 3
- Chambres : 2
- Garage : 1
- Être rappelé par un conseiller
- Demander plus d’infos
- Demande d'information
Bourges (18000)
Maisons à proximité
Le Hameau des Alisiers
Bourges (18000)
Bourges (18000)
Maisons de 3 à 4 pièces
Livraison 4ème trimestre 2027
Maison neuve, 73 m²
Bourges (18000)
Bourges (18000)
Maison de 4 pièces
Maison neuve, 130 m²
Bourges (18000)
Bourges (18000)
Maison de 5 pièces
Maison neuve, 80 m²
Bourges (18000)
Bourges (18000)
Maison de 3 pièces
Maison neuve, 74 m²
Bourges (18000)
Bourges (18000)
Maison de 4 pièces
Maison neuve, 109 m²
Bourges (18000)
Bourges (18000)
Maison de 5 pièces
Programmes à proximité
Le Clos d'Auron
Bourges (18000)
Bourges (18000)
Appartements de 2 à 3 pièces
Livraison 1er trimestre 2028
Dans un écrin historique à 8 min* du centre
Bourges (18000)
Bourges (18000)
Appartement de 2 pièces
Livraison 3ème trimestre 2026
Carré Voltaire
Bourges (18000)
Bourges (18000)
Appartements de 1 à 4 pièces
Livraison 1er trimestre 2028
Contacter MAISONS BRUNO PETIT MJB pour recevoir plus d'informations
Remplissez le formulaire ci-dessous, vos informations sont transmises directement au constructeur qui vous contactera par email ou par téléphone afin de traiter votre demande. En savoir plus.