Maison neuve, 130 m² - Bourges (18000)
250 595 €
Bourges (18000)
Proposée par STYL HABITAT AGENCE DE VARENNES-VAUZELLES / NEVERS – 5 pièces - 4 chambres - terrain 1 400 m²
|
|
| Styl habitat Agence de Varennes-Vauzelles / Nevers |
- Demande d'information
- Prendre rendez-vous
MAISON À CONSTRUIRE : ceci est une annonce d'une maison neuve à construire.
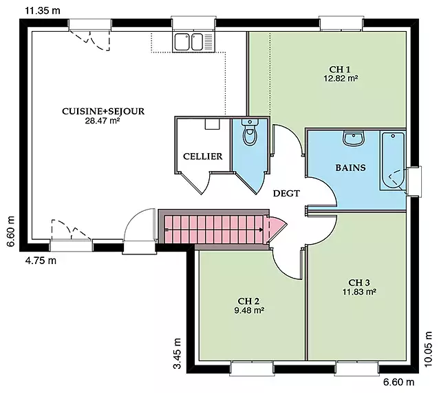
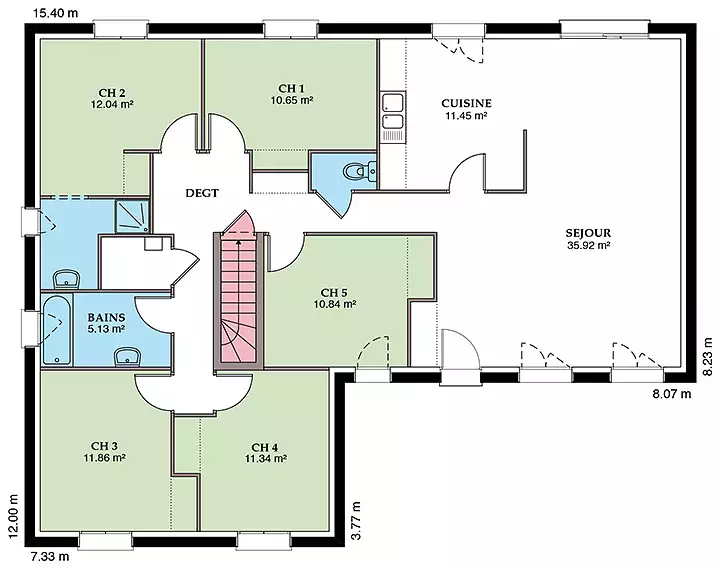
Découvrez la Sommière, maison neuve de 129,5 m² qui allie design contemporain et confort familial. Avec son architecture élégante, disponible en version toit 2 ou 4 pans, elle s’adapte à tous les styles et s’intègre harmonieusement à son environnement.
L’intérieur séduit par ses volumes généreux et sa luminosité naturelle. La Sommière propose 4 chambres spacieuses, un vaste séjour ouvert sur la cuisine et des espaces pensés pour allier convivialité et intimité au quotidien.
Conforme à la réglementation RE2020, cette maison basse consommation assure une excellente performance énergétique, une isolation renforcée et des économies durables sur vos factures.
La Sommière 129,5 m² est le parfait équilibre entre modernité, confort et respect de l’environnement — un lieu de vie idéal pour les familles qui veulent conjuguer qualité de vie et responsabilité écologique.
Référence : 13423
Les informations sur les risques auxquels ce bien est exposé sont disponibles sur le site Géorisques : www.georisques.gouv.fr
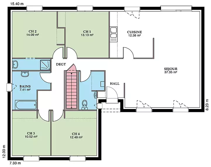
L’intérieur séduit par ses volumes généreux et sa luminosité naturelle. La Sommière propose 4 chambres spacieuses, un vaste séjour ouvert sur la cuisine et des espaces pensés pour allier convivialité et intimité au quotidien.
Conforme à la réglementation RE2020, cette maison basse consommation assure une excellente performance énergétique, une isolation renforcée et des économies durables sur vos factures.
La Sommière 129,5 m² est le parfait équilibre entre modernité, confort et respect de l’environnement — un lieu de vie idéal pour les familles qui veulent conjuguer qualité de vie et responsabilité écologique.
Référence : 13423
Les informations sur les risques auxquels ce bien est exposé sont disponibles sur le site Géorisques : www.georisques.gouv.fr
- Prix
-
- Prix total : 250 595 €
- Prix du modèle de maison : 191 095 €
- Prix du terrain : 59 500 €
- Terrain
-
- Surface : 1 400 m²
- Maison
-
- Surface : 130 m²
- Pièces : 5
- Chambres : 4
- Être rappelé par un conseiller
- Demander plus d’infos
- Demande d'information
Bourges (18000)
Maisons à proximité
Le Hameau des Alisiers
Bourges (18000)
Bourges (18000)
Maisons de 3 à 4 pièces
Livraison 4ème trimestre 2027
Maison neuve, 73 m²
Bourges (18000)
Bourges (18000)
Maison de 4 pièces
Maison neuve, 80 m²
Bourges (18000)
Bourges (18000)
Maison de 3 pièces
Maison neuve, 109 m²
Bourges (18000)
Bourges (18000)
Maison de 5 pièces
Maison neuve, 74 m²
Bourges (18000)
Bourges (18000)
Maison de 4 pièces
Maison neuve, 160 m²
Bourges (18000)
Bourges (18000)
Maison de 6 pièces
Programmes à proximité
Le Clos d'Auron
Bourges (18000)
Bourges (18000)
Appartements de 2 à 3 pièces
Livraison 1er trimestre 2028
Dans un écrin historique à 8 min* du centre
Bourges (18000)
Bourges (18000)
Appartement de 2 pièces
Livraison 3ème trimestre 2026
Carré Voltaire
Bourges (18000)
Bourges (18000)
Appartements de 1 à 4 pièces
Livraison 1er trimestre 2028
Contacter STYL HABITAT AGENCE DE VARENNES-VAUZELLES / NEVERS pour recevoir plus d'informations
Remplissez le formulaire ci-dessous, vos informations sont transmises directement au constructeur qui vous contactera par email ou par téléphone afin de traiter votre demande. En savoir plus.