Maison neuve, 89 m² - Blavozy (43700)
228 285 €
Blavozy (43700)
Proposée par MAISON ET JARDIN – 4 pièces - 3 chambres - terrain 845 m²
|
|
| Maison et Jardin |
- Demande d'information
- Prendre rendez-vous
MAISON À CONSTRUIRE : ceci est une annonce d'une maison neuve à construire.
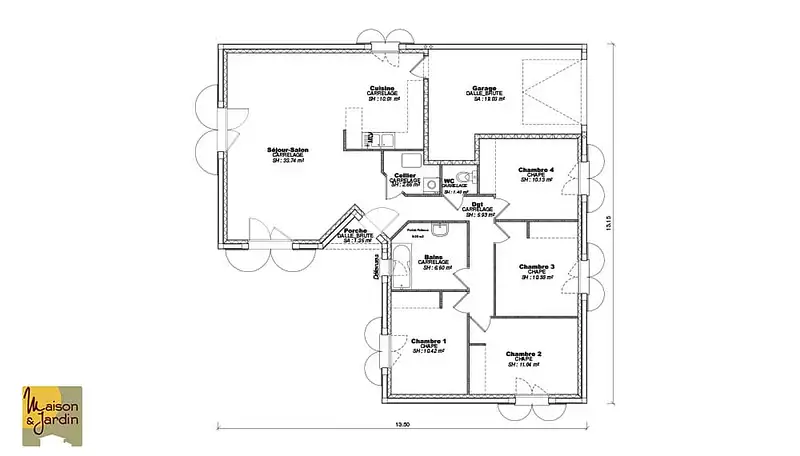
Nous vous proposons cette maison neuve, baptisée Eolia, un modèle d'habitation qui conjugue élégance et fonctionnalité sur une surface de 89 m². Conçue en forme de L, cette maison se distingue par son architecture moderne et son intégration harmonieuse dans l'environnement. Avec ses 3 chambres et ses 4 pièces au total, Eolia offre un cadre de vie idéal pour une famille à la recherche de confort et de bien-être.
L'Eolia se présente avec sa toiture 4 pans et intègre un garage, combinant esthétique et praticité. Son design en L n'est pas seulement un choix esthétique mais aussi fonctionnel, permettant de délimiter naturellement les espaces de vie et offrant la possibilité d'aménager une très grande terrasse. Cette dernière, véritable extension de l'espace de vie intérieur, promet des moments conviviaux en plein air, dans un cadre privilégié.
Cette maison est conçue pour répondre aux attentes les plus exigeantes en termes de performance énergétique. Basse consommation et conforme à la norme RE2020, l'Eolia est une réponse concrète aux enjeux de développement durable et de réduction des dépenses énergétiques. Elle représente ainsi un investissement pérenne, garantissant confort et économies sur le long terme.
L'intérieur de l'Eolia est pensé pour offrir un cadre de vie agréable et fonctionnel. Les espaces sont optimisés pour faciliter la circulation et maximiser la lumière naturelle, créant une atmosphère chaleureuse et accueillante. Cette maison est le coup de cœur assuré pour ceux qui cherchent à allier modernité, confort et respect de l'environnement.
Choisir l'Eolia, c'est opter pour une maison qui s'adapte à votre style de vie tout en anticipant les besoins de demain. Ne manquez pas l'opportunité de construire la maison de vos rêves, une demeure où il fait bon vivre, ouverte sur l'extérieur et respectueuse de l'environnement.
Référence : 13711
Les informations sur les risques auxquels ce bien est exposé sont disponibles sur le site Géorisques : www.georisques.gouv.fr
L'Eolia se présente avec sa toiture 4 pans et intègre un garage, combinant esthétique et praticité. Son design en L n'est pas seulement un choix esthétique mais aussi fonctionnel, permettant de délimiter naturellement les espaces de vie et offrant la possibilité d'aménager une très grande terrasse. Cette dernière, véritable extension de l'espace de vie intérieur, promet des moments conviviaux en plein air, dans un cadre privilégié.
Cette maison est conçue pour répondre aux attentes les plus exigeantes en termes de performance énergétique. Basse consommation et conforme à la norme RE2020, l'Eolia est une réponse concrète aux enjeux de développement durable et de réduction des dépenses énergétiques. Elle représente ainsi un investissement pérenne, garantissant confort et économies sur le long terme.
L'intérieur de l'Eolia est pensé pour offrir un cadre de vie agréable et fonctionnel. Les espaces sont optimisés pour faciliter la circulation et maximiser la lumière naturelle, créant une atmosphère chaleureuse et accueillante. Cette maison est le coup de cœur assuré pour ceux qui cherchent à allier modernité, confort et respect de l'environnement.
Choisir l'Eolia, c'est opter pour une maison qui s'adapte à votre style de vie tout en anticipant les besoins de demain. Ne manquez pas l'opportunité de construire la maison de vos rêves, une demeure où il fait bon vivre, ouverte sur l'extérieur et respectueuse de l'environnement.
Référence : 13711
Les informations sur les risques auxquels ce bien est exposé sont disponibles sur le site Géorisques : www.georisques.gouv.fr
- Prix
-
- Prix total : 228 285 €
- Prix du modèle de maison : 154 800 €
- Prix du terrain : 73 485 €
- Terrain
-
- Surface : 845 m²
- Maison
-
- Surface : 89 m²
- Pièces : 4
- Chambres : 3
- Être rappelé par un conseiller
- Demander plus d’infos
- Demande d'information
Blavozy (43700)
Maisons à proximité
Maison neuve, 80 m²
Blavozy (43700)
Blavozy (43700)
Maison de 4 pièces
Maison neuve, 97 m²
Blavozy (43700)
Blavozy (43700)
Maison de 5 pièces
Maison neuve, 118 m²
Saint-Germain-Laprade (43700)
Saint-Germain-Laprade (43700)
Maison de 4 pièces
Maison neuve, 85 m²
Saint-Germain-Laprade (43700)
Saint-Germain-Laprade (43700)
Maison de 4 pièces
Maison neuve, 91 m²
Saint-Pierre-Eynac (43260)
Saint-Pierre-Eynac (43260)
Maison de 5 pièces
Maison neuve, 89 m²
Saint-Julien-Chapteuil (43260)
Saint-Julien-Chapteuil (43260)
Maison de 4 pièces
Programmes à proximité
Contacter MAISON ET JARDIN pour recevoir plus d'informations
Remplissez le formulaire ci-dessous, vos informations sont transmises directement au constructeur qui vous contactera par email ou par téléphone afin de traiter votre demande. En savoir plus.