Maison neuve, 75 m² - Blavozy (43700)
208 565 €
Blavozy (43700)
Proposée par MAISON ET JARDIN – 4 pièces - 3 chambres - terrain 849 m²
|
|
| Maison et Jardin |
- Demande d'information
- Prendre rendez-vous
MAISON À CONSTRUIRE : ceci est une annonce d'une maison neuve à construire.
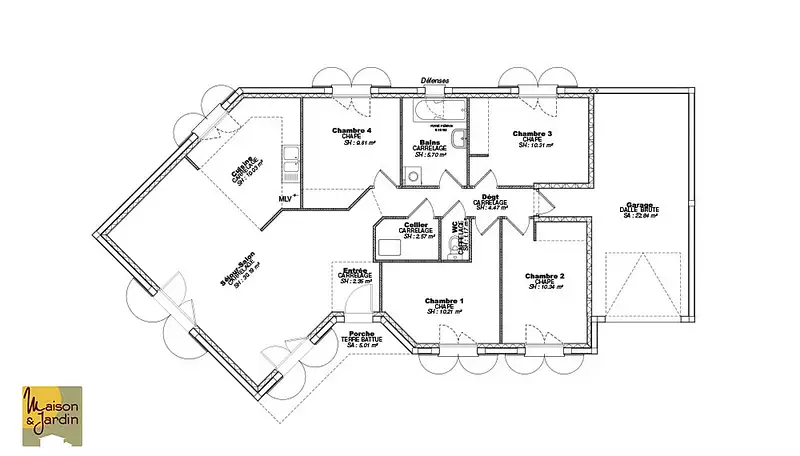
Nous vous proposons cette maison neuve, baptisée Focus 75, une perle rare dans notre gamme MAISON ET JARDIN qui incarne le meilleur rapport qualité-prix. Conçue pour répondre aux attentes des plus exigeants, cette maison de 75 m² au look moderne et aux finitions soignées est l'incarnation même de l'efficacité et du confort. Avec ses 3 chambres et ses 4 pièces au total, elle est idéale pour accueillir une famille désireuse de s'épanouir dans un espace à la fois fonctionnel et accueillant.
La Focus 75 se distingue par sa construction robuste en parpaings, gage de durabilité et de solidité. Son garage intégré de 15 m² offre non seulement un espace sécurisé pour votre véhicule mais aussi un espace de rangement supplémentaire, optimisant ainsi chaque mètre carré de la maison.
L'une des caractéristiques les plus remarquables de cette maison est son engagement envers l'environnement et votre portefeuille. Conforme à la norme RE2020, la Focus 75 est une maison basse consommation qui vous permettra de réaliser d'importantes économies d'énergie tout en réduisant votre empreinte carbone. Cet aspect est d'autant plus important aujourd'hui, où la conscience écologique et la recherche d'efficacité énergétique sont au cœur des préoccupations des nouveaux propriétaires.
Les options les plus plébiscitées par nos clients, telles que des solutions d'isolation avancées, des systèmes de chauffage performants et des équipements éco-énergétiques, sont disponibles pour personnaliser votre maison selon vos besoins et vos envies. La Focus 75 est donc une toile vierge prête à être adaptée à votre image, garantissant un confort de vie inégalé.
En choisissant la Focus 75, vous optez pour une maison qui allie esthétique moderne, fonctionnalité et respect de l'environnement, le tout pour un excellent rapport qualité/prix. Ne manquez pas l'opportunité de construire la maison de vos rêves, une maison qui répond à vos exigences d'aujourd'hui et de demain. Contactez-nous pour plus d'informations
Référence : 12906
Les informations sur les risques auxquels ce bien est exposé sont disponibles sur le site Géorisques : www.georisques.gouv.fr
La Focus 75 se distingue par sa construction robuste en parpaings, gage de durabilité et de solidité. Son garage intégré de 15 m² offre non seulement un espace sécurisé pour votre véhicule mais aussi un espace de rangement supplémentaire, optimisant ainsi chaque mètre carré de la maison.
L'une des caractéristiques les plus remarquables de cette maison est son engagement envers l'environnement et votre portefeuille. Conforme à la norme RE2020, la Focus 75 est une maison basse consommation qui vous permettra de réaliser d'importantes économies d'énergie tout en réduisant votre empreinte carbone. Cet aspect est d'autant plus important aujourd'hui, où la conscience écologique et la recherche d'efficacité énergétique sont au cœur des préoccupations des nouveaux propriétaires.
Les options les plus plébiscitées par nos clients, telles que des solutions d'isolation avancées, des systèmes de chauffage performants et des équipements éco-énergétiques, sont disponibles pour personnaliser votre maison selon vos besoins et vos envies. La Focus 75 est donc une toile vierge prête à être adaptée à votre image, garantissant un confort de vie inégalé.
En choisissant la Focus 75, vous optez pour une maison qui allie esthétique moderne, fonctionnalité et respect de l'environnement, le tout pour un excellent rapport qualité/prix. Ne manquez pas l'opportunité de construire la maison de vos rêves, une maison qui répond à vos exigences d'aujourd'hui et de demain. Contactez-nous pour plus d'informations
Référence : 12906
Les informations sur les risques auxquels ce bien est exposé sont disponibles sur le site Géorisques : www.georisques.gouv.fr
- Prix
-
- Prix total : 208 565 €
- Prix du modèle de maison : 135 200 €
- Prix du terrain : 73 365 €
- Terrain
-
- Surface : 849 m²
- Maison
-
- Surface : 75 m²
- Pièces : 4
- Chambres : 3
- Être rappelé par un conseiller
- Demander plus d’infos
- Demande d'information
Blavozy (43700)
Maisons à proximité
Maison neuve, 89 m²
Blavozy (43700)
Blavozy (43700)
Maison de 4 pièces
Maison neuve, 80 m²
Blavozy (43700)
Blavozy (43700)
Maison de 4 pièces
Maison neuve, 85 m²
Saint-Germain-Laprade (43700)
Saint-Germain-Laprade (43700)
Maison de 4 pièces
Maison neuve, 118 m²
Saint-Germain-Laprade (43700)
Saint-Germain-Laprade (43700)
Maison de 4 pièces
Maison neuve, 85 m²
Saint-Germain-Laprade (43700)
Saint-Germain-Laprade (43700)
Maison de 4 pièces
Maison neuve, 91 m²
Saint-Pierre-Eynac (43260)
Saint-Pierre-Eynac (43260)
Maison de 5 pièces
Programmes à proximité
Contacter MAISON ET JARDIN pour recevoir plus d'informations
Remplissez le formulaire ci-dessous, vos informations sont transmises directement au constructeur qui vous contactera par email ou par téléphone afin de traiter votre demande. En savoir plus.