Maison neuve, 90 m² - Blainville-sur-Orne (14550)

342 000 €
Blainville-sur-Orne (14550)

Proposée par MAISONS FRANCE CONFORT – 3 pièces - 3 chambres - terrain 497 m²

MAISONS FRANCE CONFORT
MAISONS FRANCE CONFORT
(119 avis)
  • Demande d'information
MAISON À CONSTRUIRE : ceci est une annonce d'une maison neuve à construire.
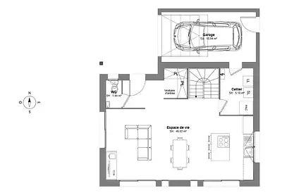
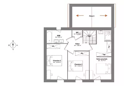
Maison F3 (90 m²) en vente à Blainville-sur-Orne
Idéalement située - En vente à Blainville-sur-Orne (14550) : maison neuve 3 pièces de 90 m² sur un terrain de 497 m². Son intérieur dispose de trois chambres, d'une cuisine et de deux salles de bains.
Proche gare (Caen), établissements scolaires, crèches, tennis, bibliothèque, commerces, supermarché, boulangeries et bureau de poste. Autoroute A13 et nationale N814 à 7 km. Manche à 8 km. Caen à 7 km.
Cette maison de 3 pièces est proposée à l'achat pour 342 000 €.
.
Référence : SC2269971_1
Terrain proposé par un partenaire foncier selon disponibilités et autorisation de publicité au prix de 108 000 €. Hors droit d'enregistrement et frais de notaire. Maison proposée, avec un contrat de construction de maison individuelle, dans le cadre de la loi du 19/12/1990, au prix de 234 000 € (Hors branchements et raccordements, papiers peints, peintures, revêtement de sol dans les chambres, qui sont chiffrés dans les travaux qui restent à charge du client. Tarif modifiable sans préavis). Étiquette énergie : A. Différents modèles disponibles pour ce terrain. Assurances et garanties du constructeur comprises (RC professionnelle, décennale, dommage ouvrage).

Les informations sur les risques auxquels ce bien est exposé sont disponibles sur le site Géorisques : www.georisques.gouv.fr


Prix
  • Prix total : 342 000 €
  • Prix du modèle de maison : 234 000 €
  • Prix du terrain : 108 000 €

Terrain
  • Surface : 497 m²

Maison
  • Surface : 90 m²
  • Pièces : 3
  • Chambres : 3
  • Garage : 1

  • Être rappelé par un conseiller
  • Demander plus d’infos
  • Demande d'information
Blainville-sur-Orne (14550)

Programmes à proximité

Allée Vasarely
Allée Vasarely
Blainville-sur-Orne (14550)

Appartement de 4 pièces
Livraison 4ème trimestre 2026

A 10 MIN DU CENTRE-VILLE
A 10 MIN DU CENTRE-VILLE
Colombelles (14460)

Appartements de 3 pièces
Livraison 3ème trimestre 2026

VILLA EMERAUDE
VILLA EMERAUDE
Epron (14610)

Appartements de 2 à 4 pièces
Livraison 3ème trimestre 2026

Coeur Héritage
Coeur Héritage
Ouistreham (14150)

Appartements de 1 à 6 pièces
Livraison 4ème trimestre 2027

ARMONIA
ARMONIA
Mondeville (14120)

Appartements de 3 à 5 pièces et maisons de 4 à 5 pièces
Livraison 1er trimestre 2026

L'EDEN
L'EDEN
Caen (14000)

Appartements de 2 à 4 pièces
Livraison 2ème trimestre 2027

Contacter MAISONS FRANCE CONFORT pour recevoir plus d'informations

Remplissez le formulaire ci-dessous, vos informations sont transmises directement au constructeur qui vous contactera par email ou par téléphone afin de traiter votre demande. En savoir plus.

Voir tous nos programmes immobiliers neufs à Blainville-sur-Orne