Maison neuve, 180 m² - Beychac-et-Caillau (33750)

770 000 €
Beychac-et-Caillau (33750)

Proposée par ALPHA CONSTRUCTIONS – 5 pièces - 4 chambres - terrain 1 220 m²

Alpha Constructions
Alpha Constructions
  • Demande d'information
MAISON À CONSTRUIRE : ceci est une annonce d'une maison neuve à construire.
BEYCHAC ET CAILLAU
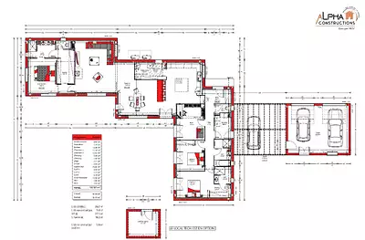
Alpha Constructions vous propose de réaliser cette magnifique villa, toute en toit plat, de 180 m² habitables avec un double garage non attenant de 40 m². Elle se compose d'une vaste pièce de vie centrale de 75 m² offrant confort et convivialité pour toute la famille, avec cuisine et arrière cuisine. D'un côté de la maison, vous trouverez 3 chambres dont 1 suite, une buanderie, une salle de bain et un WC. Une autre grande suite parentale se trouve à l'autre extrémité de la maison. Terrain de 1220 m², idéalement situé dans un quartier prisé, à 10 kilomètres de l'entrée de la rocade de Bordeaux. Contactez votre conseiller, Mr VINCENT, au O6.71.17.33.22 pour plus de renseignements.
(Inclus terrain, frais de notaire, viabilisation, maison prête à décorer)
Référence : CV2409017
Terrain proposé par un partenaire foncier selon disponibilité dans le cadre d’un projet de construction avec Alpha Constructions. Les descriptions, photographies, surfaces et prix illustrant l’annonce sont fournies à titre indicatif et ne sont pas contractuels. Non soumis au DPE. Différents modèles disponibles.

Les informations sur les risques auxquels ce bien est exposé sont disponibles sur le site Géorisques : www.georisques.gouv.fr


Prix
  • Prix total : 770 000 €
  • Prix du modèle de maison : N.C.
  • Prix du terrain : N.C.

Terrain
  • Surface : 1 220 m²

Maison
  • Surface : 180 m²
  • Pièces : 5
  • Chambres : 4
  • Garage : 1

  • Être rappelé par un conseiller
  • Demander plus d’infos
  • Demande d'information
Beychac-et-Caillau (33750)

Programmes à proximité

Domaine Sansaumoine
Domaine Sansaumoine
Carbon-Blanc (33560)

Appartements de 2 à 4 pièces
Livraison 3ème trimestre 2027

ALBA
ALBA
Carbon-Blanc (33560)

Appartements de 1 à 3 pièces
Livraison 3ème trimestre 2028

Domaine Lafontaine
Domaine Lafontaine
Carbon-Blanc (33560)

Appartements de 2 à 3 pièces et maisons de 3 à 4 pièces
Livraison 4ème trimestre 2027

Les Terrasses de la Victoire
Les Terrasses de la Victoire
Ambarès-et-Lagrave (33440)

Appartements de 2 à 3 pièces
Livraison 2ème trimestre 2028

Résidence Le Coty
Résidence Le Coty
Ambarès-et-Lagrave (33440)

Appartements de 1 à 4 pièces
Livraison 1er trimestre 2027

Hubline
Hubline
Lormont (33310)

Appartements de 2 à 3 pièces
Livraison 4ème trimestre 2027

Contacter ALPHA CONSTRUCTIONS pour recevoir plus d'informations

Remplissez le formulaire ci-dessous, vos informations sont transmises directement au constructeur qui vous contactera par email ou par téléphone afin de traiter votre demande. En savoir plus.

Voir tous nos programmes immobiliers neufs à Beychac-et-Caillau