Maison neuve, 63 m² - Ballon (17290)

182 322 €
Ballon (17290)

Proposée par MAISONS PRIVAT AGENCE DE LA ROCHELLE (17) – 3 pièces - 2 chambres - terrain 281 m²

Maisons Privat Agence de La Rochelle (17)
Maisons Privat Agence de La Rochelle (17)
  • Demande d'information
MAISON À CONSTRUIRE : ceci est une annonce d'une maison neuve à construire.
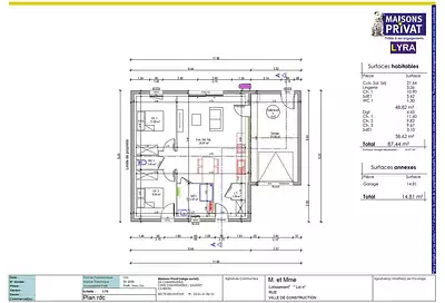
Sur ce terrain, nous vous proposons cette maison de plain-pied au design contemporain, idéale pour un confort de vie au quotidien. Ses deux chambres offrent un espace nuit cosy, tandis que la vaste pièce de vie de plus de 35 m² réunit cuisine ouverte, salle à manger et salon, baignés de lumière naturelle. Vous profiterez également d’une salle d’eau moderne et d’un WC indépendant, pensés pour simplifier votre quotidien.
Le garage de plus de 20 m² constitue un atout majeur pour stationner votre véhicule en toute sécurité ou aménager un espace de bricolage.
Son architecture élégante, soulignée par une toiture à double pente, s’intègre harmonieusement à l’environnement. Ne manquez pas cette belle opportunité?: chaque détail a été soigneusement étudié pour vous garantir une qualité de vie incomparable.
Référence : 61941

Les informations sur les risques auxquels ce bien est exposé sont disponibles sur le site Géorisques : www.georisques.gouv.fr


Prix
  • Prix total : 182 322 €
  • Prix du modèle de maison : 131 222 €
  • Prix du terrain : 51 100 €

Terrain
  • Surface : 281 m²

Maison
  • Surface : 63 m²
  • Pièces : 3
  • Chambres : 2

  • Être rappelé par un conseiller
  • Demander plus d’infos
  • Demande d'information
Ballon (17290)

Programmes à proximité

Le Clos du Chemin Vert
Le Clos du Chemin Vert
La Jarrie (17220)

Appartements de 3 à 5 pièces et maisons de 5 à 6 pièces et locaux commerciaux
Livraison 4ème trimestre 2026

VILLA MARINE
VILLA MARINE
Châtelaillon-Plage (17340)

Appartements de 3 à 4 pièces
Livraison 1er trimestre 2028

Domaine du Haut-Rillon
Domaine du Haut-Rillon
Châtelaillon-Plage (17340)

Appartements de 2 à 4 pièces
Livraison 1er trimestre 2028

L'ESTRAN TR 2
L'ESTRAN TR 2
Fouras (17450)

Appartements de 2 à 3 pièces et maisons de 4 pièces
Livraison 3ème trimestre 2027

L'Alizé - FOURAS (17)
L'Alizé - FOURAS (17)
Fouras (17450)

Appartements de 2 à 3 pièces
Livraison 2ème trimestre 2026

LES DEUX RIVAGES
LES DEUX RIVAGES
Fouras (17450)

Appartements de 3 pièces
Livraison 3ème trimestre 2025

Contacter MAISONS PRIVAT AGENCE DE LA ROCHELLE (17) pour recevoir plus d'informations

Remplissez le formulaire ci-dessous, vos informations sont transmises directement au constructeur qui vous contactera par email ou par téléphone afin de traiter votre demande. En savoir plus.

Voir tous nos programmes immobiliers neufs à Ballon