Maison neuve, 122 m² - Aups (83630)
460 000 €
Aups (83630)
Proposée par MAISONS FRANCE CONFORT – 5 pièces - 3 chambres - terrain 1 200 m²
|
|
| MAISONS FRANCE CONFORT |
| (244 avis) |
- Demande d'information
- Prendre rendez-vous
MAISON À CONSTRUIRE : ceci est une annonce d'une maison neuve à construire.
Projet de construction à AUPS
Belle villa neuve très fonctionnelle et lumineuse sur un terrain plat de 1 200 m² idéalement situé dans un quartier résidentiel au calme et à proximité de toutes les commodités. Centre village accessible en moins de 10mn à pieds.
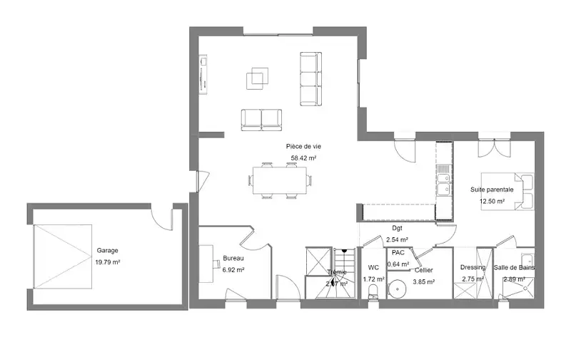
Cette villa neuve se compose au rez de chaussée d'un vaste séjour de 58m² avec une cuisine ouverte, un cellier, une suite parentale avec sa salle d'eau privative et son dressing, et un bureau.
A l'étage vous y découvrirez 2 belles chambres et une salle de bain.
Un garage vient compléter ce bien.
Votre projet clef en mains à 460 000 euros incluant votre villa avec garage, le terrain ainsi que le coût des raccordements.
Pour tous renseignements et une étude personnalisée, contactez Véronique CHAUVET au O6.28.31.67.99.
Maisons France Confort constructeur de maisons individuelles leader en France. Entreprise familiale crée en 1919.
Référence : VC2362409_3
Terrain proposé par un partenaire foncier selon disponibilités et autorisation de publicité au prix de 150 000 €. Hors droit d'enregistrement et frais de notaire. Terrain + Maison proposés au prix de 310 000 € (Hors branchements et raccordements, papiers peints, peintures, revêtement de sol dans les chambres. Tarif modifiable sans préavis). Etiquette énergie : A. Différents modèles disponibles pour ce terrain. Assurances et garanties du constructeur (RC professionnelle, décennale, dommage ouvrage, garantie de remboursement de l'acompte, livraison à prix et délai convenu) : https://www.maisons-france-confort.fr/mentions-legales/. HEXAOM Services est enregistré auprès de l'ORIAS en tant que Courtier en financement, Niveau 1, sous le numéro 14001345.
Les informations sur les risques auxquels ce bien est exposé sont disponibles sur le site Géorisques : www.georisques.gouv.fr
Belle villa neuve très fonctionnelle et lumineuse sur un terrain plat de 1 200 m² idéalement situé dans un quartier résidentiel au calme et à proximité de toutes les commodités. Centre village accessible en moins de 10mn à pieds.
Cette villa neuve se compose au rez de chaussée d'un vaste séjour de 58m² avec une cuisine ouverte, un cellier, une suite parentale avec sa salle d'eau privative et son dressing, et un bureau.
A l'étage vous y découvrirez 2 belles chambres et une salle de bain.
Un garage vient compléter ce bien.
Votre projet clef en mains à 460 000 euros incluant votre villa avec garage, le terrain ainsi que le coût des raccordements.
Pour tous renseignements et une étude personnalisée, contactez Véronique CHAUVET au O6.28.31.67.99.
Maisons France Confort constructeur de maisons individuelles leader en France. Entreprise familiale crée en 1919.
Référence : VC2362409_3
Terrain proposé par un partenaire foncier selon disponibilités et autorisation de publicité au prix de 150 000 €. Hors droit d'enregistrement et frais de notaire. Terrain + Maison proposés au prix de 310 000 € (Hors branchements et raccordements, papiers peints, peintures, revêtement de sol dans les chambres. Tarif modifiable sans préavis). Etiquette énergie : A. Différents modèles disponibles pour ce terrain. Assurances et garanties du constructeur (RC professionnelle, décennale, dommage ouvrage, garantie de remboursement de l'acompte, livraison à prix et délai convenu) : https://www.maisons-france-confort.fr/mentions-legales/. HEXAOM Services est enregistré auprès de l'ORIAS en tant que Courtier en financement, Niveau 1, sous le numéro 14001345.
Les informations sur les risques auxquels ce bien est exposé sont disponibles sur le site Géorisques : www.georisques.gouv.fr
- Prix
-
- Prix total : 460 000 €
- Prix du modèle de maison : 310 000 €
- Prix du terrain : 150 000 €
- Terrain
-
- Surface : 1 200 m²
- Maison
-
- Surface : 122 m²
- Pièces : 5
- Chambres : 3
- Garage : 1
- Être rappelé par un conseiller
- Demander plus d’infos
- Demande d'information
Aups (83630)
Maisons à proximité
Maison neuve, 96 m²
Aups (83630)
Aups (83630)
Maison de 4 pièces
Maison neuve, 105 m²
Aups (83630)
Aups (83630)
Maison de 5 pièces
Maison neuve, 120 m²
Aups (83630)
Aups (83630)
Maison de 5 pièces
Maison neuve, 74 m²
Villecroze (83690)
Villecroze (83690)
Maison de 4 pièces
Maison neuve, 77 m²
Villecroze (83690)
Villecroze (83690)
Maison de 4 pièces
Maison neuve, 84 m²
Villecroze (83690)
Villecroze (83690)
Maison de 4 pièces
Programmes à proximité
FLEUR DU NIL
Draguignan (83300)
Draguignan (83300)
Appartement
Livraison 4ème trimestre 2026
Les Terrasses du Dragon
Draguignan (83300)
Draguignan (83300)
Appartements de 2 à 3 pièces
Livraison 2ème trimestre 2028
Le domaine de la Fée
Draguignan (83300)
Draguignan (83300)
Appartements de 2 pièces
Livraison 2ème trimestre 2026
Les Jardins de Novaia
Draguignan (83300)
Draguignan (83300)
Appartements de 2 à 3 pièces
Livraison 3ème trimestre 2028
Le Domaine des Tourdres
Draguignan (83300)
Draguignan (83300)
Appartements de 3 à 4 pièces
Livraison 3ème trimestre 2029
Contacter MAISONS FRANCE CONFORT pour recevoir plus d'informations
Remplissez le formulaire ci-dessous, vos informations sont transmises directement au constructeur qui vous contactera par email ou par téléphone afin de traiter votre demande. En savoir plus.