Maison neuve, 120 m² - Aups (83630)
378 000 €
Aups (83630)
Proposée par MAISONS FRANCE CONFORT – 5 pièces - 4 chambres - terrain 1 200 m²
|
|
| MAISONS FRANCE CONFORT |
| (244 avis) |
- Demande d'information
- Prendre rendez-vous
MAISON À CONSTRUIRE : ceci est une annonce d'une maison neuve à construire.
Projet de construction à AUPS
Venez découvrir cette belle villa neuve de 120m² habitable sur un terrain de 1 200m² idéalement situé au calme, à proximité du centre ville et ses commodités !
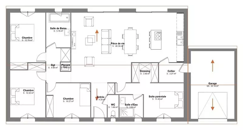
Cette villa se compose d'un bel espace de vie avec une cuisine ouverte, un cellier, 4 chambres dont une suite parentale avec sa salle d'eau privative et son dressing, et une seconde salle de bains qui vient complété ce bien. Vous aurez la possibilité d'y ajouter un garage si vous le souhaitez.
De très belles prestations sont également prévues tels que les volets roulants électriques, les menuiseries anthracite, la toiture 4 pans, le pack domotique et pour votre confort la climatisation sur l'ensemble de la maison.
Maison répondant aux normes RE2020.
Le projet clefs en mains à 378 000 euros incluant la maison, le terrain ainsi que les frais de raccordements.
Pour tous renseignements et une étude personnalisée, contacter Véronique CHAUVET au O6.28.31.67.99. Maisons France Confort entreprise familiale fondée en 1919, constructeur de maisons individuelles leader en France.
Référence : VC2362409_1
Terrain proposé par un partenaire foncier selon disponibilités et autorisation de publicité au prix de 150 000 €. Hors droit d'enregistrement et frais de notaire. Terrain + Maison proposés au prix de 228 000 € (Hors branchements et raccordements, papiers peints, peintures, revêtement de sol dans les chambres. Tarif modifiable sans préavis). Etiquette énergie : A. Différents modèles disponibles pour ce terrain. Assurances et garanties du constructeur (RC professionnelle, décennale, dommage ouvrage, garantie de remboursement de l'acompte, livraison à prix et délai convenu) : https://www.maisons-france-confort.fr/mentions-legales/. HEXAOM Services est enregistré auprès de l'ORIAS en tant que Courtier en financement, Niveau 1, sous le numéro 14001345.
Les informations sur les risques auxquels ce bien est exposé sont disponibles sur le site Géorisques : www.georisques.gouv.fr
Venez découvrir cette belle villa neuve de 120m² habitable sur un terrain de 1 200m² idéalement situé au calme, à proximité du centre ville et ses commodités !
Cette villa se compose d'un bel espace de vie avec une cuisine ouverte, un cellier, 4 chambres dont une suite parentale avec sa salle d'eau privative et son dressing, et une seconde salle de bains qui vient complété ce bien. Vous aurez la possibilité d'y ajouter un garage si vous le souhaitez.
De très belles prestations sont également prévues tels que les volets roulants électriques, les menuiseries anthracite, la toiture 4 pans, le pack domotique et pour votre confort la climatisation sur l'ensemble de la maison.
Maison répondant aux normes RE2020.
Le projet clefs en mains à 378 000 euros incluant la maison, le terrain ainsi que les frais de raccordements.
Pour tous renseignements et une étude personnalisée, contacter Véronique CHAUVET au O6.28.31.67.99. Maisons France Confort entreprise familiale fondée en 1919, constructeur de maisons individuelles leader en France.
Référence : VC2362409_1
Terrain proposé par un partenaire foncier selon disponibilités et autorisation de publicité au prix de 150 000 €. Hors droit d'enregistrement et frais de notaire. Terrain + Maison proposés au prix de 228 000 € (Hors branchements et raccordements, papiers peints, peintures, revêtement de sol dans les chambres. Tarif modifiable sans préavis). Etiquette énergie : A. Différents modèles disponibles pour ce terrain. Assurances et garanties du constructeur (RC professionnelle, décennale, dommage ouvrage, garantie de remboursement de l'acompte, livraison à prix et délai convenu) : https://www.maisons-france-confort.fr/mentions-legales/. HEXAOM Services est enregistré auprès de l'ORIAS en tant que Courtier en financement, Niveau 1, sous le numéro 14001345.
Les informations sur les risques auxquels ce bien est exposé sont disponibles sur le site Géorisques : www.georisques.gouv.fr
- Prix
-
- Prix total : 378 000 €
- Prix du modèle de maison : 228 000 €
- Prix du terrain : 150 000 €
- Terrain
-
- Surface : 1 200 m²
- Maison
-
- Surface : 120 m²
- Pièces : 5
- Chambres : 4
- Garage : 1
- Être rappelé par un conseiller
- Demander plus d’infos
- Demande d'information
Aups (83630)
Maisons à proximité
Maison neuve, 96 m²
Aups (83630)
Aups (83630)
Maison de 4 pièces
Maison neuve, 122 m²
Aups (83630)
Aups (83630)
Maison de 5 pièces
Maison neuve, 105 m²
Aups (83630)
Aups (83630)
Maison de 5 pièces
Maison neuve, 74 m²
Villecroze (83690)
Villecroze (83690)
Maison de 4 pièces
Maison neuve, 77 m²
Villecroze (83690)
Villecroze (83690)
Maison de 4 pièces
Maison neuve, 84 m²
Villecroze (83690)
Villecroze (83690)
Maison de 4 pièces
Programmes à proximité
FLEUR DU NIL
Draguignan (83300)
Draguignan (83300)
Appartement
Livraison 4ème trimestre 2026
Les Terrasses du Dragon
Draguignan (83300)
Draguignan (83300)
Appartements de 2 à 3 pièces
Livraison 2ème trimestre 2028
Le domaine de la Fée
Draguignan (83300)
Draguignan (83300)
Appartements de 2 pièces
Livraison 2ème trimestre 2026
Les Jardins de Novaia
Draguignan (83300)
Draguignan (83300)
Appartements de 2 à 3 pièces
Livraison 3ème trimestre 2028
Le Domaine des Tourdres
Draguignan (83300)
Draguignan (83300)
Appartements de 3 à 4 pièces
Livraison 3ème trimestre 2029
Contacter MAISONS FRANCE CONFORT pour recevoir plus d'informations
Remplissez le formulaire ci-dessous, vos informations sont transmises directement au constructeur qui vous contactera par email ou par téléphone afin de traiter votre demande. En savoir plus.