Maison neuve, 100 m² - Artigues-près-Bordeaux (33370)

382 310 €
Artigues-près-Bordeaux (33370)

Proposée par BATISOFT – 4 pièces - 3 chambres - terrain 427 m²

BATISOFT
BATISOFT
(60 avis)
  • Demande d'information
MAISON À CONSTRUIRE : ceci est une annonce d'une maison neuve à construire.
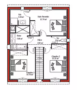
Maison de 4 pièces (100 m²) à vendre à Artigues-près-Bordeaux
Idéalement située - À découvrir à Artigues-près-Bordeaux (33370) : maison neuve 4 pièces à vendre, 2 niveaux, 100 m² de surface et 427 m² de terrain. Son intérieur est composé de trois chambres, d'une cuisine et de deux salles de bains.
À proximité : gares, écoles, crèche, tennis, bibliothèque, boulangerie, commerces, supermarché, bureau de poste et épicerie. Nationale N230 accessible à 1 km. Océan Atlantique à 56 km. Bordeaux à 11 km.
Cette maison de 4 pièces est proposée à l'achat pour 382 310 €.
Contactez David CAZAUBON (tél : O6-11-78-42-56) pour toute information sur la maison, sur les modalités de vente ou sur les démarches à suivre.
Référence : DC2368943_1

Les informations sur les risques auxquels ce bien est exposé sont disponibles sur le site Géorisques : www.georisques.gouv.fr


Prix
  • Prix total : 382 310 €
  • Prix du modèle de maison : 197 810 €
  • Prix du terrain : 184 500 €

Terrain
  • Surface : 427 m²

Maison
  • Surface : 100 m²
  • Pièces : 4
  • Chambres : 3
  • Garage : 1

  • Être rappelé par un conseiller
  • Demander plus d’infos
  • Demande d'information
Artigues-près-Bordeaux (33370)

Programmes à proximité

Les Allées Pelletan
Les Allées Pelletan
Cenon (33150)

Appartements de 2 pièces
Livraison 1er trimestre 2026

Latitude 270
Latitude 270
Floirac (33270)

Appartement de 3 pièces
Livraison 4ème trimestre 2025

Domaine Sansaumoine
Domaine Sansaumoine
Carbon-Blanc (33560)

Appartements de 2 à 4 pièces
Livraison 3ème trimestre 2027

ALBA
ALBA
Carbon-Blanc (33560)

Appartements de 1 à 3 pièces
Livraison 3ème trimestre 2028

Domaine Lafontaine
Domaine Lafontaine
Carbon-Blanc (33560)

Appartements de 2 à 3 pièces et maisons de 3 à 4 pièces
Livraison 4ème trimestre 2027

BORDEAUX BELVEDERE
BORDEAUX BELVEDERE
Bordeaux (33100)

Appartements de 2 à 5 pièces
Livraison 3ème trimestre 2028

Contacter BATISOFT pour recevoir plus d'informations

Remplissez le formulaire ci-dessous, vos informations sont transmises directement au constructeur qui vous contactera par email ou par téléphone afin de traiter votre demande. En savoir plus.

Voir tous nos programmes immobiliers neufs à Artigues-près-Bordeaux