Maison neuve, 97 m² - Arpajon (91290)

354 048 €
Arpajon (91290)

Proposée par BABEAU SEGUIN AGENCE DE MELUN -SEINE ET MARNE (77) – 4 pièces - 3 chambres - terrain 299 m²

Babeau Seguin Agence de Melun -Seine et Marne (77)
Babeau Seguin Agence de Melun -Seine et Marne (77)
  • Demande d'information
MAISON À CONSTRUIRE : ceci est une annonce d'une maison neuve à construire.
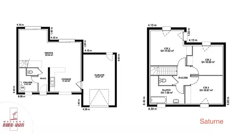
Sur ce terrain, nous vous proposons cette maison neuve : la Saturne de 97 m². Élégante maison contemporaine, la Saturne est disponible en trois versions de 97 m², 107 m² et 117 m², toutes avec garage accolé.
Faire le choix de la Saturne de 97 m², c’est faire un choix audacieux pour sa future maison. Résolument contemporaine avec son toit plat et ses nuances de textures alliant béton et bois, cette maison de 3 chambres offre en plus d’un style unique un confort inégalable !
La Saturne vous offre des prestations de grande qualité et un confort exemplaire grâce à son garage accolé et sa dalle étage en béton. Pour ne plus hésiter entre une maison en parpaing ou une maison bois, la Saturne vous offre le meilleur des deux grâce à son clin bois sur façade, une option très demandée par nos clients.
Cette maison neuve est basse consommation et conforme à la RE2020, garantissant ainsi des économies d’énergie et un respect de l’environnement.
Le constructeur Babeau-Seguin, reconnu pour offrir le meilleur rapport qualité/prix du marché, vous propose cette maison qui allie modernité, confort et performance énergétique. Ne manquez pas cette opportunité unique de devenir propriétaire d’une maison qui répond à toutes vos attentes et bien plus encore.
Référence : 92081

Les informations sur les risques auxquels ce bien est exposé sont disponibles sur le site Géorisques : www.georisques.gouv.fr


Prix
  • Prix total : 354 048 €
  • Prix du modèle de maison : 200 048 €
  • Prix du terrain : 154 000 €

Terrain
  • Surface : 299 m²

Maison
  • Surface : 97 m²
  • Pièces : 4
  • Chambres : 3

  • Être rappelé par un conseiller
  • Demander plus d’infos
  • Demande d'information
Arpajon (91290)

Maisons à proximité

TOPAZE
TOPAZE
Arpajon (91290)

Appartements de 3 à 4 pièces et maisons de 4 pièces
Livraison 1er trimestre 2025

Programmes à proximité

Essentiel
Essentiel
Arpajon (91290)

Appartements de 2 à 4 pièces

BIOSPHERE
BIOSPHERE
Arpajon (91290)

Appartements de 2 à 3 pièces
Livraison 1er trimestre 2027

TOPAZE
TOPAZE
Arpajon (91290)

Appartements de 3 à 4 pièces et maisons de 4 pièces
Livraison 1er trimestre 2025

LE PETIT BOIS
LE PETIT BOIS
La Norville (91290)

Appartements de 1 à 3 pièces et maisons de 4 à 5 pièces
Livraison 4ème trimestre 2026

Eclor
Eclor
Brétigny-sur-Orge (91220)

Appartements de 2 à 6 pièces
Livraison 4ème trimestre 2027

EURYDICE
EURYDICE
Brétigny-sur-Orge (91220)

Appartements de 2 à 4 pièces
Livraison 1er trimestre 2026

Contacter BABEAU SEGUIN AGENCE DE MELUN -SEINE ET MARNE (77) pour recevoir plus d'informations

Remplissez le formulaire ci-dessous, vos informations sont transmises directement au constructeur qui vous contactera par email ou par téléphone afin de traiter votre demande. En savoir plus.

Voir tous nos programmes immobiliers neufs à Arpajon