Maison neuve, 110 m² - Antony (92160)

659 411 €
Antony (92160)

Proposée par MAISONS BALENCY – 5 pièces - 4 chambres - terrain 457 m²

MAISONS BALENCY
MAISONS BALENCY
  • Demande d'information
MAISON À CONSTRUIRE : ceci est une annonce d'une maison neuve à construire.
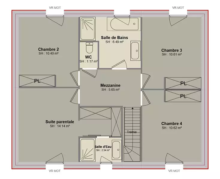
VENTE : maison de 5 pièces (110 m² + Garage ) 4 chambres dont 1 suite parentale à Antony
IDÉALEMENT SITUÉE - MAISON 5 PIÈCES NEUVE
Proche du RER B (10 min de Paris) et a 2 pas de la future ligne 18 dans le quartier d'Antonypole, nous vous présentons en vente, idéalement située dans Antony (92160), cette maison de 5 pièces de 110 m² + GARAGE, 4 chambres dont une suite parentale.
Cette maison compte 2 niveaux. Elle propose quatre chambres, une cuisine et deux salles de bains. La maison est neuve.
Le terrain du bien s'étend sur 457 m².
La construction sera réalisée sur une limite, permettant un passage sur le coté, le terrain n'a pas de vis a vis
Cette maison se trouve dans un quartier attractif (Antonypole) Il y a des écoles de tous niveaux (de la maternelle au lycée) à moins de 10 minutes à pied, tout comme huit structures d'accueil pour la petite enfance. Côté transports, on trouve la ligne de RER B (Antony) à quelques pas du bien. Il y a une bibliothèque, un bassin de natation, des commerces, des boulangeries, trois supermarchés, des boucheries-charcuteries et une poissonnerie à proximité.
Elle est à vendre pour la somme de 659 411 €. hors frais de notaire ( prévoir env 35000€)
.
Référence : JJP2290217_2
Terrain proposé par un partenaire foncier selon disponibilités et autorisation de publicité au prix de 420 000 €. Hors droit d'enregistrement et frais de notaire. Maison proposée, avec un contrat de construction de maison individuelle, dans le cadre de la loi du 19/12/1990, au prix de 239 411 € (Hors branchements et raccordements, papiers peints, peintures, revêtement de sol dans les chambres, qui sont chiffrés dans les travaux qui restent à charge du client. Tarif modifiable sans préavis). Étiquette énergie : A. Différents modèles disponibles pour ce terrain. Assurances et garanties du constructeur comprises (RC professionnelle, décennale, dommage ouvrage).

Les informations sur les risques auxquels ce bien est exposé sont disponibles sur le site Géorisques : www.georisques.gouv.fr


Prix
  • Prix total : 659 411 €
  • Prix du modèle de maison : 239 411 €
  • Prix du terrain : 420 000 €

Terrain
  • Surface : 457 m²

Maison
  • Surface : 110 m²
  • Pièces : 5
  • Chambres : 4
  • Garage : 1

  • Être rappelé par un conseiller
  • Demander plus d’infos
  • Demande d'information
Antony (92160)

Maisons à proximité

Les Cottages Léonard de Vinci
Les Cottages Léonard de Vinci
Antony (92160)

Appartements de 4 pièces et maisons de 5 pièces
Livraison 1er trimestre 2026

Villa des Muses - Place et Villas
Villa des Muses - Place et Villas
Antony (92160)

Maison de 5 pièces
Livraison 4ème trimestre 2024

Programmes à proximité

Villa Molière
Villa Molière
Antony (92160)

Appartements de 2 à 5 pièces
Livraison 2ème trimestre 2028

Carré Arago
Carré Arago
Antony (92160)

Appartements de 2 à 4 pièces
Livraison 2ème trimestre 2028

Les Cottages Léonard de Vinci
Les Cottages Léonard de Vinci
Antony (92160)

Appartements de 4 pièces et maisons de 5 pièces
Livraison 1er trimestre 2026

Jardin des Lumières
Jardin des Lumières
Antony (92160)

Appartements de 3 à 4 pièces
Livraison 4ème trimestre 2024

Avenue François Arago - BRS
Avenue François Arago - BRS
Antony (92160)

Appartements de 2 à 4 pièces
Livraison 2ème trimestre 2028

Les Jardins Michalon
Les Jardins Michalon
Antony (92160)

Appartements de 2 à 4 pièces
Livraison 1er trimestre 2028

Contacter MAISONS BALENCY pour recevoir plus d'informations

Remplissez le formulaire ci-dessous, vos informations sont transmises directement au constructeur qui vous contactera par email ou par téléphone afin de traiter votre demande. En savoir plus.

Voir tous nos programmes immobiliers neufs à Antony