Maison neuve, 90 m² - Angles (85750)
270 000 €
Angles (85750)
Proposée par LMP CONSTRUCTEUR – 5 pièces - 3 chambres - terrain 517 m²
|
|
| LMP CONSTRUCTEUR |
| (33 avis) |
- Demande d'information
- Prendre rendez-vous
MAISON À CONSTRUIRE : ceci est une annonce d'une maison neuve à construire.
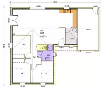
Maison de 5 pièces (90 m²) à vendre à Angles
MAISON 5 PIÈCES NEUVE -
À 8 km de l'océan Atlantique et à quelques kilomètres de La Rochelle, nous sommes heureux de vous proposer cette maison de 5 pièces de plain-pied de 90 m² à Angles (85750).
Son intérieur inclut trois chambres, une cuisine , une salle de bains.et un garage Cette maison est neuve.
Le terrain du bien s'étend sur 517 m².
Il y a l'École Primaire Privée Sainte Thérèse et l'École Primaire Publique du Dauphin Bleu à moins de 10 minutes à pied. On trouve un tennis, trois commerces, trois boulangeries, un supermarché, une boucherie-charcuterie et un bureau de poste dans les environs. Enfin, le marché Rue nationale anime les environs.
Elle est à vendre pour la somme de 270 000 €.Annonce proposée par un Agent Commercial Partenaire.
Référence : JG2271730_3
Terrain proposé par un partenaire foncier selon disponibilités et autorisation de publicité au prix de 90 000 €. Hors droit d'enregistrement et frais de notaire. Maison proposée, avec un contrat de construction de maison individuelle, dans le cadre de la loi du 19/12/1990, au prix de 180 000 € (Hors branchements et raccordements, papiers peints, peintures, revêtement de sol dans les chambres, qui sont chiffrés dans les travaux qui restent à charge du client. Tarif modifiable sans préavis). Étiquette énergie : A. Différents modèles disponibles pour ce terrain. Assurances et garanties du constructeur comprises (RC professionnelle, décennale, dommage ouvrage).
Les informations sur les risques auxquels ce bien est exposé sont disponibles sur le site Géorisques : www.georisques.gouv.fr
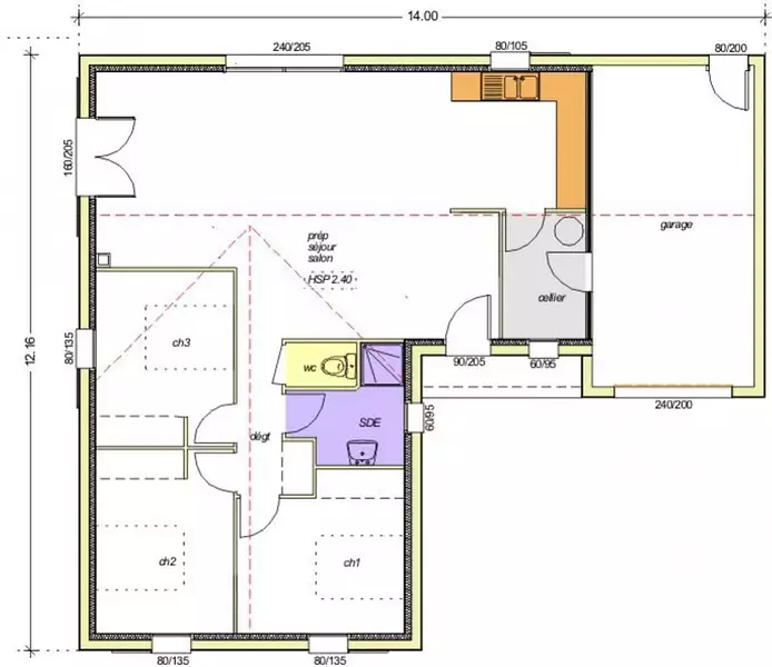
MAISON 5 PIÈCES NEUVE -
À 8 km de l'océan Atlantique et à quelques kilomètres de La Rochelle, nous sommes heureux de vous proposer cette maison de 5 pièces de plain-pied de 90 m² à Angles (85750).
Son intérieur inclut trois chambres, une cuisine , une salle de bains.et un garage Cette maison est neuve.
Le terrain du bien s'étend sur 517 m².
Il y a l'École Primaire Privée Sainte Thérèse et l'École Primaire Publique du Dauphin Bleu à moins de 10 minutes à pied. On trouve un tennis, trois commerces, trois boulangeries, un supermarché, une boucherie-charcuterie et un bureau de poste dans les environs. Enfin, le marché Rue nationale anime les environs.
Elle est à vendre pour la somme de 270 000 €.Annonce proposée par un Agent Commercial Partenaire.
Référence : JG2271730_3
Terrain proposé par un partenaire foncier selon disponibilités et autorisation de publicité au prix de 90 000 €. Hors droit d'enregistrement et frais de notaire. Maison proposée, avec un contrat de construction de maison individuelle, dans le cadre de la loi du 19/12/1990, au prix de 180 000 € (Hors branchements et raccordements, papiers peints, peintures, revêtement de sol dans les chambres, qui sont chiffrés dans les travaux qui restent à charge du client. Tarif modifiable sans préavis). Étiquette énergie : A. Différents modèles disponibles pour ce terrain. Assurances et garanties du constructeur comprises (RC professionnelle, décennale, dommage ouvrage).
Les informations sur les risques auxquels ce bien est exposé sont disponibles sur le site Géorisques : www.georisques.gouv.fr
- Prix
-
- Prix total : 270 000 €
- Prix du modèle de maison : 180 000 €
- Prix du terrain : 90 000 €
- Terrain
-
- Surface : 517 m²
- Maison
-
- Surface : 90 m²
- Pièces : 5
- Chambres : 3
- Garage : 1
- Être rappelé par un conseiller
- Demander plus d’infos
- Demande d'information
Angles (85750)
Maisons à proximité
Maison neuve, 49 m²
Angles (85750)
Angles (85750)
Maison de 2 pièces
Maison neuve, 119 m²
Angles (85750)
Angles (85750)
Maison de 8 pièces
Maison neuve, 99 m²
Angles (85750)
Angles (85750)
Maison de 5 pièces
Maison neuve, 85 m²
Angles (85750)
Angles (85750)
Maison de 4 pièces
Maison neuve, 77 m²
Angles (85750)
Angles (85750)
Maison de 3 pièces
Maison neuve, 85 m²
Angles (85750)
Angles (85750)
Maison de 4 pièces
Programmes à proximité
Les Terrasses de la Grière
La Tranche-sur-Mer (85360)
La Tranche-sur-Mer (85360)
Appartements de 2 à 3 pièces
Livraison 2ème trimestre 2027
LES TERRASSES DU PAYRÉ
Talmont-Saint-Hilaire (85440)
Talmont-Saint-Hilaire (85440)
Appartements de 1 à 4 pièces
Livraison 3ème trimestre 2027
Contacter LMP CONSTRUCTEUR pour recevoir plus d'informations
Remplissez le formulaire ci-dessous, vos informations sont transmises directement au constructeur qui vous contactera par email ou par téléphone afin de traiter votre demande. En savoir plus.