Maison neuve, 85,58 m² - Amiens (80000)

397 690 €
Amiens (80000)

Proposée par RÉSIDENCES PICARDES SALOUEL – 5 pièces - 4 chambres - terrain 414 m²

Résidences Picardes Salouel
Résidences Picardes Salouel
  • Demande d'information
MAISON À CONSTRUIRE : ceci est une annonce d'une maison neuve à construire.
Le groupe BDL vous propose un projet de construction d’un projet personnalisée compris aménagement paysagé.
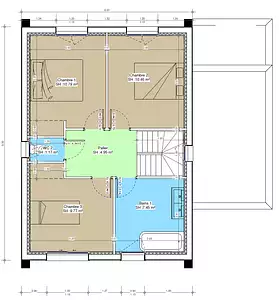
Maison moderne de 90M² en R+1 situé sur la commune d’Amiens, toutes commodités (commerces, écoles, etc …).
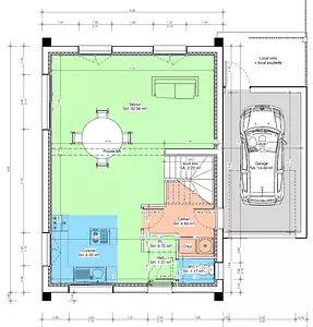
Ce pavillon neuf au normes RE2020, se compose d’un bel espace de vie ouvert, 3 chambres, 1 salle de bains, WC séparé, local technique et garage.
Maison offrant de belles prestations avec son élévation en bloc terre cuite, son isolation de type Hybris, ses menuiseries avec volets roulants électriques centralisés, chauffage par pompe à chaleur, carrelages pour les pièces de vie en 45X45, normes RE 2020 et test d’étanchéité.
Terrain de 414m², clôture, Enrobé, Plantation compris.
Renseignements par téléphone ou par mail pour votre projet de construction de maison individuelle.
Autres projets disponibles sur d’autres localités, plans sur-mesure en fonction de vos besoins et de votre budget.
Terrain proposé par un partenaire foncier selon disponibilité.
Pavillon proposé avec contrat de construction de maison individuelle, dans le cadre de la loi du 19/12/1990.
Branchements et raccordements inclus.
Hors papiers peints, peintures, revêtements de sol pour les chambres, qui sont chiffrés dans les travaux restant à la charge du client.
Différents modèles disponibles pour ce terrain.
Assurances et garanties du constructeur comprises (RC professionnelle, décennale, dommage ouvrage, garantie de livraison).
Restant à votre disposition.
Référence : SALOUEL/GARAGE ACCOLE/RENANCOURT

Les informations sur les risques auxquels ce bien est exposé sont disponibles sur le site Géorisques : www.georisques.gouv.fr


Prix
  • Prix total : 397 690 €
  • Prix du modèle de maison : 288 830 €
  • Prix du terrain : 108 860 €

Terrain
  • Surface : 414 m²

Maison
  • Surface : 85,58 m²
  • Pièces : 5
  • Chambres : 4
  • Salle de bains : 1
  • Garage : 1
  • Surface garage : 15 m²

  • Être rappelé par un conseiller
  • Demander plus d’infos
  • Demande d'information
Amiens (80000)

Maisons à proximité

Tempo Nature
Tempo Nature
Amiens (80000)

Appartements de 4 pièces et maisons de 4 pièces
Livraison 1er trimestre 2027

Programmes à proximité

Tempo Nature
Tempo Nature
Amiens (80000)

Appartements de 4 pièces et maisons de 4 pièces
Livraison 1er trimestre 2027

FLOW
FLOW
Amiens (80000)

Appartements de 1 à 5 pièces
Livraison 4ème trimestre 2027

LA PLUME DE SAMARA
LA PLUME DE SAMARA
Amiens (80000)

Appartements de 2 à 3 pièces
Livraison 1er trimestre 2025

ALTER EGO
ALTER EGO
Amiens (80000)

Appartements de 1 à 3 pièces
Livraison 4ème trimestre 2026

Résidence Hortea
Résidence Hortea
Amiens (80000)

Appartements de 1 à 3 pièces

Prochainement à Amiens
Prochainement à Amiens
Amiens (80000)

Appartements de 1 à 5 pièces

Contacter RÉSIDENCES PICARDES SALOUEL pour recevoir plus d'informations

Remplissez le formulaire ci-dessous, vos informations sont transmises directement au constructeur qui vous contactera par email ou par téléphone afin de traiter votre demande. En savoir plus.

Voir tous nos programmes immobiliers neufs à Amiens