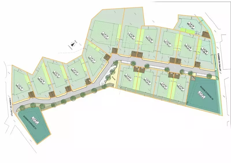
Terrain à bâtir, 499 m² - Lirac (30126)
1 193 000 €
Lirac (30126)
Proposée par MAISONS FRANCE CONFORT
|
|
| MAISONS FRANCE CONFORT |
| (153 avis) |
- Demande d'information
- Prendre rendez-vous
TERRAIN À CONSTRUIRE : Ceci est une annonce d'un terrain constructible
L'agence Maisons France Confort du Pontet vous propose, en accord avec son partenaire foncier et en exclusivité ce joli terrain de 499 m² sur la commune de LIRAC .
SAZE se situe à 10 minutes d'Avignon et à 15 minutes de l' accès a l autoroute a 15mn .
Le terrain est exposé plein sud, il est viabilités et se situe dans une zone très calme tout proche du centre ville.
Vous trouverez dans les alentours un hôpital, un centre commercial, un pôle santé, une école, collège, arrêt de bus etc...
Pour plus d'informations, n'hésitez à contacter Lionel Montagne de l'agence de Maisons France Confort Le Pontet au O64897O812
Référence : LM2316709
Terrain proposé par un partenaire foncier selon disponibilités et autorisation de publicité et sélectionné par le constructeur en vue de construire une maison neuve avec un contrat de construction de maison individuelle, dans le cadre de la loi du 10/12/1990. Assurances et garanties du constructeur (RC professionnelle, décennale, dommage ouvrage, garantie de remboursement de l'acompte, livraison à prix et délai convenu) : https://www.maisons-france-confort.fr/mentions-legales/. HEXAOM Services est enregistré auprès de l'ORIAS en tant que Courtier en financement, Niveau 1, sous le numéro 14001345.
Les informations sur les risques auxquels ce bien est exposé sont disponibles sur le site Géorisques : www.georisques.gouv.fr
SAZE se situe à 10 minutes d'Avignon et à 15 minutes de l' accès a l autoroute a 15mn .
Le terrain est exposé plein sud, il est viabilités et se situe dans une zone très calme tout proche du centre ville.
Vous trouverez dans les alentours un hôpital, un centre commercial, un pôle santé, une école, collège, arrêt de bus etc...
Pour plus d'informations, n'hésitez à contacter Lionel Montagne de l'agence de Maisons France Confort Le Pontet au O64897O812
Référence : LM2316709
Terrain proposé par un partenaire foncier selon disponibilités et autorisation de publicité et sélectionné par le constructeur en vue de construire une maison neuve avec un contrat de construction de maison individuelle, dans le cadre de la loi du 10/12/1990. Assurances et garanties du constructeur (RC professionnelle, décennale, dommage ouvrage, garantie de remboursement de l'acompte, livraison à prix et délai convenu) : https://www.maisons-france-confort.fr/mentions-legales/. HEXAOM Services est enregistré auprès de l'ORIAS en tant que Courtier en financement, Niveau 1, sous le numéro 14001345.
Les informations sur les risques auxquels ce bien est exposé sont disponibles sur le site Géorisques : www.georisques.gouv.fr
- Prix
-
- Prix total : 1 193 000 €
- Terrain
-
- Surface : 499 m²
- Constructible : Oui
- Être rappelé par un conseiller
- Demander plus d’infos
- Demande d'information
Lirac (30126)
Terrains à proximité
Terrain à bâtir, 499 m²
Lirac
Terrain
Terrain à bâtir, 499 m²
Lirac
Terrain
Terrain à bâtir, 1 000 m²
Lirac
Terrain
Terrain à bâtir, 401 m²
Lirac
Terrain
Contacter MAISONS FRANCE CONFORT pour recevoir plus d'informations
Remplissez le formulaire ci-dessous, vos informations sont transmises directement au constructeur qui vous contactera par email ou par téléphone afin de traiter votre demande. En savoir plus.