Maison neuve, 95 m² - Vivoin (72170)
191 479 €
Vivoin (72170)
Proposée par MAISONS CONCEPT AGENCE DU MANS – 4 pièces - 3 chambres - terrain 400 m²
|
|
| Maisons Concept AGENCE DU MANS |
- Demande d'information
- Prendre rendez-vous
MAISON À CONSTRUIRE : ceci est une annonce d'une maison neuve à construire.
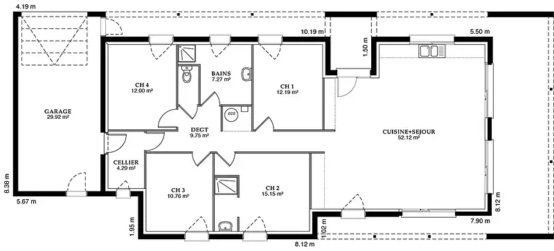
Nous vous proposons cette maison neuve, baptisée Linea, un modèle qui incarne la modernité, le charme et le raffinement. Conçue pour répondre aux attentes des plus exigeants, Linea offre une surface habitable de 95 m², intelligemment répartie entre 3 chambres et une pièce de vie spacieuse, promettant confort et bien-être au quotidien.
Ce modèle se distingue par son architecture audacieuse, avec un voile de béton qui lui confère une allure à la fois moderne et intemporelle, ainsi qu'un garage intégré pour plus de praticité. La structure linéaire de Linea, pensée pour optimiser chaque espace, s'accompagne d'une distribution des pièces favorisant une basse consommation énergétique. Cette maison est donc parfaitement conforme à la norme RE2020, garantissant une performance énergétique de premier plan pour un habitat respectueux de l'environnement.
Les options les plus plébiscitées par nos clients, telles que des solutions d'isolation avancées et des systèmes de chauffage performants, sont disponibles pour personnaliser votre maison selon vos besoins et vos envies. Linea se veut être un havre de paix où modernité rime avec écologie.
Laissez-vous séduire par le cachet unique de Linea, où chaque détail, des portiques à la pergola, en passant par les voiles architecturaux, a été pensé pour offrir un cadre de vie exceptionnel. Cette maison est une invitation à profiter d'un confort quotidien, tout en faisant un choix responsable pour l'avenir de notre planète.
Choisir Linea, c'est opter pour une maison neuve basse consommation, alliant esthétique et performances énergétiques, pour une qualité de vie inégalée. Ne manquez pas cette opportunité de construire la maison de vos rêves, conforme aux dernières normes environnementales. Linea, une maison où il fait bon vivre, aujourd'hui et demain.
Référence : 52849
Les informations sur les risques auxquels ce bien est exposé sont disponibles sur le site Géorisques : www.georisques.gouv.fr
Ce modèle se distingue par son architecture audacieuse, avec un voile de béton qui lui confère une allure à la fois moderne et intemporelle, ainsi qu'un garage intégré pour plus de praticité. La structure linéaire de Linea, pensée pour optimiser chaque espace, s'accompagne d'une distribution des pièces favorisant une basse consommation énergétique. Cette maison est donc parfaitement conforme à la norme RE2020, garantissant une performance énergétique de premier plan pour un habitat respectueux de l'environnement.
Les options les plus plébiscitées par nos clients, telles que des solutions d'isolation avancées et des systèmes de chauffage performants, sont disponibles pour personnaliser votre maison selon vos besoins et vos envies. Linea se veut être un havre de paix où modernité rime avec écologie.
Laissez-vous séduire par le cachet unique de Linea, où chaque détail, des portiques à la pergola, en passant par les voiles architecturaux, a été pensé pour offrir un cadre de vie exceptionnel. Cette maison est une invitation à profiter d'un confort quotidien, tout en faisant un choix responsable pour l'avenir de notre planète.
Choisir Linea, c'est opter pour une maison neuve basse consommation, alliant esthétique et performances énergétiques, pour une qualité de vie inégalée. Ne manquez pas cette opportunité de construire la maison de vos rêves, conforme aux dernières normes environnementales. Linea, une maison où il fait bon vivre, aujourd'hui et demain.
Référence : 52849
Les informations sur les risques auxquels ce bien est exposé sont disponibles sur le site Géorisques : www.georisques.gouv.fr
- Prix
-
- Prix total : 191 479 €
- Prix du modèle de maison : 179 479 €
- Prix du terrain : 12 000 €
- Terrain
-
- Surface : 400 m²
- Maison
-
- Surface : 95 m²
- Pièces : 4
- Chambres : 3
- Être rappelé par un conseiller
- Demander plus d’infos
- Demande d'information
Vivoin (72170)
Maisons à proximité
Maison neuve, 94 m²
Vivoin (72170)
Vivoin (72170)
Maison de 4 pièces
Maison neuve, 68 m²
Vivoin (72170)
Vivoin (72170)
Maison de 3 pièces
Maison neuve, 115 m²
Vivoin (72170)
Vivoin (72170)
Maison de 5 pièces
Maison neuve, 97 m²
Vivoin (72170)
Vivoin (72170)
Maison de 4 pièces
Maison neuve, 68 m²
Vivoin (72170)
Vivoin (72170)
Maison de 3 pièces
Maison neuve, 88 m²
Vivoin (72170)
Vivoin (72170)
Maison de 4 pièces
Programmes à proximité
Néméa Le Mans Université
Le Mans (72000)
Le Mans (72000)
Appartements de 1 pièce
Livraison 2ème trimestre 2027
HARMONIE
Le Mans (72000)
Le Mans (72000)
Appartement de 4 pièces
Livraison 2ème trimestre 2026
Contacter MAISONS CONCEPT AGENCE DU MANS pour recevoir plus d'informations
Remplissez le formulaire ci-dessous, vos informations sont transmises directement au constructeur qui vous contactera par email ou par téléphone afin de traiter votre demande. En savoir plus.