Maison neuve, 113 m² - Vinneuf (89140)
245 873 €
Vinneuf (89140)
Proposée par BABEAU SEGUIN AGENCE DE SENS (89100) – YONNE – CON – 4 pièces - 3 chambres - terrain 850 m²
|
|
| Babeau Seguin Agence de Sens (89100) – Yonne – Con |
- Demande d'information
- Prendre rendez-vous
MAISON À CONSTRUIRE : ceci est une annonce d'une maison neuve à construire.
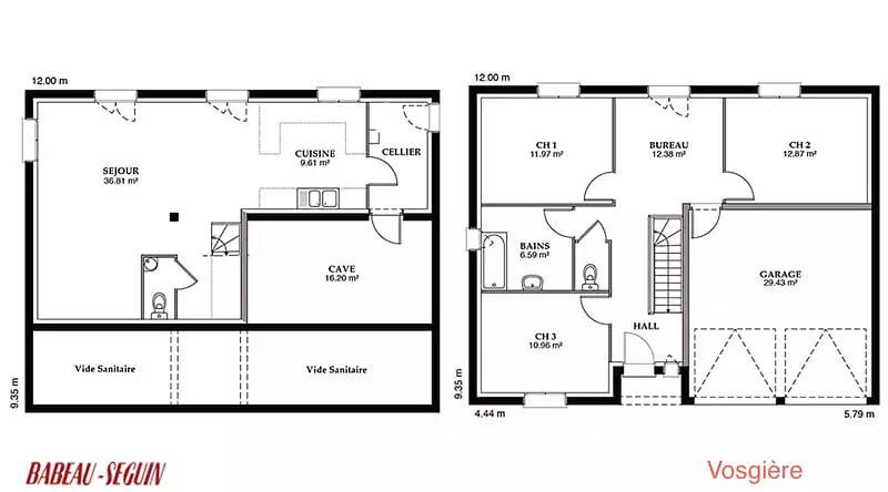
Sur ce terrain, nous vous proposons cette maison neuve, la Vosgière, spécialement conçue pour les terrains escarpés. Avec une surface de 113 m², cette maison se joue des niveaux et bouleverse la distribution classique des pièces d’une maison à étage.
Son plan à demi-niveau vous propose une maison neuve originale et modulable avec une surface insoupçonnable. Parfaitement adaptée aux familles, ce modèle est équipé de 3 chambres et de 4 pièces, offrant ainsi un espace de vie confortable et fonctionnel.
Les caractéristiques principales de la Vosgière incluent une dalle étage en béton et une charpente traditionnelle, garantissant robustesse et durabilité. De plus, cette maison neuve est basse consommation et conforme à la RE2020, vous assurant des économies d'énergie et un confort thermique optimal.
Vous serez forcément séduit par cette maison exceptionnelle, moderne et à la fois atypique. Le constructeur Babeau-Seguin, reconnu pour offrir le meilleur rapport qualité/prix du marché, vous accompagne dans la réalisation de ce projet unique.
Ne manquez pas cette opportunité de vivre dans une maison qui allie originalité, performance énergétique et qualité de construction. Contactez-nous dès maintenant pour plus d'informations et pour visiter ce terrain exceptionnel.
Référence : 65661
Les informations sur les risques auxquels ce bien est exposé sont disponibles sur le site Géorisques : www.georisques.gouv.fr
Son plan à demi-niveau vous propose une maison neuve originale et modulable avec une surface insoupçonnable. Parfaitement adaptée aux familles, ce modèle est équipé de 3 chambres et de 4 pièces, offrant ainsi un espace de vie confortable et fonctionnel.
Les caractéristiques principales de la Vosgière incluent une dalle étage en béton et une charpente traditionnelle, garantissant robustesse et durabilité. De plus, cette maison neuve est basse consommation et conforme à la RE2020, vous assurant des économies d'énergie et un confort thermique optimal.
Vous serez forcément séduit par cette maison exceptionnelle, moderne et à la fois atypique. Le constructeur Babeau-Seguin, reconnu pour offrir le meilleur rapport qualité/prix du marché, vous accompagne dans la réalisation de ce projet unique.
Ne manquez pas cette opportunité de vivre dans une maison qui allie originalité, performance énergétique et qualité de construction. Contactez-nous dès maintenant pour plus d'informations et pour visiter ce terrain exceptionnel.
Référence : 65661
Les informations sur les risques auxquels ce bien est exposé sont disponibles sur le site Géorisques : www.georisques.gouv.fr
- Prix
-
- Prix total : 245 873 €
- Prix du modèle de maison : 204 873 €
- Prix du terrain : 41 000 €
- Terrain
-
- Surface : 850 m²
- Maison
-
- Surface : 113 m²
- Pièces : 4
- Chambres : 3
- Être rappelé par un conseiller
- Demander plus d’infos
- Demande d'information
Vinneuf (89140)
Maisons à proximité
Maison neuve, 110 m²
Vinneuf (89140)
Vinneuf (89140)
Maison de 5 pièces
Maison neuve, 97 m²
Vinneuf (89140)
Vinneuf (89140)
Maison de 5 pièces
Maison neuve, 49 m²
Vinneuf (89140)
Vinneuf (89140)
Maison de 3 pièces
Maison neuve, 125 m²
Vinneuf (89140)
Vinneuf (89140)
Maison de 6 pièces
Maison neuve, 64 m²
Vinneuf (89140)
Vinneuf (89140)
Maison de 3 pièces
Maison neuve, 68 m²
Vinneuf (89140)
Vinneuf (89140)
Maison de 4 pièces
Programmes à proximité
LES JARDINS DE LONGUEVILLE
Longueville (77650)
Longueville (77650)
Appartements de 4 pièces et maisons de 4 pièces
Livraison 3ème trimestre 2027
BIENTOT A NANGIS
Nangis (77370)
Nangis (77370)
Appartements de 2 à 4 pièces
Livraison 2ème trimestre 2028
Contacter BABEAU SEGUIN AGENCE DE SENS (89100) – YONNE – CON pour recevoir plus d'informations
Remplissez le formulaire ci-dessous, vos informations sont transmises directement au constructeur qui vous contactera par email ou par téléphone afin de traiter votre demande. En savoir plus.