Maison neuve, 79 m² - Villeneuve-de-Marc (38440)
256 000 €
Villeneuve-de-Marc (38440)
Proposée par MAISONS PUNCH SAINT PRIEST – 4 pièces - 3 chambres - terrain 539 m²
|
|
| Maisons PUNCH Saint Priest |
| (57 avis) |
- Demande d'information
- Prendre rendez-vous
MAISON À CONSTRUIRE : ceci est une annonce d'une maison neuve à construire.
OFFRE EXCEPTIONNELLE : 10m² OFFERT + PACK DECO OU PACK CUISINE AU CHOIX.
Votre Maison Plain-Pied de 85 m² Habitables entièrement personnalisable !
Maison Punch vous propose une magnifique maison de plain-pied de 85 m² sur la commune de Villeneuve-de-Marc pensée pour le confort et la modernité.
Sur une parcelle de 539m² entièrement viabilisé, Nous vous proposons une construction neuve entièrement modulable à vos goûts.
Caractéristiques :
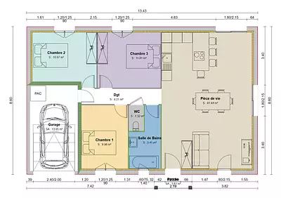
• Superficie totale : 85 m² habitables
• Pièce de vie spacieuse de 42 m² avec une cuisine ouverte, pour profiter d’un espace lumineux et convivial
• Espace nuit comprenant :
o3 chambres confortables : 2 chambres de 10,50 m² ainsi qu’une chambre plus spacieuse de 11,50 m².
• Salle de bain avec baignoire ou douche, selon vos envies, avec WC séparer.
• Garage de 15 m² attenant, idéal pour protéger votre véhicule ou pour un espace de rangement supplémentaire.
• Maison conforme à la RE 2020.
Prestations de qualités comprenant de nombreuse options au bon vouloir des futurs acquéreurs.
CONSTRUCTION, TERRAIN ET VRD INCLUS DANS LE PRIX.
Venez découvrir cette maison qui allie praticité et esthétisme. Un projet de vie pour toute la famille dans un cadre où chaque mètre carré a été optimisé pour votre confort.
Mr Romain CASINI
06 84 82 88 41
Chargé de Projets
Maisons Punch
Référence : 15321 Casini Romain
Terrain proposé et vendu par notre partenaire foncier selon disponibilités, le constructeur n’étant pas mandaté pour réaliser la vente du terrain. Prix terrain inclus : 105 500 € Frais de notaire non inclus : € Prix maison inclus : 150 500 € VRD non inclus : € Hors aménagements extérieurs (extensions, terrasse, piscine etc), papiers peints, peintures, moquettes dans les chambres (tarif en vigueur au 20 mai 2025, modifiable sans préavis, prix variables suivant les prestations souhaitées). Hors frais d’hypothèque. Différents modèles disponibles pour chaque terrain. Assurance RC professionnelle/décennale/dommage ouvrage groupe Aviva. Garantie de remboursement de l'acompte/livraison à prix et délai convenu CGI. Partenaire financier : à préciser Le numéro de TVA intracommunautaire : FR 14 498 627 272 00012 Contact : contact@maisons-punch.fr
Les informations sur les risques auxquels ce bien est exposé sont disponibles sur le site Géorisques : www.georisques.gouv.fr
Votre Maison Plain-Pied de 85 m² Habitables entièrement personnalisable !
Maison Punch vous propose une magnifique maison de plain-pied de 85 m² sur la commune de Villeneuve-de-Marc pensée pour le confort et la modernité.
Sur une parcelle de 539m² entièrement viabilisé, Nous vous proposons une construction neuve entièrement modulable à vos goûts.
Caractéristiques :
• Superficie totale : 85 m² habitables
• Pièce de vie spacieuse de 42 m² avec une cuisine ouverte, pour profiter d’un espace lumineux et convivial
• Espace nuit comprenant :
o3 chambres confortables : 2 chambres de 10,50 m² ainsi qu’une chambre plus spacieuse de 11,50 m².
• Salle de bain avec baignoire ou douche, selon vos envies, avec WC séparer.
• Garage de 15 m² attenant, idéal pour protéger votre véhicule ou pour un espace de rangement supplémentaire.
• Maison conforme à la RE 2020.
Prestations de qualités comprenant de nombreuse options au bon vouloir des futurs acquéreurs.
CONSTRUCTION, TERRAIN ET VRD INCLUS DANS LE PRIX.
Venez découvrir cette maison qui allie praticité et esthétisme. Un projet de vie pour toute la famille dans un cadre où chaque mètre carré a été optimisé pour votre confort.
Mr Romain CASINI
06 84 82 88 41
Chargé de Projets
Maisons Punch
Référence : 15321 Casini Romain
Terrain proposé et vendu par notre partenaire foncier selon disponibilités, le constructeur n’étant pas mandaté pour réaliser la vente du terrain. Prix terrain inclus : 105 500 € Frais de notaire non inclus : € Prix maison inclus : 150 500 € VRD non inclus : € Hors aménagements extérieurs (extensions, terrasse, piscine etc), papiers peints, peintures, moquettes dans les chambres (tarif en vigueur au 20 mai 2025, modifiable sans préavis, prix variables suivant les prestations souhaitées). Hors frais d’hypothèque. Différents modèles disponibles pour chaque terrain. Assurance RC professionnelle/décennale/dommage ouvrage groupe Aviva. Garantie de remboursement de l'acompte/livraison à prix et délai convenu CGI. Partenaire financier : à préciser Le numéro de TVA intracommunautaire : FR 14 498 627 272 00012 Contact : contact@maisons-punch.fr
Les informations sur les risques auxquels ce bien est exposé sont disponibles sur le site Géorisques : www.georisques.gouv.fr
- Prix
-
- Prix total : 256 000 €
- Prix du modèle de maison : 150 500 €
- Prix du terrain : 105 500 €
- Terrain
-
- Surface : 539 m²
- Maison
-
- Surface : 79 m²
- Pièces : 4
- Chambres : 3
- Salle de bains : 1
- Garage : 1
- Surface garage : 15 m²
- Être rappelé par un conseiller
- Demander plus d’infos
- Demande d'information
Villeneuve-de-Marc (38440)
Maisons à proximité
Maison neuve, 90 m²
Villeneuve-de-Marc (38440)
Villeneuve-de-Marc (38440)
Maison de 5 pièces
Maison neuve, 90 m²
Villeneuve-de-Marc (38440)
Villeneuve-de-Marc (38440)
Maison de 4 pièces
Maison neuve, 85 m²
Villeneuve-de-Marc (38440)
Villeneuve-de-Marc (38440)
Maison de 5 pièces
Maison neuve, 83 m²
Villeneuve-de-Marc (38440)
Villeneuve-de-Marc (38440)
Maison de 4 pièces
Maison neuve, 89 m²
Villeneuve-de-Marc (38440)
Villeneuve-de-Marc (38440)
Maison de 4 pièces
Maison neuve, 94 m²
Villeneuve-de-Marc (38440)
Villeneuve-de-Marc (38440)
Maison de 4 pièces
Programmes à proximité
LE CLOS DU PARC
Moidieu-Détourbe (38440)
Moidieu-Détourbe (38440)
Appartements de 4 pièces
Le Carré Boisé
Vaulx-Milieu (38090)
Vaulx-Milieu (38090)
Appartements de 4 pièces
JARDINS DES SENS
Serpaize (38200)
Serpaize (38200)
Appartements de 2 à 4 pièces
LES JARDINS DE MEYRIE
Meyrié (38300)
Meyrié (38300)
Appartements de 3 à 4 pièces
FLORÉLIA
La Verpillière (38290)
La Verpillière (38290)
Appartements de 3 pièces
L'Archipel
La Verpillière (38290)
La Verpillière (38290)
Appartements de 2 à 4 pièces
Livraison 3ème trimestre 2026
Contacter MAISONS PUNCH SAINT PRIEST pour recevoir plus d'informations
Remplissez le formulaire ci-dessous, vos informations sont transmises directement au constructeur qui vous contactera par email ou par téléphone afin de traiter votre demande. En savoir plus.
Voir tous nos programmes immobiliers neufs à Villeneuve-de-Marc