Maison neuve, 90 m² - Villeneuve (04180)
260 000 €
Villeneuve (04180)
Proposée par MAISONS PUNCH VILLEFRANCHE – 4 pièces - 3 chambres - terrain 304 m²
|
|
| Maisons Punch Villefranche |
| (837 avis) |
- Demande d'information
- Prendre rendez-vous
MAISON À CONSTRUIRE : ceci est une annonce d'une maison neuve à construire.
Votre première maison clé en main à Villeneuve – idéale jeune famille
Vous rêvez de devenir propriétaire sans compromis entre budget, confort et qualité de vie ?
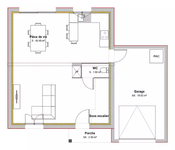
Cette maison neuve à étage de 85 m², implantée sur un terrain de 304 m², est pensée pour répondre aux attentes des primo-accédants et des jeunes familles.
Dès l’arrivée, un porche d’entrée couvert vous accueille et mène à une entrée fonctionnelle avec rangements, idéale pour le quotidien.
La maison offre une belle pièce de vie lumineuse, ouverte sur l’extérieur grâce à une grande baie vitrée donnant accès à la terrasse et au jardin.
La cuisine ouverte, conviviale et moderne, communique directement avec le garage de 19 m², un vrai plus pour les courses et le rangement.
Un WC indépendant complète le rez-de-chaussée.
À l’étage, l’espace nuit se compose de :
3 chambres confortables, parfaites pour une famille ou un bureau en télétravail
Une salle de bain avec douche, pratique et actuelle
Un WC séparé, pour plus de confort au quotidien
Les + qui font la différence :
Maison neuve, conforme aux normes actuelles (économies d’énergie)
Agencement optimisé, sans perte d’espace
Jardin privatif facile d’entretien
Quartier calme et familial
Projet idéal pour un premier achat sécurisé, avec garanties constructeur
Une maison fonctionnelle, lumineuse et évolutive, parfaite pour démarrer un nouveau projet de vie en toute sérénité.
OFFRE EXCEPTIONNELLE EN CE MOMENT
10 m² OFFERTS + 1 PACK AU CHOIX :
PACK CUISINE : cuisine entièrement équipée
OU
PACK DÉCO : placards intégrés + parquet dans toutes les chambres + peintures intérieures + faïence
Pour plus de renseignements ou une étude personnalisée de votre projet : Contactez directement votre commerciale Caroline Guillemaud
ou répondez à cette annonce.
Référence : 3957 SIQUET CAROLINE
Terrain proposé et vendu par notre partenaire foncier selon disponibilités, le constructeur n’étant pas mandaté pour réaliser la vente du terrain. Prix terrain inclus : 94 500 € Frais de notaire non inclus : € Prix maison inclus : 165 500 € VRD non inclus : € Hors aménagements extérieurs (extensions, terrasse, piscine etc), papiers peints, peintures, moquettes dans les chambres (tarif en vigueur au 20 mai 2025, modifiable sans préavis, prix variables suivant les prestations souhaitées). Hors frais d’hypothèque. Différents modèles disponibles pour chaque terrain. Assurance RC professionnelle/décennale/dommage ouvrage groupe Aviva. Garantie de remboursement de l'acompte/livraison à prix et délai convenu CGI. Partenaire financier : à préciser Le numéro de TVA intracommunautaire : FR 14 498 627 272 00012 Contact : contact@maisons-punch.fr
Les informations sur les risques auxquels ce bien est exposé sont disponibles sur le site Géorisques : www.georisques.gouv.fr
Vous rêvez de devenir propriétaire sans compromis entre budget, confort et qualité de vie ?
Cette maison neuve à étage de 85 m², implantée sur un terrain de 304 m², est pensée pour répondre aux attentes des primo-accédants et des jeunes familles.
Dès l’arrivée, un porche d’entrée couvert vous accueille et mène à une entrée fonctionnelle avec rangements, idéale pour le quotidien.
La maison offre une belle pièce de vie lumineuse, ouverte sur l’extérieur grâce à une grande baie vitrée donnant accès à la terrasse et au jardin.
La cuisine ouverte, conviviale et moderne, communique directement avec le garage de 19 m², un vrai plus pour les courses et le rangement.
Un WC indépendant complète le rez-de-chaussée.
À l’étage, l’espace nuit se compose de :
3 chambres confortables, parfaites pour une famille ou un bureau en télétravail
Une salle de bain avec douche, pratique et actuelle
Un WC séparé, pour plus de confort au quotidien
Les + qui font la différence :
Maison neuve, conforme aux normes actuelles (économies d’énergie)
Agencement optimisé, sans perte d’espace
Jardin privatif facile d’entretien
Quartier calme et familial
Projet idéal pour un premier achat sécurisé, avec garanties constructeur
Une maison fonctionnelle, lumineuse et évolutive, parfaite pour démarrer un nouveau projet de vie en toute sérénité.
OFFRE EXCEPTIONNELLE EN CE MOMENT
10 m² OFFERTS + 1 PACK AU CHOIX :
PACK CUISINE : cuisine entièrement équipée
OU
PACK DÉCO : placards intégrés + parquet dans toutes les chambres + peintures intérieures + faïence
Pour plus de renseignements ou une étude personnalisée de votre projet : Contactez directement votre commerciale Caroline Guillemaud
ou répondez à cette annonce.
Référence : 3957 SIQUET CAROLINE
Terrain proposé et vendu par notre partenaire foncier selon disponibilités, le constructeur n’étant pas mandaté pour réaliser la vente du terrain. Prix terrain inclus : 94 500 € Frais de notaire non inclus : € Prix maison inclus : 165 500 € VRD non inclus : € Hors aménagements extérieurs (extensions, terrasse, piscine etc), papiers peints, peintures, moquettes dans les chambres (tarif en vigueur au 20 mai 2025, modifiable sans préavis, prix variables suivant les prestations souhaitées). Hors frais d’hypothèque. Différents modèles disponibles pour chaque terrain. Assurance RC professionnelle/décennale/dommage ouvrage groupe Aviva. Garantie de remboursement de l'acompte/livraison à prix et délai convenu CGI. Partenaire financier : à préciser Le numéro de TVA intracommunautaire : FR 14 498 627 272 00012 Contact : contact@maisons-punch.fr
Les informations sur les risques auxquels ce bien est exposé sont disponibles sur le site Géorisques : www.georisques.gouv.fr
- Prix
-
- Prix total : 260 000 €
- Prix du modèle de maison : 165 500 €
- Prix du terrain : 94 500 €
- Terrain
-
- Surface : 304 m²
- Maison
-
- Surface : 90 m²
- Pièces : 4
- Chambres : 3
- Salle de bains : 1
- Garage : 1
- Surface garage : 20 m²
- Être rappelé par un conseiller
- Demander plus d’infos
- Demande d'information
Villeneuve (04180)
Maisons à proximité
Maison neuve, 79 m²
Villeneuve (04180)
Villeneuve (04180)
Maison de 4 pièces
Maison neuve, 85 m²
Villeneuve (04180)
Villeneuve (04180)
Maison de 4 pièces
Maison neuve, 93 m²
Villeneuve (04180)
Villeneuve (04180)
Maison de 4 pièces
Maison neuve, 90 m²
Villeneuve (04180)
Villeneuve (04180)
Maison de 4 pièces
Maison neuve, 73 m²
Villeneuve (04180)
Villeneuve (04180)
Maison de 3 pièces
Maison neuve, 100 m²
Villeneuve (04180)
Villeneuve (04180)
Maison de 5 pièces
Programmes à proximité
LUBERIA
Manosque (04100)
Manosque (04100)
Appartements de 2 à 4 pièces
Livraison 4ème trimestre 2027
Contacter MAISONS PUNCH VILLEFRANCHE pour recevoir plus d'informations
Remplissez le formulaire ci-dessous, vos informations sont transmises directement au constructeur qui vous contactera par email ou par téléphone afin de traiter votre demande. En savoir plus.