Maison neuve, 142 m² - Vieille-Eglise-en-Yvelines (78125)

595 000 €
Vieille-Eglise-en-Yvelines (78125)

Proposée par BERVAL – 6 pièces - 4 chambres - terrain 1 400 m²

BERVAL
BERVAL
  • Demande d'information
MAISON À CONSTRUIRE : ceci est une annonce d'une maison neuve à construire.
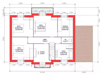
Dans un village de charme situé 5 minutes de Rambouillet sur la commune de Vieille Eglise, venez découvrir cette maison familiale de 143m² habitable aux volumes généreux, implantée sur un beau terrain plat de 1 400m², exposé plein Sud.
Vous profiterez d'un bel espace de vie de 56m², avec une cuisine ouverte donnant sur un cellier et garage. L'étage offre trois belles chambres (dont une avec dressing) et un bureau (chambre d'amis) avec vue sur le jardin.
Maison disposant des nouvelles réglementations RE 2020 et certifiée NF Habitat HQE.Annonce proposée par un Agent Commercial Partenaire.
Référence : FL2388765
Terrain proposé par un partenaire foncier selon disponibilités et autorisation de publicité au prix de €. Hors droit d'enregistrement et frais de notaire. Terrain + Maison proposés au prix de 595 000 € (Hors branchements et raccordements, papiers peints, peintures, revêtement de sol dans les chambres. Tarif modifiable sans préavis). Etiquette énergie : A. Différents modèles disponibles pour ce terrain.

Les informations sur les risques auxquels ce bien est exposé sont disponibles sur le site Géorisques : www.georisques.gouv.fr


Prix
  • Prix total : 595 000 €
  • Prix du modèle de maison : N.C.
  • Prix du terrain : N.C.

Terrain
  • Surface : 1 400 m²

Maison
  • Surface : 142 m²
  • Pièces : 6
  • Chambres : 4
  • Garage : 1

  • Être rappelé par un conseiller
  • Demander plus d’infos
  • Demande d'information
Vieille-Eglise-en-Yvelines (78125)

Maisons à proximité

Programmes à proximité

LE CLOS DU PERRAY
LE CLOS DU PERRAY
Le Perray-en-Yvelines (78610)

Appartements de 3 à 4 pièces
Livraison 4ème trimestre 2025

Résidence Harmonie
Résidence Harmonie
Rambouillet (78120)

Appartements de 2 à 3 pièces
Livraison 1er trimestre 2026

LA GALOPEE
LA GALOPEE
Rambouillet (78120)

Appartements de 2 à 3 pièces et maisons de 4 pièces
Livraison 2ème trimestre 2028

LA VILLA CEDRUS
LA VILLA CEDRUS
Le Mesnil-Saint-Denis (78320)

Appartement de 2 pièces
Livraison 1er trimestre 2025

Villa Gloriette
Villa Gloriette
Bonnelles (78830)

Appartements de 1 à 4 pièces et maisons de 4 pièces
Livraison 2ème trimestre 2027

L'Éclat
L'Éclat
Elancourt (78990)

Appartements de 2 à 4 pièces

Contacter BERVAL pour recevoir plus d'informations

Remplissez le formulaire ci-dessous, vos informations sont transmises directement au constructeur qui vous contactera par email ou par téléphone afin de traiter votre demande. En savoir plus.

Voir tous nos programmes immobiliers neufs à Vieille-Eglise-en-Yvelines