Maison neuve, 90 m² - Vic-en-Bigorre (65500)
189 000 €
Vic-en-Bigorre (65500)
Proposée par MAISONS BRUNO PETIT GHPA – 4 pièces - 3 chambres - terrain 704 m²
|
|
| MAISONS BRUNO PETIT GHPA |
| (228 avis) |
- Demande d'information
- Prendre rendez-vous
MAISON À CONSTRUIRE : ceci est une annonce d'une maison neuve à construire.
VENTE : maison T4 (90 m²) à Vic en Bigorre
IDÉALEMENT SITUÉE - MAISON 4 PIÈCES NEUVE
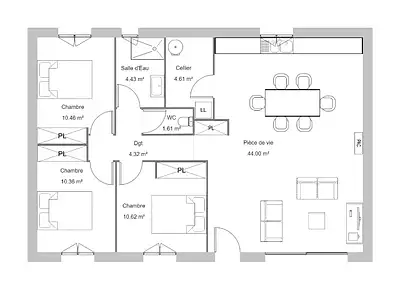
Maisons Bruno Petit GHPA vous propose cette maison de 4 pièces de plain-pied de 90 m².
Cette maison compte trois chambres, une cuisine et une salle de bains.
Le terrain du bien est de 704 m².
Maison proposée à partir de 189000€ Hors frais de notaire. A composer selon votre projet et vos envies.
.
Référence : LB2327274_1
Terrain proposé par un partenaire foncier selon disponibilités et autorisation de publicité au prix de 40 900 €. Hors droit d'enregistrement et frais de notaire. Maison proposée, avec un contrat de construction de maison individuelle, dans le cadre de la loi du 19/12/1990, au prix de 148 100 € (Hors branchements et raccordements, papiers peints, peintures, revêtement de sol dans les chambres, qui sont chiffrés dans les travaux qui restent à charge du client. Tarif modifiable sans préavis). Étiquette énergie : A. Différents modèles disponibles pour ce terrain. Assurances et garanties du constructeur comprises (RC professionnelle, décennale, dommage ouvrage).
Les informations sur les risques auxquels ce bien est exposé sont disponibles sur le site Géorisques : www.georisques.gouv.fr
IDÉALEMENT SITUÉE - MAISON 4 PIÈCES NEUVE
Maisons Bruno Petit GHPA vous propose cette maison de 4 pièces de plain-pied de 90 m².
Cette maison compte trois chambres, une cuisine et une salle de bains.
Le terrain du bien est de 704 m².
Maison proposée à partir de 189000€ Hors frais de notaire. A composer selon votre projet et vos envies.
.
Référence : LB2327274_1
Terrain proposé par un partenaire foncier selon disponibilités et autorisation de publicité au prix de 40 900 €. Hors droit d'enregistrement et frais de notaire. Maison proposée, avec un contrat de construction de maison individuelle, dans le cadre de la loi du 19/12/1990, au prix de 148 100 € (Hors branchements et raccordements, papiers peints, peintures, revêtement de sol dans les chambres, qui sont chiffrés dans les travaux qui restent à charge du client. Tarif modifiable sans préavis). Étiquette énergie : A. Différents modèles disponibles pour ce terrain. Assurances et garanties du constructeur comprises (RC professionnelle, décennale, dommage ouvrage).
Les informations sur les risques auxquels ce bien est exposé sont disponibles sur le site Géorisques : www.georisques.gouv.fr
- Prix
-
- Prix total : 189 000 €
- Prix du modèle de maison : 148 100 €
- Prix du terrain : 40 900 €
- Terrain
-
- Surface : 704 m²
- Maison
-
- Surface : 90 m²
- Pièces : 4
- Chambres : 3
- Être rappelé par un conseiller
- Demander plus d’infos
- Demande d'information
Vic-en-Bigorre (65500)
Maisons à proximité
Maison neuve, 123 m²
Sarriac-Bigorre (65140)
Sarriac-Bigorre (65140)
Maison de 5 pièces
Maison neuve, 90 m²
Sarriac-Bigorre (65140)
Sarriac-Bigorre (65140)
Maison de 3 pièces
Maison neuve, 123 m²
Rabastens-de-Bigorre (65140)
Rabastens-de-Bigorre (65140)
Maison de 5 pièces
Maison neuve, 90 m²
Rabastens-de-Bigorre (65140)
Rabastens-de-Bigorre (65140)
Maison de 3 pièces
Maison neuve, 90 m²
Sénac (65140)
Sénac (65140)
Maison de 4 pièces
Maison neuve, 90 m²
Sénac (65140)
Sénac (65140)
Maison de 4 pièces
Programmes à proximité
Contacter MAISONS BRUNO PETIT GHPA pour recevoir plus d'informations
Remplissez le formulaire ci-dessous, vos informations sont transmises directement au constructeur qui vous contactera par email ou par téléphone afin de traiter votre demande. En savoir plus.