Maison neuve, 114 m² - Vernie (72170)
249 000 €
Vernie (72170)
Proposée par MAINE CONSTRUCTION – 3 pièces - 3 chambres - terrain 1 954 m²
|
|
| Maine Construction |
- Demande d'information
- Prendre rendez-vous
MAISON À CONSTRUIRE : ceci est une annonce d'une maison neuve à construire.
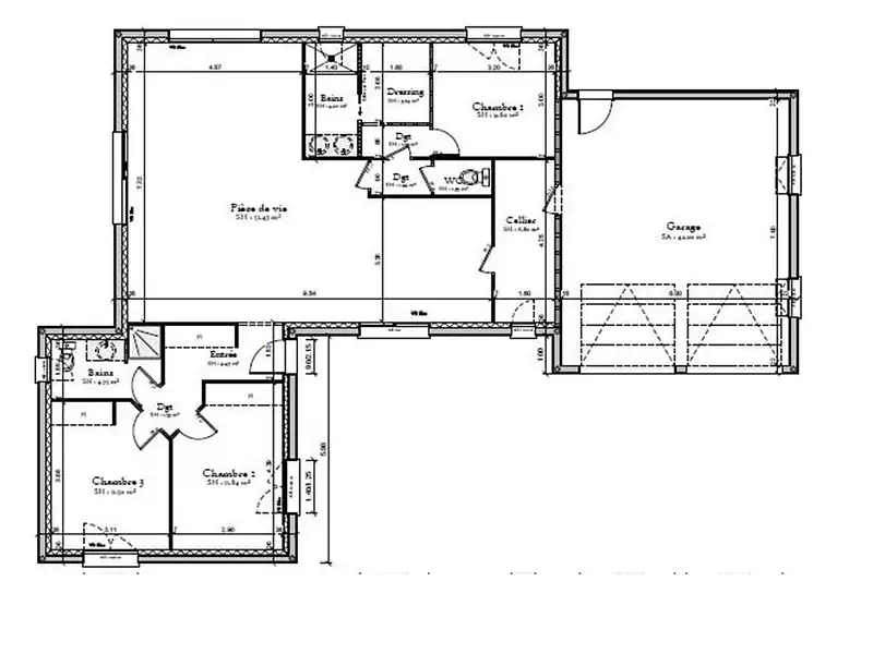
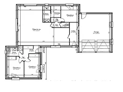
Vernie : maison T3 (114 m²) à vendre
Proche du Mans - À Vernie (72170), maison neuve en vente de 3 pièces, 114 m² sur 1 954 m² de terrain. Conçue de plain-pied, elle est composée de trois chambres, d'une cuisine et d'une salle de bains.
Proche gares (Conlie, Crissé et Domfront-en-Champagne), écoles. Autoroutes A28 et A11 accessibles à 19 km.
Cette maison de 3 pièces est proposée à l'achat pour 249 000 €.
. Maine Construction Le Mans vous accompagne à toutes les étapes de votre projet et dans tous vos projets immobiliers.
Référence : LL2348392_6
Terrain proposé par un partenaire foncier selon disponibilités et autorisation de publicité au prix de 47 168 €. Hors droit d'enregistrement et frais de notaire. Maison proposée, avec un contrat de construction de maison individuelle, dans le cadre de la loi du 19/12/1990, au prix de 201 832 € (Hors branchements et raccordements, papiers peints, peintures, revêtement de sol dans les chambres, qui sont chiffrés dans les travaux qui restent à charge du client. Tarif modifiable sans préavis). Étiquette énergie : A. Différents modèles disponibles pour ce terrain. Assurances et garanties du constructeur comprises (RC professionnelle, décennale, dommage ouvrage).
Les informations sur les risques auxquels ce bien est exposé sont disponibles sur le site Géorisques : www.georisques.gouv.fr
Proche du Mans - À Vernie (72170), maison neuve en vente de 3 pièces, 114 m² sur 1 954 m² de terrain. Conçue de plain-pied, elle est composée de trois chambres, d'une cuisine et d'une salle de bains.
Proche gares (Conlie, Crissé et Domfront-en-Champagne), écoles. Autoroutes A28 et A11 accessibles à 19 km.
Cette maison de 3 pièces est proposée à l'achat pour 249 000 €.
. Maine Construction Le Mans vous accompagne à toutes les étapes de votre projet et dans tous vos projets immobiliers.
Référence : LL2348392_6
Terrain proposé par un partenaire foncier selon disponibilités et autorisation de publicité au prix de 47 168 €. Hors droit d'enregistrement et frais de notaire. Maison proposée, avec un contrat de construction de maison individuelle, dans le cadre de la loi du 19/12/1990, au prix de 201 832 € (Hors branchements et raccordements, papiers peints, peintures, revêtement de sol dans les chambres, qui sont chiffrés dans les travaux qui restent à charge du client. Tarif modifiable sans préavis). Étiquette énergie : A. Différents modèles disponibles pour ce terrain. Assurances et garanties du constructeur comprises (RC professionnelle, décennale, dommage ouvrage).
Les informations sur les risques auxquels ce bien est exposé sont disponibles sur le site Géorisques : www.georisques.gouv.fr
- Prix
-
- Prix total : 249 000 €
- Prix du modèle de maison : 201 832 €
- Prix du terrain : 47 168 €
- Terrain
-
- Surface : 1 954 m²
- Maison
-
- Surface : 114 m²
- Pièces : 3
- Chambres : 3
- Garage : 1
- Être rappelé par un conseiller
- Demander plus d’infos
- Demande d'information
Vernie (72170)
Maisons à proximité
Maison neuve, 127 m²
Vernie (72170)
Vernie (72170)
Maison de 4 pièces
Maison neuve, 113 m²
Vernie (72170)
Vernie (72170)
Maison de 5 pièces
Maison neuve, 81 m²
Vernie (72170)
Vernie (72170)
Maison de 5 pièces
Maison neuve, 92 m²
Vernie (72170)
Vernie (72170)
Maison de 5 pièces
Maison neuve, 98 m²
Vernie (72170)
Vernie (72170)
Maison de 5 pièces
Maison neuve, 94 m²
Neuvillalais (72240)
Neuvillalais (72240)
Maison de 5 pièces
Programmes à proximité
Néméa Le Mans Université
Le Mans (72000)
Le Mans (72000)
Appartements de 1 pièce
Livraison 2ème trimestre 2027
HARMONIE
Le Mans (72000)
Le Mans (72000)
Appartement de 4 pièces
Livraison 2ème trimestre 2026
Epsilon
Le Mans (72000)
Le Mans (72000)
Appartements de 1 à 3 pièces
Livraison 4ème trimestre 2027
Oméga
Le Mans (72000)
Le Mans (72000)
Appartements de 1 pièce
Livraison 2ème trimestre 2026
Contacter MAINE CONSTRUCTION pour recevoir plus d'informations
Remplissez le formulaire ci-dessous, vos informations sont transmises directement au constructeur qui vous contactera par email ou par téléphone afin de traiter votre demande. En savoir plus.