Maison neuve, 107 m² - Vercel-Villedieu-le-Camp (25530)
331 330 €
Vercel-Villedieu-le-Camp (25530)
Proposée par BABEAU SEGUIN AGENCE DE VALDAHON – DOUBS – 5 pièces - 4 chambres - terrain 1 020 m²
|
|
| Babeau Seguin Agence de Valdahon – Doubs |
- Demande d'information
- Prendre rendez-vous
MAISON À CONSTRUIRE : ceci est une annonce d'une maison neuve à construire.
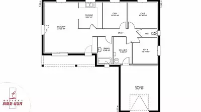
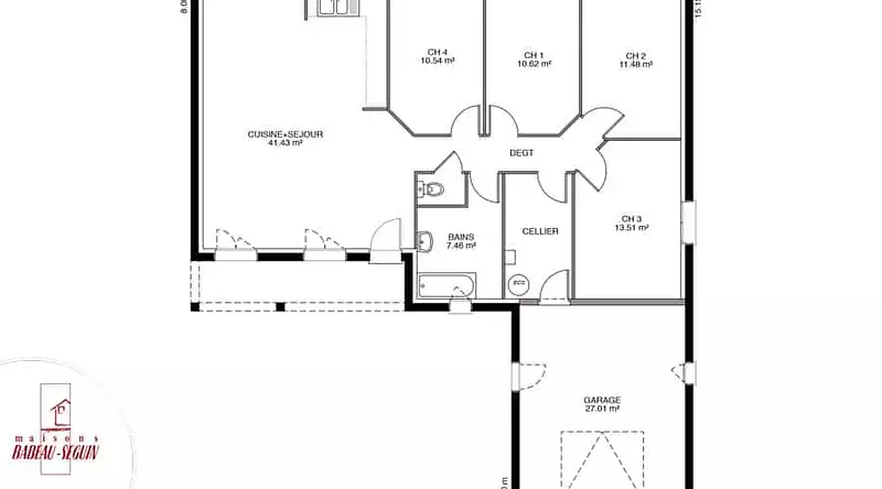
Sur ce terrain, nous vous proposons cette maison neuve, la Sauvetière, conçue par Babeau-Seguin, constructeur offrant le meilleur rapport qualité/prix du marché. Cette maison de 107 m², à classer sans nul doute dans la catégorie des maisons modernes, sera idéale pour votre famille.
La Sauvetière, une maison plain-pied traditionnelle, vous offre de base une vaste galerie et un garage accolé en rupture avec le volume principal de la construction. Son audacieux plan en forme de L, disponible en version 2 pans ou 4 pans, ne vous laissera pas indifférent.
Cette maison dispose de 4 chambres spacieuses et de 4 pièces, offrant un espace de vie confortable et fonctionnel. Le garage accolé permet un accès direct à la maison, facilitant ainsi votre quotidien.
L'un des atouts majeurs de la Sauvetière est sa basse consommation énergétique, conforme à la réglementation RE2020, garantissant des économies d'énergie et un confort optimal tout au long de l'année.
Ne manquez pas cette opportunité unique d'acquérir une maison moderne, économe en énergie et parfaitement adaptée à vos besoins. Contactez-nous dès maintenant pour plus d'informations et pour planifier une visite.
Référence : 90890
Les informations sur les risques auxquels ce bien est exposé sont disponibles sur le site Géorisques : www.georisques.gouv.fr
La Sauvetière, une maison plain-pied traditionnelle, vous offre de base une vaste galerie et un garage accolé en rupture avec le volume principal de la construction. Son audacieux plan en forme de L, disponible en version 2 pans ou 4 pans, ne vous laissera pas indifférent.
Cette maison dispose de 4 chambres spacieuses et de 4 pièces, offrant un espace de vie confortable et fonctionnel. Le garage accolé permet un accès direct à la maison, facilitant ainsi votre quotidien.
L'un des atouts majeurs de la Sauvetière est sa basse consommation énergétique, conforme à la réglementation RE2020, garantissant des économies d'énergie et un confort optimal tout au long de l'année.
Ne manquez pas cette opportunité unique d'acquérir une maison moderne, économe en énergie et parfaitement adaptée à vos besoins. Contactez-nous dès maintenant pour plus d'informations et pour planifier une visite.
Référence : 90890
Les informations sur les risques auxquels ce bien est exposé sont disponibles sur le site Géorisques : www.georisques.gouv.fr
- Prix
-
- Prix total : 331 330 €
- Prix du modèle de maison : 215 130 €
- Prix du terrain : 116 200 €
- Terrain
-
- Surface : 1 020 m²
- Maison
-
- Surface : 107 m²
- Pièces : 5
- Chambres : 4
- Être rappelé par un conseiller
- Demander plus d’infos
- Demande d'information
Vercel-Villedieu-le-Camp (25530)
Maisons à proximité
Maison neuve, 82 m²
Vercel-Villedieu-le-Camp (25530)
Vercel-Villedieu-le-Camp (25530)
Maison de 4 pièces
Maison neuve, 88 m²
Vercel-Villedieu-le-Camp (25530)
Vercel-Villedieu-le-Camp (25530)
Maison de 4 pièces
Maison neuve, 71 m²
Vercel-Villedieu-le-Camp (25530)
Vercel-Villedieu-le-Camp (25530)
Maison de 3 pièces
Maison neuve, 73 m²
Vercel-Villedieu-le-Camp (25530)
Vercel-Villedieu-le-Camp (25530)
Maison de 3 pièces
Maison neuve, 88 m²
Domprel (25510)
Domprel (25510)
Maison de 4 pièces
Maison neuve, 107 m²
Avoudrey (25690)
Avoudrey (25690)
Maison de 5 pièces
Programmes à proximité
Contacter BABEAU SEGUIN AGENCE DE VALDAHON – DOUBS pour recevoir plus d'informations
Remplissez le formulaire ci-dessous, vos informations sont transmises directement au constructeur qui vous contactera par email ou par téléphone afin de traiter votre demande. En savoir plus.
Voir tous nos programmes immobiliers neufs à Vercel-Villedieu-le-Camp