Maison neuve, 109 m² - Vasselay (18110)
286 140 €
Vasselay (18110)
Proposée par STYL HABITAT AGENCE DE BOURGES (18) – 5 pièces - 4 chambres - terrain 1 300 m²
|
|
| Styl habitat Agence de Bourges (18) |
- Demande d'information
- Prendre rendez-vous
MAISON À CONSTRUIRE : ceci est une annonce d'une maison neuve à construire.
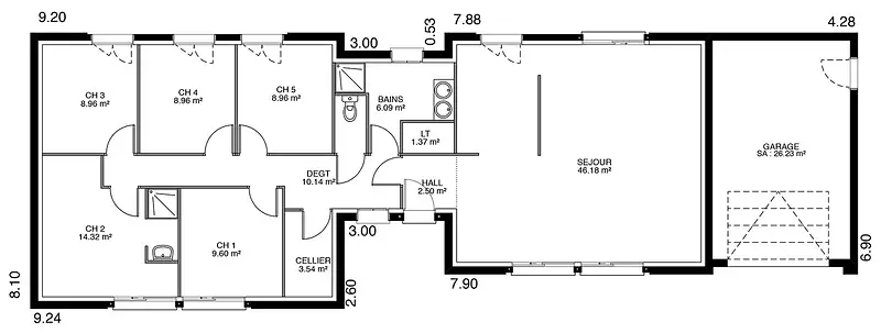
Nous vous proposons cette maison neuve, baptisée ""Harmonie"", un modèle conçu avec soin par nos architectes, intégrant un garage pour allier fonctionnalité et esthétique. Cette maison, d'une surface de 109 m², est pensée pour offrir confort et bien-être à ses habitants. Elle se compose de 5 pièces, dont 4 chambres spacieuses, permettant à chaque membre de la famille de bénéficier de son propre espace de tranquillité.
L'architecture de ""Harmonie"" a été étudiée pour s'intégrer parfaitement à son environnement tout en mettant en avant une esthétique moderne et épurée. Le garage intégré est un atout majeur, offrant non seulement un espace de stationnement sécurisé mais aussi une facilité d'accès à la maison, quelles que soient les conditions météorologiques.
Cette maison est également une prouesse en termes de performance énergétique. Conforme à la norme RE2020, elle est classée comme maison basse consommation. Cela signifie que ""Harmonie"" a été conçue pour réduire au minimum votre empreinte carbone tout en vous permettant de réaliser d'importantes économies d'énergie. L'isolation thermique optimisée, le système de chauffage de dernière génération et la ventilation performante garantissent un confort inégalé en toutes saisons, avec un impact environnemental réduit.
Vivre dans ""Harmonie"", c'est choisir un habitat qui respecte l'environnement tout en offrant un cadre de vie exceptionnel. Cette maison est idéale pour ceux qui recherchent un lieu de vie sain, économique en énergie et doté de tout le confort moderne. Ne manquez pas l'opportunité de construire la maison de vos rêves, une maison qui sera en parfaite harmonie avec vos valeurs et votre style de vie.
Référence : 13486
Les informations sur les risques auxquels ce bien est exposé sont disponibles sur le site Géorisques : www.georisques.gouv.fr
L'architecture de ""Harmonie"" a été étudiée pour s'intégrer parfaitement à son environnement tout en mettant en avant une esthétique moderne et épurée. Le garage intégré est un atout majeur, offrant non seulement un espace de stationnement sécurisé mais aussi une facilité d'accès à la maison, quelles que soient les conditions météorologiques.
Cette maison est également une prouesse en termes de performance énergétique. Conforme à la norme RE2020, elle est classée comme maison basse consommation. Cela signifie que ""Harmonie"" a été conçue pour réduire au minimum votre empreinte carbone tout en vous permettant de réaliser d'importantes économies d'énergie. L'isolation thermique optimisée, le système de chauffage de dernière génération et la ventilation performante garantissent un confort inégalé en toutes saisons, avec un impact environnemental réduit.
Vivre dans ""Harmonie"", c'est choisir un habitat qui respecte l'environnement tout en offrant un cadre de vie exceptionnel. Cette maison est idéale pour ceux qui recherchent un lieu de vie sain, économique en énergie et doté de tout le confort moderne. Ne manquez pas l'opportunité de construire la maison de vos rêves, une maison qui sera en parfaite harmonie avec vos valeurs et votre style de vie.
Référence : 13486
Les informations sur les risques auxquels ce bien est exposé sont disponibles sur le site Géorisques : www.georisques.gouv.fr
- Prix
-
- Prix total : 286 140 €
- Prix du modèle de maison : 257 140 €
- Prix du terrain : 29 000 €
- Terrain
-
- Surface : 1 300 m²
- Maison
-
- Surface : 109 m²
- Pièces : 5
- Chambres : 4
- Être rappelé par un conseiller
- Demander plus d’infos
- Demande d'information
Vasselay (18110)
Maisons à proximité
Maison neuve, 89 m²
Vasselay (18110)
Vasselay (18110)
Maison de 3 pièces
Maison neuve, 108 m²
Fussy (18110)
Fussy (18110)
Maison de 4 pièces
Maison neuve, 83 m²
Fussy (18110)
Fussy (18110)
Maison de 5 pièces
Maison neuve, 90 m²
Fussy (18110)
Fussy (18110)
Maison de 5 pièces
Maison neuve, 60 m²
Fussy (18110)
Fussy (18110)
Maison de 4 pièces
Maison neuve, 85 m²
Fussy (18110)
Fussy (18110)
Maison de 4 pièces
Programmes à proximité
Le Clos d'Auron
Bourges (18000)
Bourges (18000)
Appartements de 2 à 3 pièces
Livraison 1er trimestre 2028
Dans un écrin historique à 8 min* du centre
Bourges (18000)
Bourges (18000)
Appartement de 2 pièces
Livraison 3ème trimestre 2026
Carré Voltaire
Bourges (18000)
Bourges (18000)
Appartements de 1 à 4 pièces
Livraison 1er trimestre 2028
Contacter STYL HABITAT AGENCE DE BOURGES (18) pour recevoir plus d'informations
Remplissez le formulaire ci-dessous, vos informations sont transmises directement au constructeur qui vous contactera par email ou par téléphone afin de traiter votre demande. En savoir plus.