Maison neuve, 122 m² - Vallangoujard (95810)

430 000 €
Vallangoujard (95810)

Proposée par MAISONS FRANCE CONFORT – 6 pièces - 3 chambres - terrain 670 m²

MAISONS FRANCE CONFORT
MAISONS FRANCE CONFORT
(56 avis)
  • Demande d'information
MAISON À CONSTRUIRE : ceci est une annonce d'une maison neuve à construire.
Concrétisons ensemble votre ptojet de construction sur la commune de VALLANGOUJARD 95.
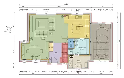
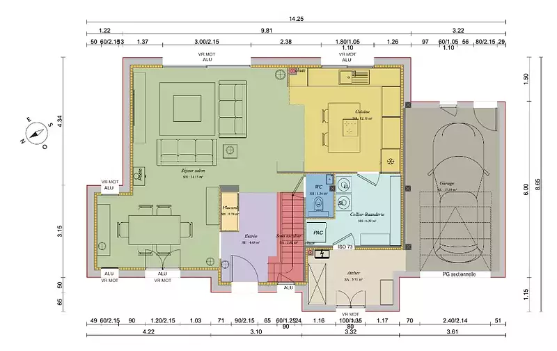
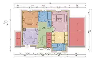
Cette maison offre 122m² habitables , au RDc un espace de vie de 50m², un cellier- buanderie de 6m² plus garage / atelier de 23 m². A l'étage une suite parentale de 23m² , 2 chambres de 10m² , 2sdb un palier de 9m². menuiseries alluminium , PAC air/eau plancher chauffant rdc , radiateurs étage.
Idéalement orienté sud ouest un projet de maison prête à décorée pour un montant de 430000€ , frais annexes et frais de notaire inclus.
Contacter M.AIT de notre agence MAISONS FRANCE CONFORT MOISSELLES au 06 76 76 37 16 / 01 39 91 72 46 pour plus d'informations ou imaginer ensemble un autre projet sur ce terrain.
Référence : LAO2362102_1
Terrain proposé par un partenaire foncier selon disponibilités et autorisation de publicité au prix de 140 000 €. Hors droit d'enregistrement et frais de notaire. Terrain + Maison proposés au prix de 290 000 € (Hors branchements et raccordements, papiers peints, peintures, revêtement de sol dans les chambres. Tarif modifiable sans préavis). Etiquette énergie : A. Différents modèles disponibles pour ce terrain. Assurances et garanties du constructeur (RC professionnelle, décennale, dommage ouvrage, garantie de remboursement de l'acompte, livraison à prix et délai convenu) : https://www.maisons-france-confort.fr/mentions-legales/. HEXAOM Services est enregistré auprès de l'ORIAS en tant que Courtier en financement, Niveau 1, sous le numéro 14001345.

Les informations sur les risques auxquels ce bien est exposé sont disponibles sur le site Géorisques : www.georisques.gouv.fr


Prix
  • Prix total : 430 000 €
  • Prix du modèle de maison : 290 000 €
  • Prix du terrain : 140 000 €

Terrain
  • Surface : 670 m²

Maison
  • Surface : 122 m²
  • Pièces : 6
  • Chambres : 3
  • Garage : 1

  • Être rappelé par un conseiller
  • Demander plus d’infos
  • Demande d'information
Vallangoujard (95810)

Programmes à proximité

Résidence Madria
Résidence Madria
Méry-sur-Oise (95540)

Appartements de 2 à 3 pièces et maisons de 5 pièces
Livraison 4ème trimestre 2027

Résidence Sisley
Résidence Sisley
Pontoise (95300)

Appartements de 2 à 4 pièces
Livraison 1er trimestre 2027

Allure
Allure
Pontoise (95300)

Appartements de 1 à 5 pièces
Livraison 3ème trimestre 2027

BUCOLIA
BUCOLIA
Cergy (95000)

Appartements de 3 pièces et maisons de 3 pièces
Livraison 2ème trimestre 2027

VIVAREA
VIVAREA
Cergy (95000)

Appartements de 3 à 4 pièces
Livraison 2ème trimestre 2027

L'Isara
L'Isara
Cergy (95000)

Appartements de 2 à 6 pièces

Contacter MAISONS FRANCE CONFORT pour recevoir plus d'informations

Remplissez le formulaire ci-dessous, vos informations sont transmises directement au constructeur qui vous contactera par email ou par téléphone afin de traiter votre demande. En savoir plus.

Voir tous nos programmes immobiliers neufs à Vallangoujard