Maison neuve, 86 m² - Trangé (72650)
225 000 €
Trangé (72650)
Proposée par MAINE CONSTRUCTION – 4 pièces - 3 chambres - terrain 300 m²
|
|
| Maine Construction |
- Demande d'information
- Prendre rendez-vous
MAISON À CONSTRUIRE : ceci est une annonce d'une maison neuve à construire.
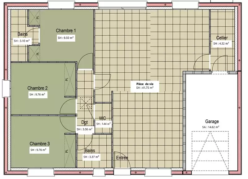
VENTE d'une maison de 4 pièces (86 m²) à Trangé
Quartier recherché - À Trangé (72650), maison neuve à vendre de 4 pièces, 86 m² sur 300 m² de terrain. Conçue de plain-pied, elle offre trois chambres, une cuisine et deux salles de bains.
À proximité : gares (Le Mans et Neuville-sur-Sarthe), École Primaire Publique les Happelières, bibliothèque, commerces, boulangerie et épicerie. Autoroute A11 à 2 km. Le Mans à 8 km.
Cette maison de 4 pièces est à vendre pour la somme de 225 000 €.
N'hésitez pas à prendre contact avec notre agence (HOUDAYER François : 06-23-38-26-90) pour plus de renseignements sur la maison ou sur les démarches à suivre. Maine Construction Le Mans vous accompagne dans tous vos projets immobiliers et à toutes les étapes de l'achat.
Référence : FH2330696_5
Terrain proposé par un partenaire foncier selon disponibilités et autorisation de publicité au prix de 42 000 €. Hors droit d'enregistrement et frais de notaire. Terrain + Maison proposés au prix de 183 000 € (Hors branchements et raccordements, papiers peints, peintures, revêtement de sol dans les chambres. Tarif modifiable sans préavis). Etiquette énergie : A. Différents modèles disponibles pour ce terrain. Assurances et garanties du constructeur (RC professionnelle, décennale, dommage ouvrage, garantie de remboursement de l'acompte, livraison à prix et délai convenu) : https://www.maine-construction.fr/mentions-legales/. HEXAOM Services est enregistré auprès de l'ORIAS en tant que Courtier en financement, Niveau 1, sous le numéro 14001345.
Les informations sur les risques auxquels ce bien est exposé sont disponibles sur le site Géorisques : www.georisques.gouv.fr
Quartier recherché - À Trangé (72650), maison neuve à vendre de 4 pièces, 86 m² sur 300 m² de terrain. Conçue de plain-pied, elle offre trois chambres, une cuisine et deux salles de bains.
À proximité : gares (Le Mans et Neuville-sur-Sarthe), École Primaire Publique les Happelières, bibliothèque, commerces, boulangerie et épicerie. Autoroute A11 à 2 km. Le Mans à 8 km.
Cette maison de 4 pièces est à vendre pour la somme de 225 000 €.
N'hésitez pas à prendre contact avec notre agence (HOUDAYER François : 06-23-38-26-90) pour plus de renseignements sur la maison ou sur les démarches à suivre. Maine Construction Le Mans vous accompagne dans tous vos projets immobiliers et à toutes les étapes de l'achat.
Référence : FH2330696_5
Terrain proposé par un partenaire foncier selon disponibilités et autorisation de publicité au prix de 42 000 €. Hors droit d'enregistrement et frais de notaire. Terrain + Maison proposés au prix de 183 000 € (Hors branchements et raccordements, papiers peints, peintures, revêtement de sol dans les chambres. Tarif modifiable sans préavis). Etiquette énergie : A. Différents modèles disponibles pour ce terrain. Assurances et garanties du constructeur (RC professionnelle, décennale, dommage ouvrage, garantie de remboursement de l'acompte, livraison à prix et délai convenu) : https://www.maine-construction.fr/mentions-legales/. HEXAOM Services est enregistré auprès de l'ORIAS en tant que Courtier en financement, Niveau 1, sous le numéro 14001345.
Les informations sur les risques auxquels ce bien est exposé sont disponibles sur le site Géorisques : www.georisques.gouv.fr
- Prix
-
- Prix total : 225 000 €
- Prix du modèle de maison : 183 000 €
- Prix du terrain : 42 000 €
- Terrain
-
- Surface : 300 m²
- Maison
-
- Surface : 86 m²
- Pièces : 4
- Chambres : 3
- Garage : 1
- Être rappelé par un conseiller
- Demander plus d’infos
- Demande d'information
Trangé (72650)
Maisons à proximité
Maison neuve, 71 m²
Trangé (72650)
Trangé (72650)
Maison de 3 pièces
Maison neuve, 115 m²
Trangé (72650)
Trangé (72650)
Maison de 5 pièces
Maison neuve, 118 m²
Trangé (72650)
Trangé (72650)
Maison de 5 pièces
Maison neuve, 110 m²
Trangé (72650)
Trangé (72650)
Maison de 5 pièces
Maison neuve, 90 m²
Trangé (72650)
Trangé (72650)
Maison de 4 pièces
Maison neuve, 99 m²
Trangé (72650)
Trangé (72650)
Maison de 5 pièces
Programmes à proximité
Néméa Le Mans Université
Le Mans (72000)
Le Mans (72000)
Appartements de 1 pièce
Livraison 2ème trimestre 2027
HARMONIE
Le Mans (72000)
Le Mans (72000)
Appartement de 4 pièces
Livraison 2ème trimestre 2026
LES BOSQUETS TR.1
Le Mans (72000)
Le Mans (72000)
Appartements de 1 à 4 pièces
Livraison 4ème trimestre 2027
Epsilon
Le Mans (72000)
Le Mans (72000)
Appartements de 1 à 3 pièces
Livraison 4ème trimestre 2027
Contacter MAINE CONSTRUCTION pour recevoir plus d'informations
Remplissez le formulaire ci-dessous, vos informations sont transmises directement au constructeur qui vous contactera par email ou par téléphone afin de traiter votre demande. En savoir plus.