Maison neuve, 230 m² - Toutainville (27500)
408 000 €
Toutainville (27500)
Proposée par EXTRACO - CONSTRUCTION | RÉNOVATION – 8 pièces - 4 chambres - terrain 1 825 m²
|
|
| EXTRACO - Construction | Rénovation |
- Demande d'information
- Prendre rendez-vous
MAISON À CONSTRUIRE : ceci est une annonce d'une maison neuve à construire.
Maison F8 (230 m²) à vendre à Toutainville
PROCHE DU HAVRE - MAISON 8 PIÈCES NEUVE
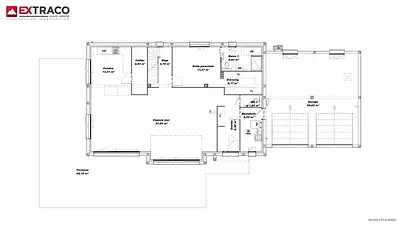
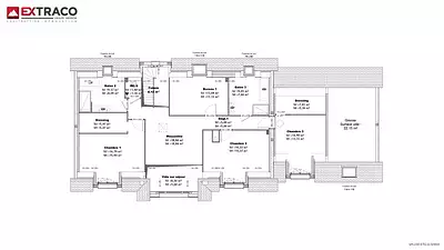
En vente à 11 km de la Manche et à quelques kilomètres du Havre, nous sommes heureux de vous présenter à Toutainville (27500), cette maison de 8 pièces de 230 m² et de 1 825 m² de terrain.
Il s'agit d'une maison de 2 niveaux. Elle est composée de quatre chambres, d'une cuisine et de trois salles de bains. Cette maison est neuve.
Il y a l'École Primaire Gaston Boudet à moins de 10 minutes à pied. L'autoroute A13 est accessible à 7 km. On trouve deux boulangeries dans les environs.
Elle est à vendre pour la somme de 408 000 €.
.
Référence : JP2332416_3
Terrain proposé par un partenaire foncier selon disponibilités et autorisation de publicité au prix de 67 525 €. Hors droit d'enregistrement et frais de notaire. Maison proposée, avec un contrat de construction de maison individuelle, dans le cadre de la loi du 19/12/1990, au prix de 340 475 € (Hors branchements et raccordements, papiers peints, peintures, revêtement de sol dans les chambres, qui sont chiffrés dans les travaux qui restent à charge du client. Tarif modifiable sans préavis). Étiquette énergie : A. Différents modèles disponibles pour ce terrain. Assurances et garanties du constructeur comprises (RC professionnelle, décennale, dommage ouvrage).
Les informations sur les risques auxquels ce bien est exposé sont disponibles sur le site Géorisques : www.georisques.gouv.fr
PROCHE DU HAVRE - MAISON 8 PIÈCES NEUVE
En vente à 11 km de la Manche et à quelques kilomètres du Havre, nous sommes heureux de vous présenter à Toutainville (27500), cette maison de 8 pièces de 230 m² et de 1 825 m² de terrain.
Il s'agit d'une maison de 2 niveaux. Elle est composée de quatre chambres, d'une cuisine et de trois salles de bains. Cette maison est neuve.
Il y a l'École Primaire Gaston Boudet à moins de 10 minutes à pied. L'autoroute A13 est accessible à 7 km. On trouve deux boulangeries dans les environs.
Elle est à vendre pour la somme de 408 000 €.
.
Référence : JP2332416_3
Terrain proposé par un partenaire foncier selon disponibilités et autorisation de publicité au prix de 67 525 €. Hors droit d'enregistrement et frais de notaire. Maison proposée, avec un contrat de construction de maison individuelle, dans le cadre de la loi du 19/12/1990, au prix de 340 475 € (Hors branchements et raccordements, papiers peints, peintures, revêtement de sol dans les chambres, qui sont chiffrés dans les travaux qui restent à charge du client. Tarif modifiable sans préavis). Étiquette énergie : A. Différents modèles disponibles pour ce terrain. Assurances et garanties du constructeur comprises (RC professionnelle, décennale, dommage ouvrage).
Les informations sur les risques auxquels ce bien est exposé sont disponibles sur le site Géorisques : www.georisques.gouv.fr
- Prix
-
- Prix total : 408 000 €
- Prix du modèle de maison : 340 475 €
- Prix du terrain : 67 525 €
- Terrain
-
- Surface : 1 825 m²
- Maison
-
- Surface : 230 m²
- Pièces : 8
- Chambres : 4
- Garage : 1
- Être rappelé par un conseiller
- Demander plus d’infos
- Demande d'information
Toutainville (27500)
Maisons à proximité
Maison neuve, 82 m²
Toutainville (27500)
Toutainville (27500)
Maison de 5 pièces
Maison neuve, 114 m²
Toutainville (27500)
Toutainville (27500)
Maison de 6 pièces
Maison neuve, 95,3 m²
Toutainville (27500)
Toutainville (27500)
Maison de 4 pièces
Maison neuve, 98 m²
Toutainville (27500)
Toutainville (27500)
Maison de 6 pièces
Maison neuve, 182 m²
Toutainville (27500)
Toutainville (27500)
Maison de 3 pièces
Maison neuve, 121,31 m²
Toutainville (27500)
Toutainville (27500)
Maison de 5 pièces
Programmes à proximité
Le Coteau de Grâce
La Rivière-Saint-Sauveur (14600)
La Rivière-Saint-Sauveur (14600)
Appartements de 2 à 3 pièces
Livraison 3ème trimestre 2027
Sémaphore
Honfleur (14600)
Honfleur (14600)
Appartements de 3 pièces et maison de 4 pièces
Livraison 4ème trimestre 2024
Proche de Honfleur !
Equemauville (14600)
Equemauville (14600)
Appartements de 1 à 3 pièces et maisons de 4 à 5 pièces
Livraison 4ème trimestre 2027
Contacter EXTRACO - CONSTRUCTION | RÉNOVATION pour recevoir plus d'informations
Remplissez le formulaire ci-dessous, vos informations sont transmises directement au constructeur qui vous contactera par email ou par téléphone afin de traiter votre demande. En savoir plus.