Maison neuve, 71 m² - Tourny (27510)

228 950 €
Tourny (27510)

Proposée par EXTRACO - CONSTRUCTION | RÉNOVATION – 4 pièces - 2 chambres - terrain 940 m²

EXTRACO - Construction | Rénovation
EXTRACO - Construction | Rénovation
  • Demande d'information
MAISON À CONSTRUIRE : ceci est une annonce d'une maison neuve à construire.
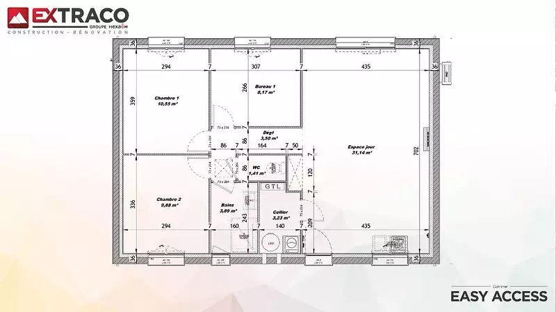
VENTE : maison F4 (71 m²) à Vexin-Sur-Epte
EMPLACEMENT PRIVILÉGIÉ - MAISON 4 PIÈCES NEUVE
En vente à deux pas de Mantes-la-Jolie, Extraco Construction Rénovation Les Andelys vous propose cette maison de 4 pièces de plain-pied de 71 m², bénéficiant d'un emplacement privilégié dans Vexin-Sur-Epte (27510).
Son intérieur offre deux chambres, une cuisine et une salle de bains. Cette maison est neuve.
Le terrain de la propriété est de 940 m².
Cette maison se situe dans un secteur prisé. Des écoles (de la maternelle au lycée) se trouvent à moins de 10 minutes en voiture, tout comme deux structures d'accueil pour les enfants en bas âge à moins de 10 minutes à pied. Il y a des tennis, des commerces, des boulangeries, trois supermarchés, des boucheries-charcuteries et quatre épiceries à proximité.
Elle est proposée à l'achat pour 228 950 €.
.
Référence : CG2396815_2
Terrain proposé par un partenaire foncier selon disponibilités et autorisation de publicité au prix de 81 750 €. Hors droit d'enregistrement et frais de notaire. Terrain + Maison proposés au prix de 147 200 € (Hors branchements et raccordements, papiers peints, peintures, revêtement de sol dans les chambres. Tarif modifiable sans préavis). Etiquette énergie : A. Différents modèles disponibles pour ce terrain.

Les informations sur les risques auxquels ce bien est exposé sont disponibles sur le site Géorisques : www.georisques.gouv.fr


Prix
  • Prix total : 228 950 €
  • Prix du modèle de maison : 147 200 €
  • Prix du terrain : 81 750 €

Terrain
  • Surface : 940 m²

Maison
  • Surface : 71 m²
  • Pièces : 4
  • Chambres : 2

  • Être rappelé par un conseiller
  • Demander plus d’infos
  • Demande d'information
Tourny (27510)

Programmes à proximité

LE 25 BULLY
LE 25 BULLY
Vernon (27200)

Appartements de 1 à 2 pièces
Livraison 3ème trimestre 2027

Le Jardin des Officiers
Le Jardin des Officiers
Vernon (27200)

Appartements de 2 à 4 pièces
Livraison 2ème trimestre 2026

LES JARDINS DE GAMILLY
LES JARDINS DE GAMILLY
Vernon (27200)

Appartement de 2 pièces
Livraison 2ème trimestre 2026

DUC DE SULLY
DUC DE SULLY
Rosny-sur-Seine (78710)

Appartements de 1 à 5 pièces
Livraison 3ème trimestre 2027

L'AVANT SEINE
L'AVANT SEINE
Mantes-la-Jolie (78200)

Appartements de 2 à 5 pièces
Livraison 2ème trimestre 2028

" Le 25 "
" Le 25 "
Mantes-la-Jolie (78200)

Appartements de 3 pièces
Livraison 1er trimestre 2026

Contacter EXTRACO - CONSTRUCTION | RÉNOVATION pour recevoir plus d'informations

Remplissez le formulaire ci-dessous, vos informations sont transmises directement au constructeur qui vous contactera par email ou par téléphone afin de traiter votre demande. En savoir plus.

Voir tous nos programmes immobiliers neufs à Tourny