Maison neuve, 85 m² - Toulon-sur-Arroux (71320)
161 365 €
Toulon-sur-Arroux (71320)
Proposée par MAISON ET JARDIN – 4 pièces - 3 chambres - terrain 1 095 m²
|
|
| Maison et Jardin |
- Demande d'information
- Prendre rendez-vous
MAISON À CONSTRUIRE : ceci est une annonce d'une maison neuve à construire.
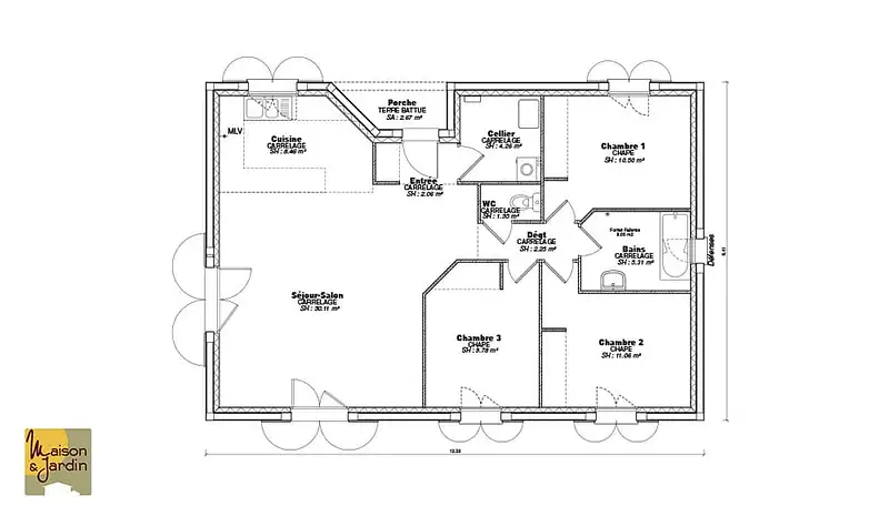
Nous vous proposons cette maison neuve, baptisée Lucia, un modèle de résidence qui allie avec brio fonctionnalité et esthétique, tout en répondant aux attentes contemporaines en matière d'habitat. Avec sa surface généreuse de 85 m², cette maison en L est conçue pour maximiser l'espace de vie et offrir un confort optimal à ses résidents.
La Lucia se distingue par sa toiture élégante, disponible en versions 4 ou 6 versants, qui ajoute un cachet indéniable à l'architecture générale. Son agencement en forme de L permet non seulement une séparation naturelle entre l'espace jour et l'espace nuit, mais aussi l'intégration harmonieuse d'un garage intégré, répondant ainsi à la demande populaire pour des maisons alliant esthétique et praticité.
Cette maison se compose de 4 pièces lumineuses et bien agencées, incluant 3 chambres confortables, offrant ainsi un cadre de vie idéal pour les jeunes couples ou les petites familles à la recherche de leur nid douillet. La conception modulable de la Lucia permet une personnalisation selon les besoins et les envies de chacun, assurant que chaque maison soit aussi unique que ses habitants.
L'un des atouts majeurs de la Lucia réside dans son engagement envers la durabilité et l'efficacité énergétique. Conforme à la norme RE2020, cette maison neuve est basse consommation, garantissant ainsi des économies significatives sur les factures d'énergie tout en contribuant à la protection de l'environnement. Ce critère, de plus en plus recherché par les acquéreurs conscients de leur empreinte écologique, fait de la Lucia un choix judicieux pour ceux qui souhaitent allier confort de vie et respect de la planète.
En choisissant la maison Lucia, vous optez pour un habitat de qualité, pensé pour répondre aux exigences de la vie moderne tout en offrant un cadre chaleureux et accueillant. Ne manquez pas l'opportunité de construire la maison de vos rêves, une maison qui allie qualité, prix attractif et performances énergétiques de premier plan. La L
Référence : 13914
Les informations sur les risques auxquels ce bien est exposé sont disponibles sur le site Géorisques : www.georisques.gouv.fr
La Lucia se distingue par sa toiture élégante, disponible en versions 4 ou 6 versants, qui ajoute un cachet indéniable à l'architecture générale. Son agencement en forme de L permet non seulement une séparation naturelle entre l'espace jour et l'espace nuit, mais aussi l'intégration harmonieuse d'un garage intégré, répondant ainsi à la demande populaire pour des maisons alliant esthétique et praticité.
Cette maison se compose de 4 pièces lumineuses et bien agencées, incluant 3 chambres confortables, offrant ainsi un cadre de vie idéal pour les jeunes couples ou les petites familles à la recherche de leur nid douillet. La conception modulable de la Lucia permet une personnalisation selon les besoins et les envies de chacun, assurant que chaque maison soit aussi unique que ses habitants.
L'un des atouts majeurs de la Lucia réside dans son engagement envers la durabilité et l'efficacité énergétique. Conforme à la norme RE2020, cette maison neuve est basse consommation, garantissant ainsi des économies significatives sur les factures d'énergie tout en contribuant à la protection de l'environnement. Ce critère, de plus en plus recherché par les acquéreurs conscients de leur empreinte écologique, fait de la Lucia un choix judicieux pour ceux qui souhaitent allier confort de vie et respect de la planète.
En choisissant la maison Lucia, vous optez pour un habitat de qualité, pensé pour répondre aux exigences de la vie moderne tout en offrant un cadre chaleureux et accueillant. Ne manquez pas l'opportunité de construire la maison de vos rêves, une maison qui allie qualité, prix attractif et performances énergétiques de premier plan. La L
Référence : 13914
Les informations sur les risques auxquels ce bien est exposé sont disponibles sur le site Géorisques : www.georisques.gouv.fr
- Prix
-
- Prix total : 161 365 €
- Prix du modèle de maison : 147 600 €
- Prix du terrain : 13 765 €
- Terrain
-
- Surface : 1 095 m²
- Maison
-
- Surface : 85 m²
- Pièces : 4
- Chambres : 3
- Être rappelé par un conseiller
- Demander plus d’infos
- Demande d'information
Toulon-sur-Arroux (71320)
Maisons à proximité
Maison neuve, 80 m²
Toulon-sur-Arroux (71320)
Toulon-sur-Arroux (71320)
Maison de 4 pièces
Maison neuve, 88 m²
Perrecy-les-Forges (71420)
Perrecy-les-Forges (71420)
Maison de 4 pièces
Maison neuve, 91 m²
Perrecy-les-Forges (71420)
Perrecy-les-Forges (71420)
Maison de 5 pièces
Maison neuve, 114 m²
Sanvignes-les-Mines (71410)
Sanvignes-les-Mines (71410)
Maison de 4 pièces
Maison neuve, 99 m²
Luzy (58170)
Luzy (58170)
Maison de 5 pièces
Maison neuve, 85 m²
Palinges (71430)
Palinges (71430)
Maison de 4 pièces
Programmes à proximité
Contacter MAISON ET JARDIN pour recevoir plus d'informations
Remplissez le formulaire ci-dessous, vos informations sont transmises directement au constructeur qui vous contactera par email ou par téléphone afin de traiter votre demande. En savoir plus.
Voir tous nos programmes immobiliers neufs à Toulon-sur-Arroux