Maison neuve, 70 m² - Thoiry (78770)

319 000 €
Thoiry (78770)

Proposée par MAISONS EVOLUTION – 5 pièces - 3 chambres - terrain 405 m²

MAISONS EVOLUTION
MAISONS EVOLUTION
  • Demande d'information
MAISON À CONSTRUIRE : ceci est une annonce d'une maison neuve à construire.
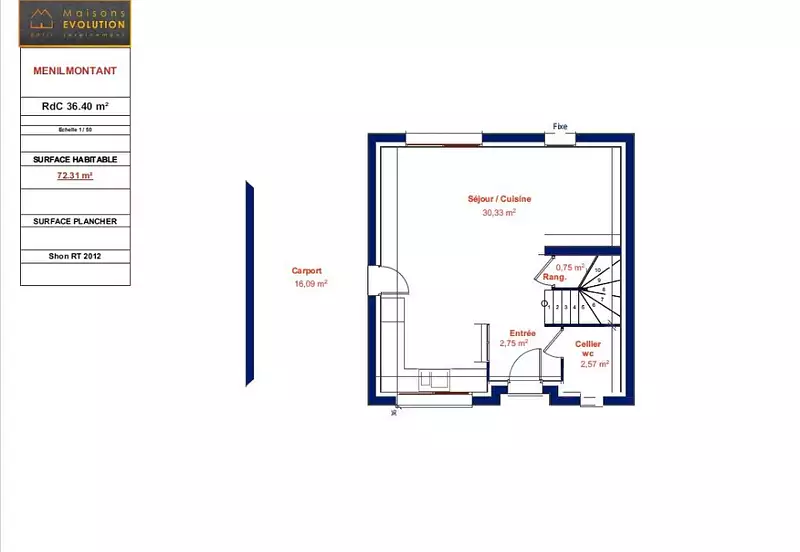
Maisons Evolution vous présente le modèle Ménilmontant.
Cette maison R+1 vous est proposée sur une surface habitable de 72,31 m².
Le rez-de-chaussée se compose d'une entrée desservant un cellier/toilette, un séjour/cuisine de plus de 30 m² sans oublier le carport attenant au séjour.
A l'étage, trois belles chambres et une salle de bain.
Annonce proposée par un Agent Commercial Partenaire.
Référence : JP2309455_2
Terrain proposé par un partenaire foncier selon disponibilités et autorisation de publicité au prix de 145 000 €. Hors droit d'enregistrement et frais de notaire. Maison proposée, avec un contrat de construction de maison individuelle, dans le cadre de la loi du 19/12/1990, au prix de 174 000 € (Hors branchements et raccordements, papiers peints, peintures, revêtement de sol dans les chambres, qui sont chiffrés dans les travaux qui restent à charge du client. Tarif modifiable sans préavis). Étiquette énergie : A. Différents modèles disponibles pour ce terrain. Assurances et garanties du constructeur comprises (RC professionnelle, décennale, dommage ouvrage).

Les informations sur les risques auxquels ce bien est exposé sont disponibles sur le site Géorisques : www.georisques.gouv.fr


Prix
  • Prix total : 319 000 €
  • Prix du modèle de maison : 174 000 €
  • Prix du terrain : 145 000 €

Terrain
  • Surface : 405 m²

Maison
  • Surface : 70 m²
  • Pièces : 5
  • Chambres : 3
  • Garage : 1

  • Être rappelé par un conseiller
  • Demander plus d’infos
  • Demande d'information
Thoiry (78770)

Maisons à proximité

Programmes à proximité

Villa Louis-Alexandre
Villa Louis-Alexandre
Neauphle-le-Château (78640)

Appartements de 2 à 4 pièces et maisons de 4 à 5 pièces
Livraison 1er trimestre 2028

LES ALLUETS-LE-ROI - LE CLOS DES ALLUETS
LES ALLUETS-LE-ROI - LE CLOS DES ALLUETS
Les Alluets-le-Roi (78580)

Appartements de 3 à 5 pièces
Livraison 4ème trimestre 2026

EMIN & SENS
EMIN & SENS
Thiverval-Grignon (78850)

Appartements de 2 à 4 pièces
Livraison 4ème trimestre 2028

Les jardins d'Avignou
Les jardins d'Avignou
Plaisir (78370)

Appartements de 2 à 4 pièces
Livraison 4ème trimestre 2027

PIETRA
PIETRA
Plaisir (78370)

Appartements de 2 à 3 pièces
Livraison 2ème trimestre 2026

Le Clos du Buisson
Le Clos du Buisson
Plaisir (78370)

Appartements de 3 pièces
Livraison 4ème trimestre 2025

Contacter MAISONS EVOLUTION pour recevoir plus d'informations

Remplissez le formulaire ci-dessous, vos informations sont transmises directement au constructeur qui vous contactera par email ou par téléphone afin de traiter votre demande. En savoir plus.

Voir tous nos programmes immobiliers neufs à Thoiry