Maison neuve, 106 m² - Terrasson-Lavilledieu (24120)
370 000 €
Terrasson-Lavilledieu (24120)
Proposée par ALPHA CONSTRUCTIONS – 3 pièces - 2 chambres - terrain 2 600 m²
|
|
| Alpha Constructions |
- Demande d'information
- Prendre rendez-vous
MAISON À CONSTRUIRE : ceci est une annonce d'une maison neuve à construire.
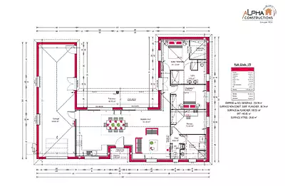
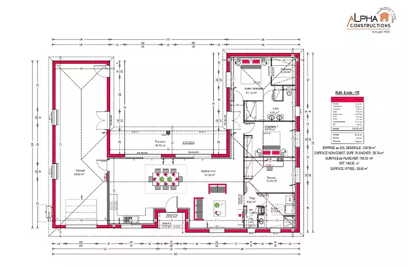
Projet de construction à Le Vigan (46) - Une maison moderne aux volumes généreux
Découvrez ce superbe projet de construction situé sur la charmante commune du Vigan, proche de Gourdon dans le Lot.
Pensée dans un esprit design et contemporain, cette maison en forme de H séduit d'emblée par son architecture élégante et ses beaux volumes.
Dès l'entrée, un porche rentrant et couvert donne le ton : modernité, luminosité et confort.
L'espace salon-séjour-cuisine, baigné de lumière grâce à deux immenses baies vitrées, s'ouvre sur une grande terrasse couverte, idéale pour profiter des beaux jours en toute saison.
Côté nuit, la suite parentale offre un véritable cocon : dressing, salle de bain avec douche à l'italienne, double vasque et toilettes privatifs.
Une deuxième chambre, plus traditionnelle dans son agencement mais tout aussi confortable, bénéficie d'un placard aménagé.
Un bureau complète parfaitement l'ensemble, idéal pour le télétravail ou une chambre d'appoint.
La maison dispose également d'une seconde salle de bain, équipée d'une vasque et d'une douche à l'italienne, pour encore plus de praticité au quotidien.
La 2nd aile est composée d'un très grand garage ou vous pouvez la travailler un chambre d'hôte sans soucis.
Ce projet combine esthétique, fonctionnalité et confort de vie, dans un cadre paisible à côté des plus grands sites touristique de la région comme Sarlat ou Rocamadour. Référence : MM2332361
Terrain proposé par un partenaire foncier selon disponibilité dans le cadre d’un projet de construction avec Alpha Constructions. Les descriptions, photographies, surfaces et prix illustrant l’annonce sont fournies à titre indicatif et ne sont pas contractuels. Non soumis au DPE. Différents modèles disponibles.
Les informations sur les risques auxquels ce bien est exposé sont disponibles sur le site Géorisques : www.georisques.gouv.fr
Découvrez ce superbe projet de construction situé sur la charmante commune du Vigan, proche de Gourdon dans le Lot.
Pensée dans un esprit design et contemporain, cette maison en forme de H séduit d'emblée par son architecture élégante et ses beaux volumes.
Dès l'entrée, un porche rentrant et couvert donne le ton : modernité, luminosité et confort.
L'espace salon-séjour-cuisine, baigné de lumière grâce à deux immenses baies vitrées, s'ouvre sur une grande terrasse couverte, idéale pour profiter des beaux jours en toute saison.
Côté nuit, la suite parentale offre un véritable cocon : dressing, salle de bain avec douche à l'italienne, double vasque et toilettes privatifs.
Une deuxième chambre, plus traditionnelle dans son agencement mais tout aussi confortable, bénéficie d'un placard aménagé.
Un bureau complète parfaitement l'ensemble, idéal pour le télétravail ou une chambre d'appoint.
La maison dispose également d'une seconde salle de bain, équipée d'une vasque et d'une douche à l'italienne, pour encore plus de praticité au quotidien.
La 2nd aile est composée d'un très grand garage ou vous pouvez la travailler un chambre d'hôte sans soucis.
Ce projet combine esthétique, fonctionnalité et confort de vie, dans un cadre paisible à côté des plus grands sites touristique de la région comme Sarlat ou Rocamadour. Référence : MM2332361
Terrain proposé par un partenaire foncier selon disponibilité dans le cadre d’un projet de construction avec Alpha Constructions. Les descriptions, photographies, surfaces et prix illustrant l’annonce sont fournies à titre indicatif et ne sont pas contractuels. Non soumis au DPE. Différents modèles disponibles.
Les informations sur les risques auxquels ce bien est exposé sont disponibles sur le site Géorisques : www.georisques.gouv.fr
- Prix
-
- Prix total : 370 000 €
- Prix du modèle de maison : N.C.
- Prix du terrain : N.C.
- Terrain
-
- Surface : 2 600 m²
- Maison
-
- Surface : 106 m²
- Pièces : 3
- Chambres : 2
- Garage : 1
- Être rappelé par un conseiller
- Demander plus d’infos
- Demande d'information
Terrasson-Lavilledieu (24120)
Maisons à proximité
Maison neuve, 110 m²
Terrasson-Lavilledieu (24120)
Terrasson-Lavilledieu (24120)
Maison de 5 pièces
Maison neuve, 14 m²
Terrasson-Lavilledieu (24120)
Terrasson-Lavilledieu (24120)
Maison de 3 pièces
Maison neuve, 138 m²
Pazayac (24120)
Pazayac (24120)
Maison de 4 pièces
Maison neuve, 120 m²
Pazayac (24120)
Pazayac (24120)
Maison de 4 pièces
Maison neuve, 144 m²
Pazayac (24120)
Pazayac (24120)
Maison de 4 pièces
Maison neuve, 125 m²
Mansac (19520)
Mansac (19520)
Maison de 4 pièces
Programmes à proximité
RÉSIDENCE PARENTH'EZE
Brive-la-Gaillarde (19100)
Brive-la-Gaillarde (19100)
Appartements de 2 pièces
Livraison 4ème trimestre 2026
Gen'Eze
Brive-la-Gaillarde (19100)
Brive-la-Gaillarde (19100)
Appartements de 2 à 4 pièces
Livraison 1er trimestre 2028
LE CLOS MERIDIEN
Brive-la-Gaillarde (19100)
Brive-la-Gaillarde (19100)
Appartements de 2 à 5 pièces
Livraison 2ème trimestre 2027
Contacter ALPHA CONSTRUCTIONS pour recevoir plus d'informations
Remplissez le formulaire ci-dessous, vos informations sont transmises directement au constructeur qui vous contactera par email ou par téléphone afin de traiter votre demande. En savoir plus.
Voir tous nos programmes immobiliers neufs à Terrasson-Lavilledieu