Maison neuve, 78 m² - Teloché (72220)
195 000 €
Teloché (72220)
Proposée par MAINE CONSTRUCTION – 5 pièces - 4 chambres - terrain 368 m²
|
|
| Maine Construction |
- Demande d'information
- Prendre rendez-vous
MAISON À CONSTRUIRE : ceci est une annonce d'une maison neuve à construire.
Teloché : maison de 5 pièces (78 m²) à vendre
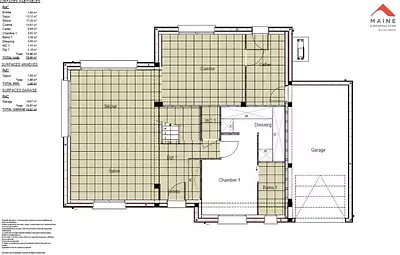
Idéalement située - À Teloché (72220), maison neuve en vente de 5 pièces, 2 niveaux, 78 m² sur 368 m² de terrain. Elle offre quatre chambres, une cuisine et deux salles de bains.
À dix minutes : gares (Laigné-Saint-Gervais, Écommoy et Arnage), établissements scolaires, tennis, bibliothèque, boulangeries, commerces, boucherie-charcuterie et supérette. Autoroute A28 à 8 km. Le Mans à 12 km.
Le prix de vente de cette maison de 5 pièces est de 195 000 €.
N'hésitez pas à prendre contact avec François HOUDAYER (06-23-38-26-90) pour toute question sur la maison ou sur les démarches à suivre. Maine Construction Le Mans vous accompagne dans tous vos projets immobiliers et à toutes les étapes de votre projet.
Référence : FH2329719_9
Terrain proposé par un partenaire foncier selon disponibilités et autorisation de publicité au prix de 44 000 €. Hors droit d'enregistrement et frais de notaire. Terrain + Maison proposés au prix de 195 000 € (Hors branchements et raccordements, papiers peints, peintures, revêtement de sol dans les chambres. Tarif modifiable sans préavis). Etiquette énergie : A. Différents modèles disponibles pour ce terrain. Assurances et garanties du constructeur (RC professionnelle, décennale, dommage ouvrage, garantie de remboursement de l'acompte, livraison à prix et délai convenu) : https://www.maine-construction.fr/mentions-legales/. HEXAOM Services est enregistré auprès de l'ORIAS en tant que Courtier en financement, Niveau 1, sous le numéro 14001345.
Les informations sur les risques auxquels ce bien est exposé sont disponibles sur le site Géorisques : www.georisques.gouv.fr
Idéalement située - À Teloché (72220), maison neuve en vente de 5 pièces, 2 niveaux, 78 m² sur 368 m² de terrain. Elle offre quatre chambres, une cuisine et deux salles de bains.
À dix minutes : gares (Laigné-Saint-Gervais, Écommoy et Arnage), établissements scolaires, tennis, bibliothèque, boulangeries, commerces, boucherie-charcuterie et supérette. Autoroute A28 à 8 km. Le Mans à 12 km.
Le prix de vente de cette maison de 5 pièces est de 195 000 €.
N'hésitez pas à prendre contact avec François HOUDAYER (06-23-38-26-90) pour toute question sur la maison ou sur les démarches à suivre. Maine Construction Le Mans vous accompagne dans tous vos projets immobiliers et à toutes les étapes de votre projet.
Référence : FH2329719_9
Terrain proposé par un partenaire foncier selon disponibilités et autorisation de publicité au prix de 44 000 €. Hors droit d'enregistrement et frais de notaire. Terrain + Maison proposés au prix de 195 000 € (Hors branchements et raccordements, papiers peints, peintures, revêtement de sol dans les chambres. Tarif modifiable sans préavis). Etiquette énergie : A. Différents modèles disponibles pour ce terrain. Assurances et garanties du constructeur (RC professionnelle, décennale, dommage ouvrage, garantie de remboursement de l'acompte, livraison à prix et délai convenu) : https://www.maine-construction.fr/mentions-legales/. HEXAOM Services est enregistré auprès de l'ORIAS en tant que Courtier en financement, Niveau 1, sous le numéro 14001345.
Les informations sur les risques auxquels ce bien est exposé sont disponibles sur le site Géorisques : www.georisques.gouv.fr
- Prix
-
- Prix total : 195 000 €
- Prix du modèle de maison : 151 000 €
- Prix du terrain : 44 000 €
- Terrain
-
- Surface : 368 m²
- Maison
-
- Surface : 78 m²
- Pièces : 5
- Chambres : 4
- Garage : 1
- Être rappelé par un conseiller
- Demander plus d’infos
- Demande d'information
Teloché (72220)
Maisons à proximité
Maison neuve, 114 m²
Teloché (72220)
Teloché (72220)
Maison de 6 pièces
Maison neuve, 73 m²
Teloché (72220)
Teloché (72220)
Maison de 4 pièces
Maison neuve, 120 m²
Teloché (72220)
Teloché (72220)
Maison de 5 pièces
Maison neuve, 71 m²
Teloché (72220)
Teloché (72220)
Maison de 3 pièces
Maison neuve, 84 m²
Teloché (72220)
Teloché (72220)
Maison de 4 pièces
Maison neuve, 85 m²
Teloché (72220)
Teloché (72220)
Maison de 5 pièces
Programmes à proximité
Histoire & Patrimoine Une adresse de caractère au cœur du Vieux-Mans
Le Mans (72000)
Le Mans (72000)
Appartement de 2 pièces
Livraison 3ème trimestre 2025
Néméa Le Mans Université
Le Mans (72000)
Le Mans (72000)
Appartements de 1 pièce
Livraison 2ème trimestre 2027
LES BOSQUETS TR.1
Le Mans (72000)
Le Mans (72000)
Appartements de 1 à 4 pièces
Livraison 4ème trimestre 2027
Epsilon
Le Mans (72000)
Le Mans (72000)
Appartements de 1 à 3 pièces
Livraison 4ème trimestre 2027
Contacter MAINE CONSTRUCTION pour recevoir plus d'informations
Remplissez le formulaire ci-dessous, vos informations sont transmises directement au constructeur qui vous contactera par email ou par téléphone afin de traiter votre demande. En savoir plus.