Maison neuve, 85 m² - Surgères (17700)
208 559 €
Surgères (17700)
Proposée par MAISONS PRIVAT AGENCE DE LA ROCHELLE (17) – 4 pièces - 3 chambres - terrain 351 m²
|
|
| Maisons Privat Agence de La Rochelle (17) |
- Demande d'information
- Prendre rendez-vous
MAISON À CONSTRUIRE : ceci est une annonce d'une maison neuve à construire.
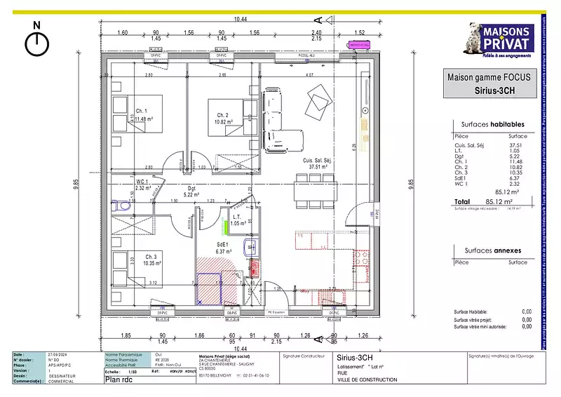
Sur ce terrain, nous vous proposons cette superbe maison de plain-pied au plan optimisé, pensée pour offrir confort et convivialité à toute la famille. Passé l’entrée, vous serez immédiatement séduit par une vaste pièce de vie baignée de lumière, où se côtoient salon, salle à manger et cuisine ouverte, idéale pour partager des moments chaleureux au quotidien.
Côté nuit, trois chambres spacieuses et lumineuses vous attendent, chacune permettant d’installer rangements et bureau selon vos envies. Une salle de bain moderne, un WC complètent cet agencement astucieux, facilitant l’organisation de la vie de famille.
Atout pratique : Un garage attenant de près de 21 m² permet de stationner votre véhicule en toute sécurité, tout en laissant de la place pour un atelier ou du rangement supplémentaire.
Moderne, fonctionnelle et pensée pour un confort optimal, cette maison saura répondre à toutes vos attentes. N’attendez plus pour venir la découvrir et laissez-vous séduire par son agencement harmonieux !
Référence : 62245
Les informations sur les risques auxquels ce bien est exposé sont disponibles sur le site Géorisques : www.georisques.gouv.fr
Côté nuit, trois chambres spacieuses et lumineuses vous attendent, chacune permettant d’installer rangements et bureau selon vos envies. Une salle de bain moderne, un WC complètent cet agencement astucieux, facilitant l’organisation de la vie de famille.
Atout pratique : Un garage attenant de près de 21 m² permet de stationner votre véhicule en toute sécurité, tout en laissant de la place pour un atelier ou du rangement supplémentaire.
Moderne, fonctionnelle et pensée pour un confort optimal, cette maison saura répondre à toutes vos attentes. N’attendez plus pour venir la découvrir et laissez-vous séduire par son agencement harmonieux !
Référence : 62245
Les informations sur les risques auxquels ce bien est exposé sont disponibles sur le site Géorisques : www.georisques.gouv.fr
- Prix
-
- Prix total : 208 559 €
- Prix du modèle de maison : 151 919 €
- Prix du terrain : 56 640 €
- Terrain
-
- Surface : 351 m²
- Maison
-
- Surface : 85 m²
- Pièces : 4
- Chambres : 3
- Être rappelé par un conseiller
- Demander plus d’infos
- Demande d'information
Surgères (17700)
Maisons à proximité
Maison neuve, 90 m²
Surgères (17700)
Surgères (17700)
Maison de 4 pièces
Maison neuve, 125 m²
Surgères (17700)
Surgères (17700)
Maison de 5 pièces
Maison neuve, 90 m²
Surgères (17700)
Surgères (17700)
Maison de 5 pièces
Maison neuve, 132 m²
Surgères (17700)
Surgères (17700)
Maison de 6 pièces
Maison neuve, 65 m²
Surgères (17700)
Surgères (17700)
Maison de 3 pièces
Maison neuve, 110 m²
Surgères (17700)
Surgères (17700)
Maison de 4 pièces
Programmes à proximité
Le Clos du Chemin Vert
La Jarrie (17220)
La Jarrie (17220)
Appartements de 3 à 5 pièces et maisons de 5 à 6 pièces et locaux commerciaux
Livraison 4ème trimestre 2026
Contacter MAISONS PRIVAT AGENCE DE LA ROCHELLE (17) pour recevoir plus d'informations
Remplissez le formulaire ci-dessous, vos informations sont transmises directement au constructeur qui vous contactera par email ou par téléphone afin de traiter votre demande. En savoir plus.