Maison neuve, 108 m² - Soye-en-Septaine (18340)
175 548 €
Soye-en-Septaine (18340)
Proposée par STYL HABITAT AGENCE DE BOURGES (18) – 5 pièces - 4 chambres - terrain 1 063 m²
|
|
| Styl habitat Agence de Bourges (18) |
- Demande d'information
- Prendre rendez-vous
MAISON À CONSTRUIRE : ceci est une annonce d'une maison neuve à construire.
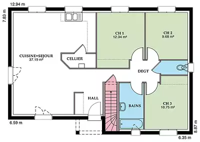
Nous vous proposons cette maison neuve, baptisée ""Perrière"", un modèle de construction qui allie élégance et performance énergétique. Avec une surface habitable de 108 m², cette demeure est conçue pour offrir confort et bien-être à ses occupants. Elle se compose de 4 chambres spacieuses et lumineuses, réparties dans un agencement de 4 pièces pensé pour optimiser l'espace et la fonctionnalité.
La maison Perrière se distingue par son architecture moderne, disponible en versions à 2 ou 4 pans, permettant ainsi de s'adapter à vos préférences esthétiques tout en garantissant une intégration harmonieuse dans son environnement. Chaque détail a été soigneusement étudié pour offrir un cadre de vie exceptionnel, depuis la conception des espaces de vie jusqu'au choix des matériaux de construction de haute qualité.
Ce qui rend la maison Perrière particulièrement attractive, c'est son engagement envers la durabilité et l'efficacité énergétique. Conforme à la réglementation environnementale RE2020, cette maison neuve est classée basse consommation. Elle est équipée de technologies avancées en matière d'isolation, de chauffage et de ventilation, garantissant ainsi des économies d'énergie significatives tout au long de l'année. Vivre dans la maison Perrière, c'est faire le choix d'un habitat respectueux de l'environnement, tout en bénéficiant d'un confort inégalé et de coûts d'exploitation réduits.
La maison Perrière représente l'opportunité idéale pour les familles à la recherche d'un foyer moderne, spacieux et éco-responsable. Elle offre non seulement un cadre de vie exceptionnel, mais aussi la tranquillité d'esprit grâce à sa construction conforme aux normes les plus exigeantes en matière d'efficacité énergétique et de durabilité.
N'attendez plus pour découvrir la maison Perrière, le choix parfait pour votre projet immobilier, alliant esthétique, confort et responsabilité environnementale.
Référence : 13343
Les informations sur les risques auxquels ce bien est exposé sont disponibles sur le site Géorisques : www.georisques.gouv.fr
La maison Perrière se distingue par son architecture moderne, disponible en versions à 2 ou 4 pans, permettant ainsi de s'adapter à vos préférences esthétiques tout en garantissant une intégration harmonieuse dans son environnement. Chaque détail a été soigneusement étudié pour offrir un cadre de vie exceptionnel, depuis la conception des espaces de vie jusqu'au choix des matériaux de construction de haute qualité.
Ce qui rend la maison Perrière particulièrement attractive, c'est son engagement envers la durabilité et l'efficacité énergétique. Conforme à la réglementation environnementale RE2020, cette maison neuve est classée basse consommation. Elle est équipée de technologies avancées en matière d'isolation, de chauffage et de ventilation, garantissant ainsi des économies d'énergie significatives tout au long de l'année. Vivre dans la maison Perrière, c'est faire le choix d'un habitat respectueux de l'environnement, tout en bénéficiant d'un confort inégalé et de coûts d'exploitation réduits.
La maison Perrière représente l'opportunité idéale pour les familles à la recherche d'un foyer moderne, spacieux et éco-responsable. Elle offre non seulement un cadre de vie exceptionnel, mais aussi la tranquillité d'esprit grâce à sa construction conforme aux normes les plus exigeantes en matière d'efficacité énergétique et de durabilité.
N'attendez plus pour découvrir la maison Perrière, le choix parfait pour votre projet immobilier, alliant esthétique, confort et responsabilité environnementale.
Référence : 13343
Les informations sur les risques auxquels ce bien est exposé sont disponibles sur le site Géorisques : www.georisques.gouv.fr
- Prix
-
- Prix total : 175 548 €
- Prix du modèle de maison : 146 648 €
- Prix du terrain : 28 900 €
- Terrain
-
- Surface : 1 063 m²
- Maison
-
- Surface : 108 m²
- Pièces : 5
- Chambres : 4
- Être rappelé par un conseiller
- Demander plus d’infos
- Demande d'information
Soye-en-Septaine (18340)
Maisons à proximité
Maison neuve, 100 m²
Soye-en-Septaine (18340)
Soye-en-Septaine (18340)
Maison de 3 pièces
Maison neuve, 90 m²
Soye-en-Septaine (18340)
Soye-en-Septaine (18340)
Maison de 5 pièces
Maison neuve, 180 m²
Soye-en-Septaine (18340)
Soye-en-Septaine (18340)
Maison de 6 pièces
Maison neuve, 85 m²
Soye-en-Septaine (18340)
Soye-en-Septaine (18340)
Maison de 4 pièces
Maison neuve, 100 m²
Soye-en-Septaine (18340)
Soye-en-Septaine (18340)
Maison de 4 pièces
Maison neuve, 90 m²
Saint-Just (18340)
Saint-Just (18340)
Maison de 5 pièces
Programmes à proximité
Le Clos d'Auron
Bourges (18000)
Bourges (18000)
Appartements de 2 à 3 pièces
Livraison 1er trimestre 2028
Dans un écrin historique à 8 min* du centre
Bourges (18000)
Bourges (18000)
Appartement de 2 pièces
Livraison 3ème trimestre 2026
Carré Voltaire
Bourges (18000)
Bourges (18000)
Appartements de 1 à 4 pièces
Livraison 1er trimestre 2028
Contacter STYL HABITAT AGENCE DE BOURGES (18) pour recevoir plus d'informations
Remplissez le formulaire ci-dessous, vos informations sont transmises directement au constructeur qui vous contactera par email ou par téléphone afin de traiter votre demande. En savoir plus.
Voir tous nos programmes immobiliers neufs à Soye-en-Septaine