Maison neuve, 133 m² - Soisy-sous-Montmorency (95230)

581 600 €
Soisy-sous-Montmorency (95230)

Proposée par MAISONS BALENCY – 6 pièces - 3 chambres - terrain 400 m²

MAISONS BALENCY
MAISONS BALENCY
  • Demande d'information
MAISON À CONSTRUIRE : ceci est une annonce d'une maison neuve à construire.
Soisy-sous-Montmorency : maison T6 (133 m²) en vente
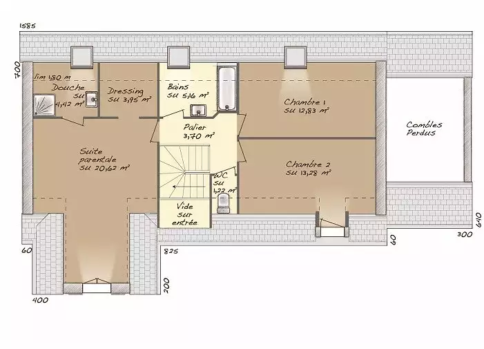
Paris à 15 min (Transilien H, Champ de Courses d'Enghien) - À découvrir à Soisy-sous-Montmorency (95230) : maison neuve 6 pièces à vendre. 2 niveaux, surface de 133 m² sur 400 m² de terrain. Son intérieur comporte trois chambres, une cuisine et deux salles de bains.
À proximité : RER (lignes C, D et B), gares, établissements scolaires, bibliothèque, tennis, bassin de natation, boulangeries, commerces, supermarchés, boucheries-charcuteries et supérette. Marché Centre-Ville le vendredi matin. Paris à 15 km.
Cette maison de 6 pièces est proposée à l'achat pour 581 600 €.
. Maisons Balency Coignières est là pour vous accompagner dans tous vos projets immobiliers.
Annonce proposée par un Agent Commercial Partenaire.
Référence : AD2302189_1
Terrain proposé par un partenaire foncier selon disponibilités et autorisation de publicité au prix de 270 000 €. Hors droit d'enregistrement et frais de notaire. Maison proposée, avec un contrat de construction de maison individuelle, dans le cadre de la loi du 19/12/1990, au prix de 311 600 € (Hors branchements et raccordements, papiers peints, peintures, revêtement de sol dans les chambres, qui sont chiffrés dans les travaux qui restent à charge du client. Tarif modifiable sans préavis). Étiquette énergie : A. Différents modèles disponibles pour ce terrain. Assurances et garanties du constructeur comprises (RC professionnelle, décennale, dommage ouvrage).

Les informations sur les risques auxquels ce bien est exposé sont disponibles sur le site Géorisques : www.georisques.gouv.fr


Prix
  • Prix total : 581 600 €
  • Prix du modèle de maison : 311 600 €
  • Prix du terrain : 270 000 €

Terrain
  • Surface : 400 m²

Maison
  • Surface : 133 m²
  • Pièces : 6
  • Chambres : 3
  • Garage : 1

  • Être rappelé par un conseiller
  • Demander plus d’infos
  • Demande d'information
Soisy-sous-Montmorency (95230)

Programmes à proximité

VILLA TERRANEA
VILLA TERRANEA
Eaubonne (95600)

Appartements de 2 à 4 pièces
Livraison 4ème trimestre 2027

144 Eiffel
144 Eiffel
Montmorency (95160)

Appartements de 2 à 4 pièces
Livraison 4ème trimestre 2027

LAC EN SCÈNE
LAC EN SCÈNE
Enghien-les-Bains (95880)

Appartement de 5 pièces
Livraison 2ème trimestre 2024

TELLEMENT ENGHIEN
TELLEMENT ENGHIEN
Enghien-les-Bains (95880)

Appartements de 2 à 5 pièces
Livraison 1er trimestre 2028

L'Observatoire
L'Observatoire
Deuil-la-Barre (95170)

Appartements de 1 à 4 pièces
Livraison 2ème trimestre 2026

Les Jardins d'Ormesson
Les Jardins d'Ormesson
Deuil-la-Barre (95170)

Appartements de 1 à 4 pièces
Livraison 1er trimestre 2027

Contacter MAISONS BALENCY pour recevoir plus d'informations

Remplissez le formulaire ci-dessous, vos informations sont transmises directement au constructeur qui vous contactera par email ou par téléphone afin de traiter votre demande. En savoir plus.

Voir tous nos programmes immobiliers neufs à Soisy-sous-Montmorency