Maison neuve, 107 m² - Soissons (02200)
209 113 €
Soissons (02200)
Proposée par BABEAU SEGUIN AGENCE DE SOISSONS – 5 pièces - 4 chambres - terrain 1 010 m²
|
|
| Babeau Seguin Agence de Soissons |
- Demande d'information
- Prendre rendez-vous
MAISON À CONSTRUIRE : ceci est une annonce d'une maison neuve à construire.
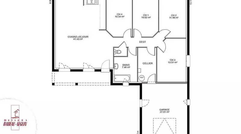
Sur ce terrain, nous vous proposons cette maison neuve : la Sauvetière sud. Avec ses allures de maison moderne et son plan en L, la Sauvetière sud vous séduira à coup sûr. Ce modèle de plain-pied économique dispose dans toutes ses versions d'un grand séjour lumineux, d'une galerie et d'un garage formant le L de la maison !
D'une surface de 108 m², cette maison est idéale pour accueillir une famille grâce à ses 4 chambres spacieuses et ses 4 pièces bien agencées. Vous avez le choix entre une toiture à 2 pans ou à 4 pans, et le garage accolé offre un accès direct à la maison, facilitant ainsi votre quotidien.
Les caractéristiques principales de cette maison incluent des tuiles Canal, qui ajoutent une touche traditionnelle à son design moderne. De plus, les options les plus demandées par nos clients sont disponibles : volets roulants motorisés, domotique et menuiseries en aluminium, pour un confort optimal.
Cette maison neuve est basse consommation et conforme à la RE2020, garantissant ainsi des performances énergétiques exceptionnelles et un respect des normes environnementales les plus strictes.
Le constructeur Babeau-Seguin, reconnu pour offrir le meilleur rapport qualité/prix du marché, vous propose cette maison à découvrir rapidement. Ne manquez pas cette opportunité unique de devenir propriétaire d'une maison moderne, économique et parfaitement adaptée à vos besoins.
Référence : 70148
Les informations sur les risques auxquels ce bien est exposé sont disponibles sur le site Géorisques : www.georisques.gouv.fr
D'une surface de 108 m², cette maison est idéale pour accueillir une famille grâce à ses 4 chambres spacieuses et ses 4 pièces bien agencées. Vous avez le choix entre une toiture à 2 pans ou à 4 pans, et le garage accolé offre un accès direct à la maison, facilitant ainsi votre quotidien.
Les caractéristiques principales de cette maison incluent des tuiles Canal, qui ajoutent une touche traditionnelle à son design moderne. De plus, les options les plus demandées par nos clients sont disponibles : volets roulants motorisés, domotique et menuiseries en aluminium, pour un confort optimal.
Cette maison neuve est basse consommation et conforme à la RE2020, garantissant ainsi des performances énergétiques exceptionnelles et un respect des normes environnementales les plus strictes.
Le constructeur Babeau-Seguin, reconnu pour offrir le meilleur rapport qualité/prix du marché, vous propose cette maison à découvrir rapidement. Ne manquez pas cette opportunité unique de devenir propriétaire d'une maison moderne, économique et parfaitement adaptée à vos besoins.
Référence : 70148
Les informations sur les risques auxquels ce bien est exposé sont disponibles sur le site Géorisques : www.georisques.gouv.fr
- Prix
-
- Prix total : 209 113 €
- Prix du modèle de maison : 170 113 €
- Prix du terrain : 39 000 €
- Terrain
-
- Surface : 1 010 m²
- Maison
-
- Surface : 107 m²
- Pièces : 5
- Chambres : 4
- Être rappelé par un conseiller
- Demander plus d’infos
- Demande d'information
Soissons (02200)
Maisons à proximité
Maison neuve, 90,63 m²
Soissons (02200)
Soissons (02200)
Maison de 5 pièces
Maison neuve, 73 m²
Soissons (02200)
Soissons (02200)
Maison de 5 pièces
Maison neuve, 129,18 m²
Soissons (02200)
Soissons (02200)
Maison de 6 pièces
Maison neuve, 88 m²
Soissons (02200)
Soissons (02200)
Maison de 4 pièces
Maison neuve, 117,64 m²
Soissons (02200)
Soissons (02200)
Maison de 5 pièces
Maison neuve, 124 m²
Soissons (02200)
Soissons (02200)
Maison de 5 pièces
Programmes à proximité
Contacter BABEAU SEGUIN AGENCE DE SOISSONS pour recevoir plus d'informations
Remplissez le formulaire ci-dessous, vos informations sont transmises directement au constructeur qui vous contactera par email ou par téléphone afin de traiter votre demande. En savoir plus.