Maison neuve, 70 m² - Sète (34200)

426 000 €
Sète (34200)

Proposée par MAISONS DE MANON – 3 pièces - 2 chambres - terrain 904 m²

MAISONS DE MANON
MAISONS DE MANON
  • Demande d'information
MAISON À CONSTRUIRE : ceci est une annonce d'une maison neuve à construire.
PROJET DE CONSTRUCTION Sète : Maison de 3 pièces (70 m²)
IDÉALEMENT SITUÉE - MAISON 3 PIÈCES
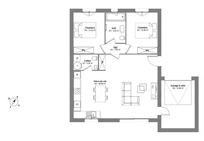
En vente sur la côte méditerranéenne, nous sommes ravis de vous proposer, idéalement située dans Sète (34200), cette maison de 3 pièces de plain-pied de 70 m² et de 904 m² de terrain. Son intérieur comporte deux chambres, une cuisine, un cellier et une salle de bains + GARAGE.
(Carrelage inclus dans toutes les pièces / Raccordements inclus).
Ce bien se trouve dans un secteur attractif. Il y a tous les types d'établissements scolaires (maternelle, élémentaire et secondaire) à moins de 10 minutes à pied. Niveau transports en commun, on trouve la gare Sète dans les environs. On trouve un accès à l'autoroute A9 à 8 km. Il y a un bassin de natation, des commerces, des boulangeries, des supermarchés, des boucheries-charcuteries et un bureau de poste à quelques minutes. Le marché Centre-Ville anime les environs.
Il est proposé à l'achat pour 426 000 €.
. (Plan personnalisable). Tous nos ouvrages sont réalisés sur-mesure en fonction de vos attentes et de nos échanges avec vous ainsi que dans le respect de la règlementation RE 2020. Ce projet comporte les garanties suivantes: Contrat de construction CCMI. Dommage/Ouvrage. RC Garantie décennale. Parfaite achèvement. Etude de sol G2. Prix et délais convenu. Garantie de livraison. Garantie financière Pour votre tranquillité nous nous occupons de toutes les formalités administratives.
Référence : AB2280926_3
Terrain proposé par un partenaire foncier selon disponibilités et autorisation de publicité au prix de 299 000 €. Hors droit d'enregistrement et frais de notaire. Maison proposée, avec un contrat de construction de maison individuelle, dans le cadre de la loi du 19/12/1990, au prix de 127 000 € (Hors branchements et raccordements, papiers peints, peintures, revêtement de sol dans les chambres, qui sont chiffrés dans les travaux qui restent à charge du client. Tarif modifiable sans préavis). Étiquette énergie : A. Différents modèles disponibles pour ce terrain. Assurances et garanties du constructeur comprises (RC professionnelle, décennale, dommage ouvrage).

Les informations sur les risques auxquels ce bien est exposé sont disponibles sur le site Géorisques : www.georisques.gouv.fr


Prix
  • Prix total : 426 000 €
  • Prix du modèle de maison : 127 000 €
  • Prix du terrain : 299 000 €

Terrain
  • Surface : 904 m²

Maison
  • Surface : 70 m²
  • Pièces : 3
  • Chambres : 2
  • Garage : 1

  • Être rappelé par un conseiller
  • Demander plus d’infos
  • Demande d'information
Sète (34200)

Programmes à proximité

En front de mer à Sète
En front de mer à Sète
Sète (34200)

Appartement de 2 pièces
Livraison 4ème trimestre 2028

Singulière
Singulière
Sète (34200)

Appartements de 2 à 4 pièces
Livraison 4ème trimestre 2025

Villa soléa
Villa soléa
Vic-la-Gardiole (34110)

Appartement de 3 pièces
Livraison 4ème trimestre 2025

TERRA SOLEA
TERRA SOLEA
Marseillan (34340)

Appartements de 1 à 3 pièces
Livraison 2ème trimestre 2027

Nacre
Nacre
Marseillan (34340)

Appartements de 1 à 3 pièces
Livraison 2ème trimestre 2026

Le sonnet d'Eulalie
Le sonnet d'Eulalie
Mireval (34110)

Appartements de 3 pièces
Livraison 4ème trimestre 2025

Contacter MAISONS DE MANON pour recevoir plus d'informations

Remplissez le formulaire ci-dessous, vos informations sont transmises directement au constructeur qui vous contactera par email ou par téléphone afin de traiter votre demande. En savoir plus.

Voir tous nos programmes immobiliers neufs à Sète