Maison neuve, 75 m² - Segré-en-Anjou Bleu (49500)
175 800 €
Segré-en-Anjou Bleu (49500)
Proposée par MAISONS BERNARD JAMBERT – 4 pièces - 2 chambres - terrain 400 m²
|
|
| MAISONS BERNARD JAMBERT |
- Demande d'information
- Prendre rendez-vous
MAISON À CONSTRUIRE : ceci est une annonce d'une maison neuve à construire.
L'Hôtellerie-de-Flée : maison de 4 pièces (75 m²) en vente
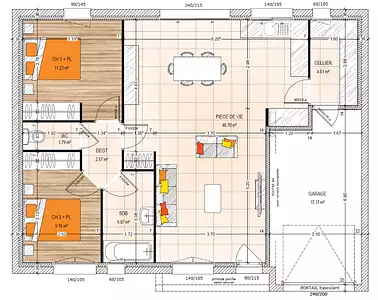
Proche de Saint-Quentin-les-Anges - À découvrir à L'Hôtellerie-de-Flée (49500) : maison neuve 4 pièces en vente, 75 m² de surface et 400 m² de terrain. Son intérieur inclut deux chambres, une cuisine et une salle de bains.
Proche École Primaire Privée l'Hotellerie-de-de, bibliothèque et commerce. Nationale N162 accessible à 18 km.
Le prix de vente de cette maison de 4 pièces est de 175 800 €.
.
Référence : RS2331675_1
Terrain proposé par un partenaire foncier selon disponibilités et autorisation de publicité au prix de 22 500 €. Hors droit d'enregistrement et frais de notaire. Maison proposée, avec un contrat de construction de maison individuelle, dans le cadre de la loi du 19/12/1990, au prix de 153 300 € (Hors branchements et raccordements, papiers peints, peintures, revêtement de sol dans les chambres, qui sont chiffrés dans les travaux qui restent à charge du client. Tarif modifiable sans préavis). Étiquette énergie : A. Différents modèles disponibles pour ce terrain. Assurances et garanties du constructeur comprises (RC professionnelle, décennale, dommage ouvrage).
Les informations sur les risques auxquels ce bien est exposé sont disponibles sur le site Géorisques : www.georisques.gouv.fr
Proche de Saint-Quentin-les-Anges - À découvrir à L'Hôtellerie-de-Flée (49500) : maison neuve 4 pièces en vente, 75 m² de surface et 400 m² de terrain. Son intérieur inclut deux chambres, une cuisine et une salle de bains.
Proche École Primaire Privée l'Hotellerie-de-de, bibliothèque et commerce. Nationale N162 accessible à 18 km.
Le prix de vente de cette maison de 4 pièces est de 175 800 €.
.
Référence : RS2331675_1
Terrain proposé par un partenaire foncier selon disponibilités et autorisation de publicité au prix de 22 500 €. Hors droit d'enregistrement et frais de notaire. Maison proposée, avec un contrat de construction de maison individuelle, dans le cadre de la loi du 19/12/1990, au prix de 153 300 € (Hors branchements et raccordements, papiers peints, peintures, revêtement de sol dans les chambres, qui sont chiffrés dans les travaux qui restent à charge du client. Tarif modifiable sans préavis). Étiquette énergie : A. Différents modèles disponibles pour ce terrain. Assurances et garanties du constructeur comprises (RC professionnelle, décennale, dommage ouvrage).
Les informations sur les risques auxquels ce bien est exposé sont disponibles sur le site Géorisques : www.georisques.gouv.fr
- Prix
-
- Prix total : 175 800 €
- Prix du modèle de maison : 153 300 €
- Prix du terrain : 22 500 €
- Terrain
-
- Surface : 400 m²
- Maison
-
- Surface : 75 m²
- Pièces : 4
- Chambres : 2
- Garage : 1
- Être rappelé par un conseiller
- Demander plus d’infos
- Demande d'information
Segré-en-Anjou Bleu (49500)
Maisons à proximité
Maison neuve, 64 m²
Segré-en-Anjou Bleu (49500)
Segré-en-Anjou Bleu (49500)
Maison de 3 pièces
Maison neuve, 100 m²
Segré-en-Anjou Bleu (49500)
Segré-en-Anjou Bleu (49500)
Maison de 5 pièces
Maison neuve, 109,6 m²
Segré-en-Anjou Bleu (49500)
Segré-en-Anjou Bleu (49500)
Maison de 6 pièces
Maison neuve, 73 m²
Segré-en-Anjou Bleu (49500)
Segré-en-Anjou Bleu (49500)
Maison de 4 pièces
Maison neuve, 105 m²
Segré-en-Anjou Bleu (49500)
Segré-en-Anjou Bleu (49500)
Maison de 5 pièces
Maison neuve, 49 m²
Segré-en-Anjou Bleu (49500)
Segré-en-Anjou Bleu (49500)
Maison de 3 pièces
Programmes à proximité
Contacter MAISONS BERNARD JAMBERT pour recevoir plus d'informations
Remplissez le formulaire ci-dessous, vos informations sont transmises directement au constructeur qui vous contactera par email ou par téléphone afin de traiter votre demande. En savoir plus.
Voir tous nos programmes immobiliers neufs à Segré-en-Anjou Bleu