Maison neuve, 144 m² - Sauternes (33210)
397 806 €
Sauternes (33210)
Proposée par ALPHA CONSTRUCTIONS – 4 pièces - 3 chambres - terrain 946 m²
|
|
| Alpha Constructions |
- Demande d'information
- Prendre rendez-vous
MAISON À CONSTRUIRE : ceci est une annonce d'une maison neuve à construire.
À Sauternes, à seulement quelques minutes de la gare de Langon et de l'autoroute A62, découvrez ce beau projet de construction sur un terrain boisé d'environ 950 m², situé dans un environnement résidentiel calme et recherché.
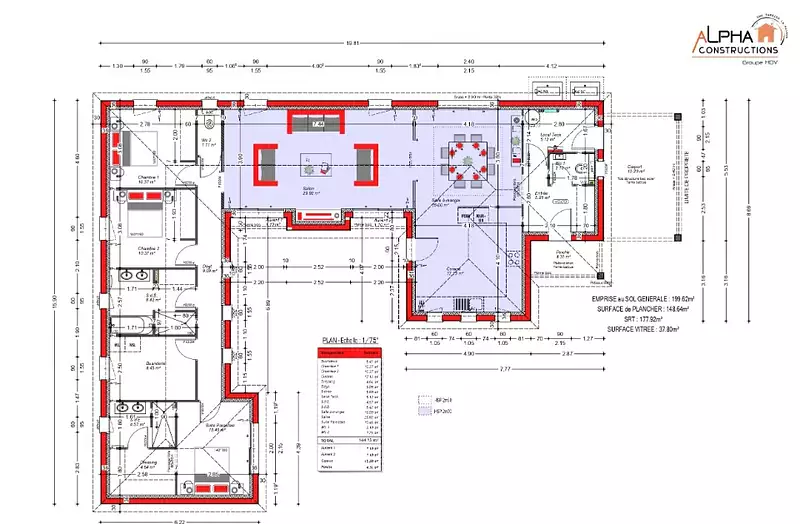
Nous vous proposons un projet de construction personnalisé avec cette maison contemporaine en L de 144 m² habitables, pensée pour offrir confort et luminosité au quotidien.
Elle se compose d'une grande pièce de vie traversante de près de 50 m² avec cuisine ouverte, donnant sur une belle terrasse et sa piscine. L'aile nuit comprend 3 chambres, une suite parentale avec dressing et salle d'eau, un bureau, une salle de bain familiale et un cellier attenant à la cuisine.
Cette maison séduit par son agencement fonctionnel, ses volumes équilibrés et ses nombreuses ouvertures vers l'extérieur. L'ensemble s'intègre parfaitement à ce cadre verdoyant, offrant un espace de vie moderne et paisible.
Le terrain permet d'aménager aisément un bel espace jardin et de profiter d'une vue dégagée sans vis-à-vis.
Un cadre de vie idéal pour ceux qui recherchent le calme de la nature tout en restant proches des commodités.
Pour étudier votre futur projet de construction, contactez Franck Hazera au 05 57 98 50 49.
Référence : FH2319832_1
Terrain proposé par un partenaire foncier selon disponibilité dans le cadre d’un projet de construction avec Alpha Constructions. Les descriptions, photographies, surfaces et prix illustrant l’annonce sont fournies à titre indicatif et ne sont pas contractuels. Non soumis au DPE. Différents modèles disponibles.
Les informations sur les risques auxquels ce bien est exposé sont disponibles sur le site Géorisques : www.georisques.gouv.fr
Nous vous proposons un projet de construction personnalisé avec cette maison contemporaine en L de 144 m² habitables, pensée pour offrir confort et luminosité au quotidien.
Elle se compose d'une grande pièce de vie traversante de près de 50 m² avec cuisine ouverte, donnant sur une belle terrasse et sa piscine. L'aile nuit comprend 3 chambres, une suite parentale avec dressing et salle d'eau, un bureau, une salle de bain familiale et un cellier attenant à la cuisine.
Cette maison séduit par son agencement fonctionnel, ses volumes équilibrés et ses nombreuses ouvertures vers l'extérieur. L'ensemble s'intègre parfaitement à ce cadre verdoyant, offrant un espace de vie moderne et paisible.
Le terrain permet d'aménager aisément un bel espace jardin et de profiter d'une vue dégagée sans vis-à-vis.
Un cadre de vie idéal pour ceux qui recherchent le calme de la nature tout en restant proches des commodités.
Pour étudier votre futur projet de construction, contactez Franck Hazera au 05 57 98 50 49.
Référence : FH2319832_1
Terrain proposé par un partenaire foncier selon disponibilité dans le cadre d’un projet de construction avec Alpha Constructions. Les descriptions, photographies, surfaces et prix illustrant l’annonce sont fournies à titre indicatif et ne sont pas contractuels. Non soumis au DPE. Différents modèles disponibles.
Les informations sur les risques auxquels ce bien est exposé sont disponibles sur le site Géorisques : www.georisques.gouv.fr
- Prix
-
- Prix total : 397 806 €
- Prix du modèle de maison : 320 806 €
- Prix du terrain : 77 000 €
- Terrain
-
- Surface : 946 m²
- Maison
-
- Surface : 144 m²
- Pièces : 4
- Chambres : 3
- Être rappelé par un conseiller
- Demander plus d’infos
- Demande d'information
Sauternes (33210)
Maisons à proximité
Maison neuve, 100 m²
Sauternes (33210)
Sauternes (33210)
Maison de 4 pièces
Maison neuve, 85 m²
Fargues (33210)
Fargues (33210)
Maison de 4 pièces
Maison neuve, 84 m²
Fargues (33210)
Fargues (33210)
Maison de 4 pièces
Maison neuve, 80 m²
Fargues (33210)
Fargues (33210)
Maison de 4 pièces
Maison neuve, 90 m²
Fargues (33210)
Fargues (33210)
Maison de 5 pièces
Maison neuve, 90 m²
Fargues (33210)
Fargues (33210)
Maison de 7 pièces
Programmes à proximité
TOLENA - Bât B
Toulenne (33210)
Toulenne (33210)
Appartements de 2 à 4 pièces
Livraison 4ème trimestre 2027
TOLENA - Bât A
Toulenne (33210)
Toulenne (33210)
Appartements de 3 à 4 pièces
Livraison 4ème trimestre 2024
Contacter ALPHA CONSTRUCTIONS pour recevoir plus d'informations
Remplissez le formulaire ci-dessous, vos informations sont transmises directement au constructeur qui vous contactera par email ou par téléphone afin de traiter votre demande. En savoir plus.